Ideal starter residence or steady rental close to rail links and local amenities.
- Two double bedrooms, main with en-suite bathroom
- Open-plan kitchen/living with balcony and integrated appliances
- Allocated off-street parking space included
- Pets permitted in the development
- Leasehold: 136 years remaining
- Service charge approx £1,560 per year
- Electric room heating only (no gas central heating)
- No private garden; third-floor location may require stairs
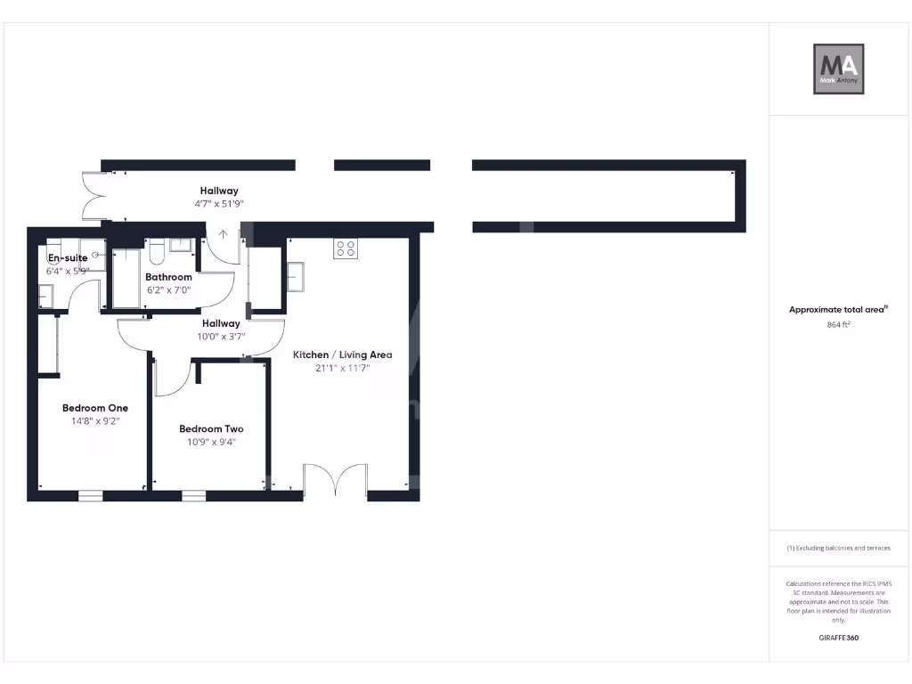
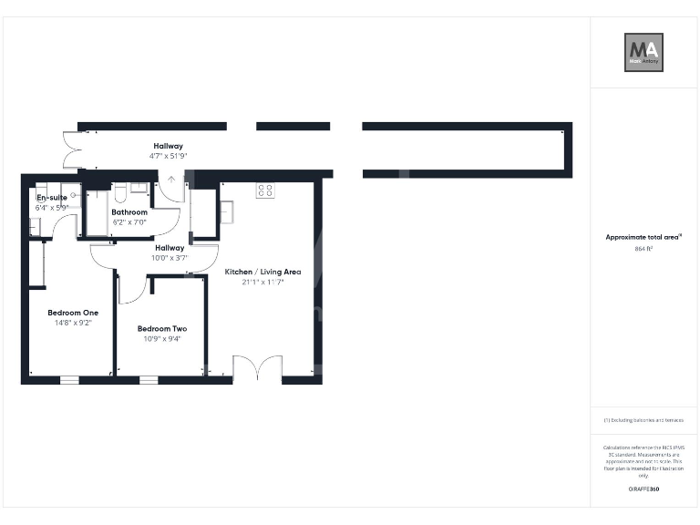
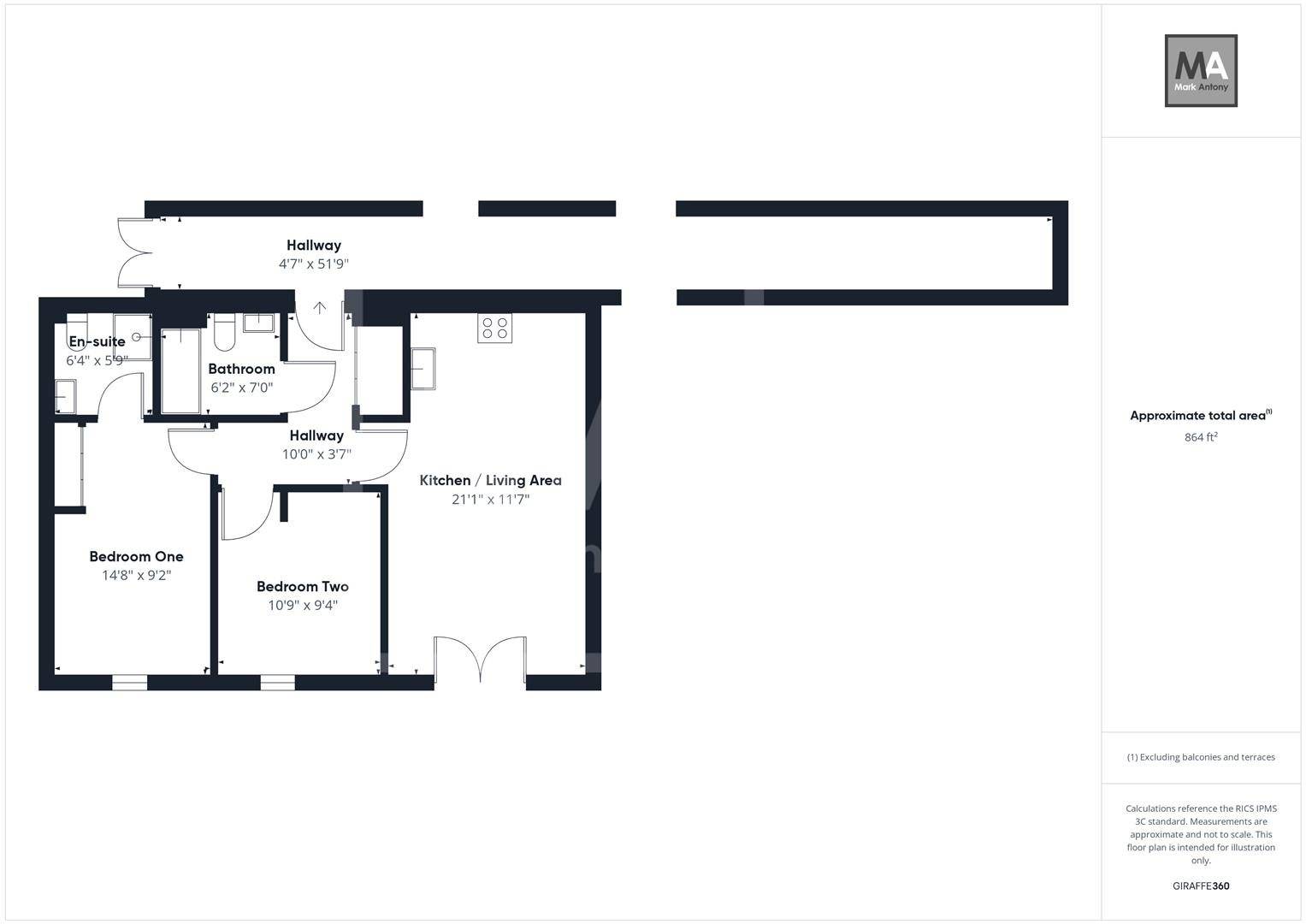
Set on the third floor of a modern brick block in desirable Great Sankey, this two-bedroom apartment suits first-time buyers and buy-to-let investors alike. The open-plan living area features integrated kitchen appliances, bright windows and a balcony, with two bathrooms including an en-suite to the main bedroom.
Practical details that matter: the flat extends to about 864 sq ft, comes with an allocated off-street parking space, allows pets, and benefits from fast broadband and very low local crime. The surrounding suburb offers excellent schools, green space at Sankey Valley and direct rail links for commuters.
Be clear about ongoing costs and building specifics: the property is leasehold with 136 years remaining and an average annual service charge of £1,560. Heating is electric via room heaters, which can be more costly than mains gas. There is no private garden and being on the third floor may require use of stairs.
Overall this is a well-presented, practical apartment with immediate rental or homeownership potential in a comfortable suburb. Buyers seeking low-maintenance living close to transport and schools will find it particularly appealing; those wanting gas central heating or outdoor private space should note the limitations.
2 bedroom apartment for sale in Louisiana Drive, Great Sankey, Warrington, WA5 — £152,000 • 2 bed • 2 bath • 896 ft²
2 bedroom flat for sale in Rockford Gardens, Great Sankey, Warrington, WA5 — £125,000 • 2 bed • 1 bath • 557 ft²
2 bedroom apartment for sale in Lytham Close, Great Sankey, WA5 — £120,000 • 2 bed • 2 bath • 635 ft²
2 bedroom flat for sale in Lytham Close, Great Sankey, Warrington, Cheshire, WA5 — £125,000 • 2 bed • 1 bath • 592 ft²
1 bedroom apartment for sale in Finsbury Close, Warrington, WA5 — £100,000 • 1 bed • 1 bath
2 bedroom apartment for sale in Pinehurst Walk, Boston Boulevard, Great Sankey, WA5 — £150,000 • 2 bed • 2 bath • 727 ft²






























































































