**Standout Features:**
- Beautifully presented 4-bedroom detached house
- Elevated position set back from Tonbridge Road
- Gated rear garden with off-road parking for 2 vehicles
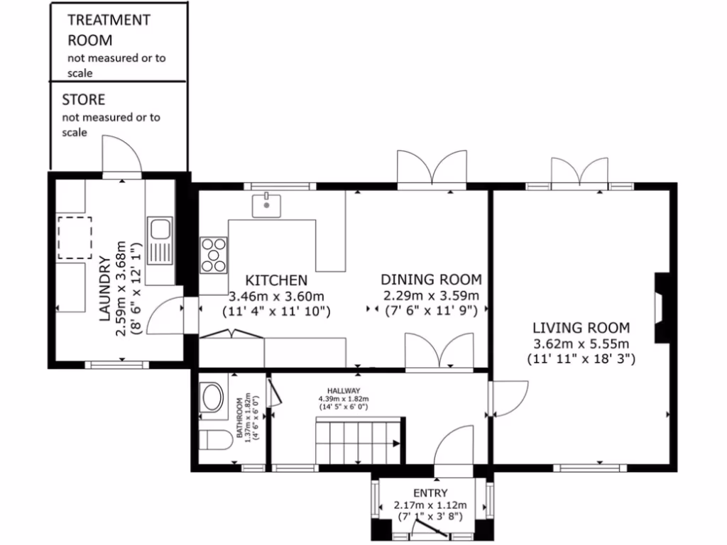
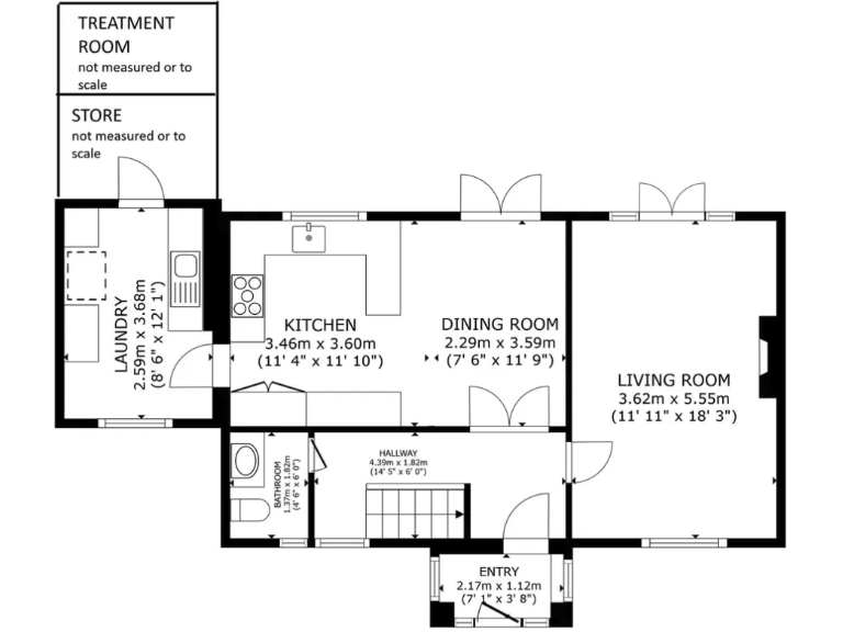
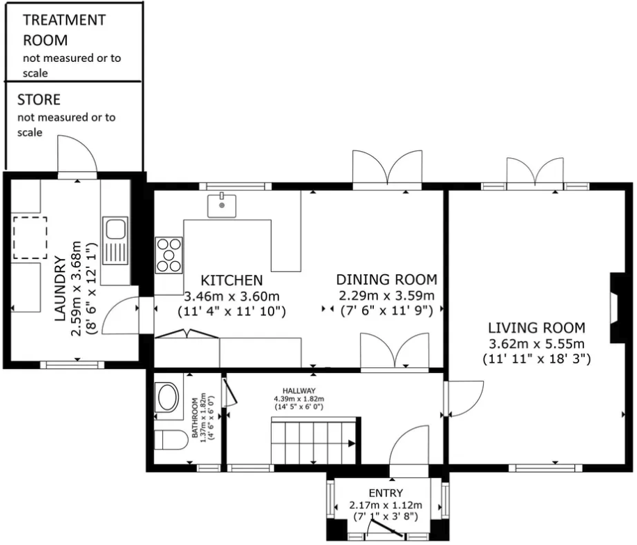
- Spacious kitchen/dining room with quality fixtures
- Converted garage serves as treatment room and storage
- Proximity to excellent schools and amenities
- Mature gardens with potential to enhance further
- Excellent mobile and broadband connectivity
**Concise Summary:**
Discover this beautifully presented four-bedroom detached family home, ideally positioned in an elevated setting along Tonbridge Road, Maidstone. The property offers charming features complemented by modern finishes, including a spacious kitchen/dining area outfitted with high-quality appliances and a cozy lounge with natural light flowing through patio doors. Enjoy the convenience of a utility room, a guest cloakroom, and a converted garage that serves as a treatment room—a perfect space for personal use or as a home office.
The home boasts a mature front garden and a generously sized, enclosed rear garden, providing the potential for outdoor enhancements or tranquil family gatherings. With secure off-road parking for two cars via a gated driveway, the property is practical for family living. Located within reach of multiple esteemed schools and local amenities, this property offers not just a home but a comfortable lifestyle.
While the overall condition is strong, prospective buyers should be aware of maintenance considerations typical in a property of its age. This is an ideal opportunity for families or first-time buyers seeking a stylish, functional home in a welcoming community—don’t miss the chance to make it yours!
4 bedroom link detached house for sale in Tonbridge Road, Maidstone, Kent, ME16 — £595,000 • 4 bed • 2 bath • 1722 ft²
4 bedroom detached house for sale in Penny Cress Gardens, Maidstone, ME16 — £585,000 • 4 bed • 2 bath • 1403 ft²
4 bedroom detached house for sale in Bentlif Close, Maidstone, ME16 — £650,000 • 4 bed • 2 bath • 1688 ft²
4 bedroom detached house for sale in Blythe Road, Maidstone, Kent, ME15 — £650,000 • 4 bed • 3 bath • 2024 ft²
4 bedroom terraced house for sale in Woodville Road, Maidstone, ME15 — £385,000 • 4 bed • 2 bath • 968 ft²
5 bedroom detached house for sale in Freshland Road, Maidstone, ME16 — £750,000 • 5 bed • 3 bath • 2640 ft²


















































































