**Standout Features:**
- Freehold block of apartments with significant **conversion potential**
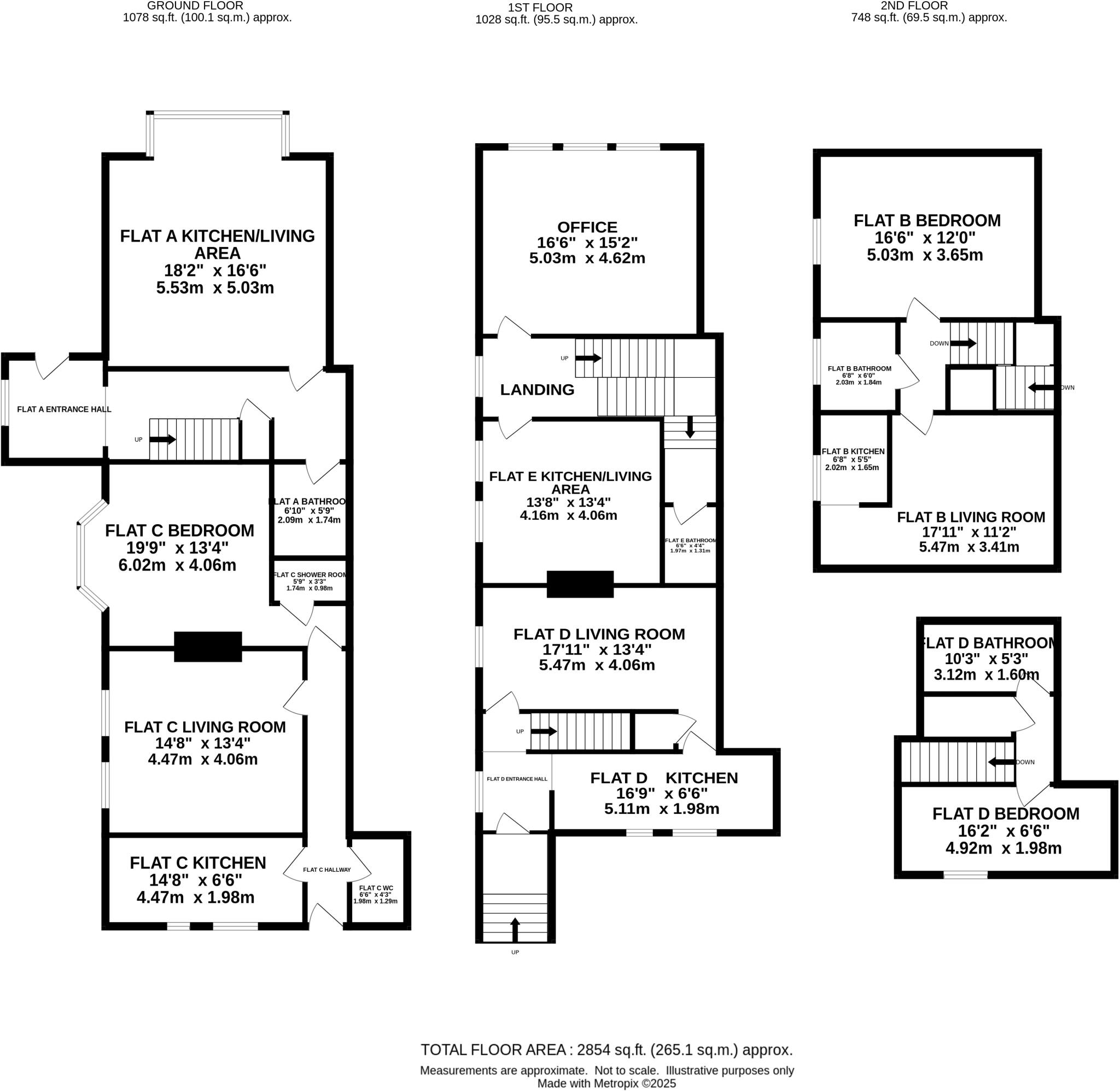
- Total size of **2807 sq ft** across **3 floors**
- Includes **4 separate living units:** two 1-bedroom flats, one maisonette, and two bedsits
- **Ample parking** and **good-sized front and side gardens**
- Located in a **young family** and **student-friendly** urban area
- **High ceilings** and **Victorian architecture** elements enhance charm
**Concerns:**
- The property requires **renovation**
- Area has a **very high crime rate** and is classified as **very deprived**
This substantial Freehold block of apartments offers an incredible investment opportunity, showcasing the potential for significant rental income or possibly transforming existing spaces into additional units. Set in an urban environment rich with cultural diversity, this property is boasting an impressive layout with four separate living units—ideal for investors looking to enter the growing rental market or for families wanting ample space.
Despite being well-maintained, the property reflects a charming Victorian design and requires renovation, making it a blank canvas for those wanting to put their personal touch on it. Featuring high ceilings and a solid brick build, it retains a classic appeal while positioned conveniently within reach of local amenities and schools, ensuring future occupants enjoy comfort and accessibility.
Be mindful of the surrounding area, which has a very high crime rate; this, along with its classification as very deprived, is crucial for potential buyers to consider. With the auction set for September 10, 2025, now is the time to explore the possibilities of this property before it’s too late!































































































