Contemporary move-in ready flat with excellent communal facilities.
Open-plan living with private balcony and large contemporary windows
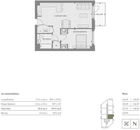
Bright, contemporary and move-in ready, this one-bedroom apartment on the 7th floor offers modern open-plan living with a private balcony and generous natural light. Built in 2019, the flat sits within a riverside development that includes concierge, gym, residents’ lounge, cinema and landscaped communal podium garden — amenities that suit busy professionals and first-time buyers seeking a hassle-free lifestyle.
Practical running costs are clear: a long 999-year lease from new, predictable service charge (approx £2,708 pa) and ground rent (£350 pa). Heating is provided via a community scheme, which can simplify management but may limit individual control and could affect bills. Council tax is in an affordable band C.
The location is well connected — fast broadband, excellent mobile signal and easy routes to central London and local shops, cafés and restaurants. The wider neighbourhood is inner-city cosmopolitan and popular with tech workers, although the local area scores as relatively deprived and crime levels are average; buyers should weigh lifestyle benefits against those factors.
This apartment suits a buyer who wants contemporary, low-maintenance living with generous communal facilities and strong transport links. It also offers straightforward rental potential for investors, but be mindful of service charges and the community heating arrangement when assessing running costs.
1 bedroom flat for sale in Capital Interchange Way, 14 Capital Interchange Way, TW8 — £475,000 • 1 bed • 1 bath • 440 ft²
1 bedroom apartment for sale in Lime House, 33 Melliss Avenue, Kew, Surrey, TW9 — £415,000 • 1 bed • 1 bath • 538 ft²
1 bedroom apartment for sale in Unit 152 Kew Bridge Rise, Brentford, TW8 — £472,500 • 1 bed • 1 bath • 544 ft²
1 bedroom apartment for sale in Kew Bridge Road, Brentford, TW8 — £410,000 • 1 bed • 1 bath • 592 ft²
1 bedroom apartment for sale in Kew Bridge Rise, Capital Interchange Way, Brentford, London, TW8 — £440,000 • 1 bed • 1 bath • 549 ft²
1 bedroom flat for sale in Pump House Crescent, Brentford, TW8 — £375,000 • 1 bed • 1 bath • 591 ft²


















































































































































































