Substantial gardens and versatile reception rooms in a sought-after village location.
Period Cotswold stone house over c.4,000–4,500 sq ft
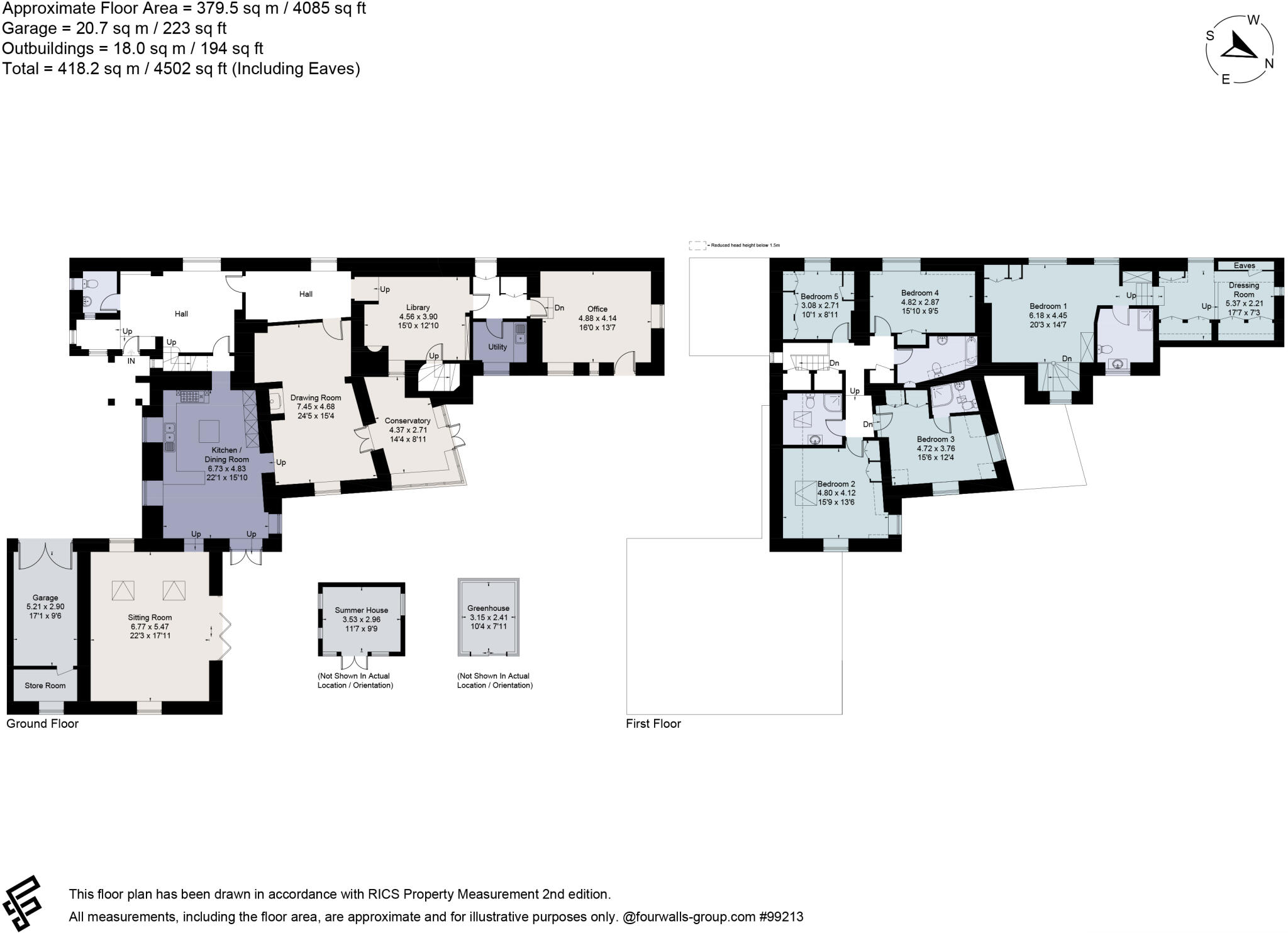
Middle Farm is an imposing Cotswold stone house in the desirable village of Ramsden, offering flexible family living across more than 4,000–4,500 sq ft and set within very large, private gardens. The ground floor provides generous entertaining space including a 24 ft drawing room, sitting room opening to a conservatory, kitchen/dining hub, library and large office — useful for home working. Upstairs are five well-proportioned bedrooms and four bathrooms, with the principal bedroom enjoying garden views and fitted storage.
The gardens, terraces, greenhouse and summer house are a major draw, providing peaceful outdoor living and strong privacy. The house is approached by a private driveway with ample parking and attached garage; outbuildings offer versatility for storage or potential conversion subject to consents.
Practical considerations include an EPC rating of E, oil-fired central heating and secondary glazing. The stone walls are historic construction with no known insulation, so upgrading thermal performance would be advisable and could deliver energy savings and comfort improvements. Council tax is described as quite expensive.
Located in a prosperous rural area, the village has a well-regarded pub and easy access to countryside walks, with Charlbury and Oxford within reach and rail links to London from nearby stations. This property suits a family seeking a characterful country home with substantial grounds and scope to modernise energy performance and services to current standards.
3 bedroom detached house for sale in Ramsden, Oxfordshire, OX7 — £1,000,000 • 3 bed • 2 bath • 1596 ft²
3 bedroom semi-detached house for sale in Wilcote Lane, Ramsden, Chipping Norton, OX7 — £650,000 • 3 bed • 1 bath • 1148 ft²
3 bedroom semi-detached house for sale in Lower End, Ramsden, Chipping Norton, Oxfordshire, OX7 — £675,000 • 3 bed • 1 bath • 1252 ft²
1 bedroom semi-detached house for sale in High Street, Ramsden, OX7 — £360,000 • 1 bed • 1 bath • 506 ft²
7 bedroom detached house for sale in Ramsden, Oxfordshire, OX7 — £4,600,000 • 7 bed • 5 bath • 6071 ft²
5 bedroom country house for sale in Shorncote, Cirencester, GL7 — £1,595,000 • 5 bed • 3 bath • 3021 ft²






















































































