**Standout Features:**
- Modern 3-bedroom apartment in Wayfare House, Parkside West
- Eco-build with generous 975 sq ft of living space
- Open-plan design with a contemporary kitchen and living/dining area
- Private balcony with views over landscaped Millennium Green
- Concierge service and secure garage parking
**Potential Downsides:**
- High crime area
- Slow broadband speeds
- Leasehold property
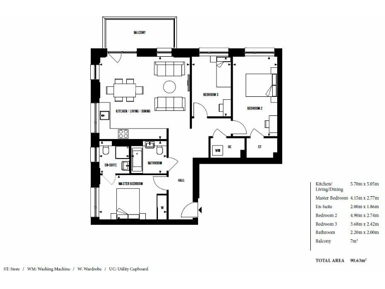
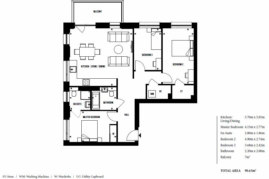
Welcome to your modern sanctuary at Parkside West, E14—an exquisite 3-bedroom apartment that places urban living at your fingertips. Spanning 975 sq ft, this eco-friendly gem features a bright open-plan kitchen and living space, perfect for entertaining, alongside a private balcony offering serene views of the beautifully landscaped Millennium Green. Each of the three double bedrooms is thoughtfully designed, including a master suite with an ensuite bathroom and built-in wardrobes, providing ample comfort for families or professionals alike.
Located in a vibrant, multicultural neighborhood, you'll enjoy unrivaled transport links, making your daily commute a breeze with quick access to Canary Wharf and Central London. While the area features a bustling atmosphere and various amenities, it’s essential to note the challenges of a high crime rate and slower broadband speeds. However, the apartment’s modern design and quality finishes, including stylish Nolte fitted kitchens and elegant bathrooms, represent a fine combination of comfort and potential for future value. Seize this unique opportunity to secure a contemporary lifestyle in a developing area—don’t miss out on making this stylish apartment your new home!
3 bedroom apartment for sale in Wayfare House, North, 9 Escapade Place, E14 — £725,000 • 3 bed • 2 bath • 976 ft²
2 bedroom flat for sale in Prestage Way, London, E14 — £617,500 • 2 bed • 2 bath • 1055 ft²
3 bedroom flat for sale in Prestage Way, London, E14 — £680,000 • 3 bed • 2 bath • 1105 ft²
2 bedroom apartment for sale in Parkside West, Blackwall Reach, London, E14 — £617,500 • 2 bed • 2 bath • 988 ft²
2 bedroom flat for sale in Prestage Way, London, E14 — £617,500 • 2 bed • 2 bath • 1055 ft²
3 bedroom flat for sale in Wayfare House South, Parkside West, London, E14 — £680,000 • 3 bed • 2 bath • 1105 ft²






























