Private west-facing garden and elegant period detail moments from King’s Road.
34‑foot double reception with two gas fireplaces and high ceilings
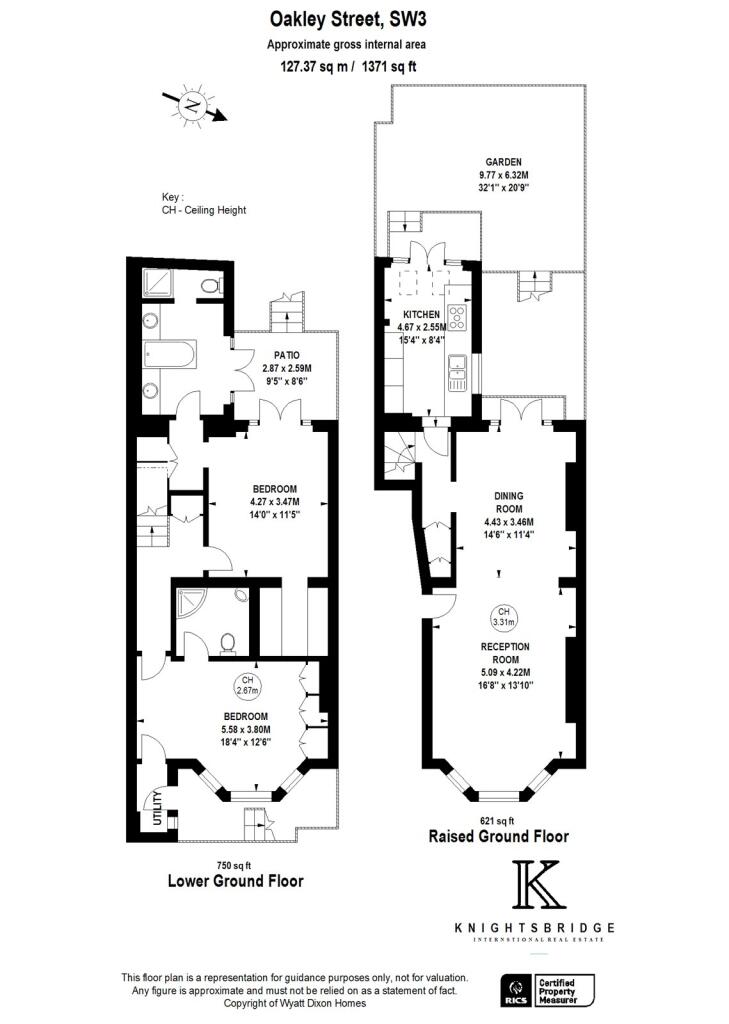
Set across generous, well-proportioned rooms, this split-level two-bedroom maisonette sits in a red‑brick Victorian terrace just off King’s Road. The raised-ground 34‑foot double reception has high ceilings, two gas fireplaces and original mouldings, creating an impressive entertaining space. A west‑facing private garden provides outdoor privacy and afternoon sun.
The lower level contains two double bedrooms and two bathrooms, the layout giving separation between living and sleeping areas — useful for families or those working from home. The overall floor area (about 1,371 sq ft) gives scope for reconfiguration or modest modernisation while retaining period character.
Practical points are strong: a very long lease (share of freehold, c.960 years), fast broadband and excellent mobile signal. Transport is straightforward with Sloane Square and South Kensington stations within walking distance and quick routes across the river to Battersea Park.
Known negatives are clear and factual: the split‑level plan includes multiple flights of stairs which may limit accessibility, and council tax is described as quite expensive. The property sits in an inner‑city area with average crime levels, so prospective buyers should weigh central convenience against those factors.
3 bedroom maisonette for sale in Beaufort Street, Chelsea, SW3 — £1,375,000 • 3 bed • 2 bath • 1275 ft²
3 bedroom apartment for sale in Redcliffe Place, Chelsea, London, SW10 — £1,950,000 • 3 bed • 2 bath • 1286 ft²
2 bedroom maisonette for sale in Cadogan Square, London, SW1X — £2,495,000 • 2 bed • 2 bath • 1399 ft²
3 bedroom maisonette for sale in Cheyne Gardens, London, SW3 — £2,250,000 • 3 bed • 2 bath • 1300 ft²
2 bedroom flat for sale in Coleherne Road, Chelsea, SW10 — £2,500,000 • 2 bed • 2 bath • 1722 ft²
2 bedroom maisonette for sale in Redesdale Street, London, SW3 — £2,100,000 • 2 bed • 2 bath • 1039 ft²






























































































