S42 6AE - 2 bed charming mill barn conversion in Mill Lame, S42 6AE

View on Property Piper

2 bedroom terraced house for sale in Mill Stream, Mill Lane, Old Tupton, Chesterfield, S42

Summary - OLD STEAM MILL, MILL LANE, CHESTERFIELD, OLD TUPTON S42 6AE

2 bed 1 bath Terraced

Spacious character home with parking and communal grounds for countryside living.
Two double bedrooms with vaulted principal room and exposed beams
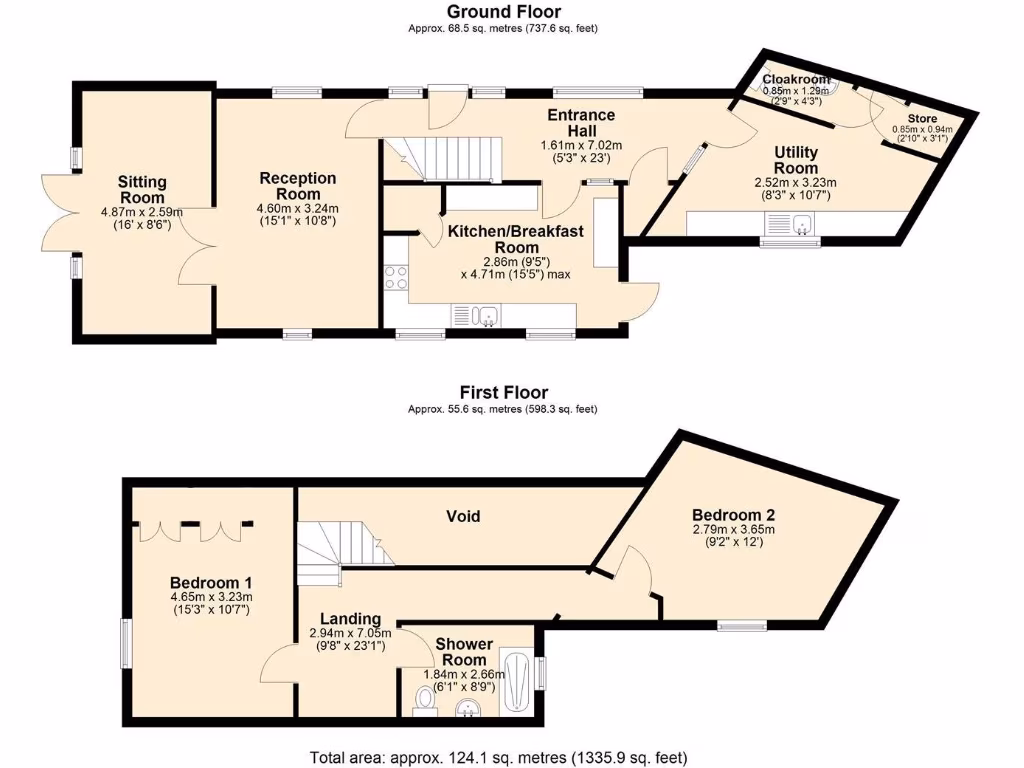
Large internal area — approx. 1,336 sq ft (124.1 sq.m)
Converted to a high standard in 2015; move-in ready
Underfloor heating to first floor; multi-fuel burner installed
Private stone-walled courtyard, two allocated car standing spaces
Access to two acres of well-maintained communal grounds
Medium flood risk — check insurance and flood mitigation
Very slow broadband speeds; restrictive covenants apply
This beautifully converted two-double-bedroom barn sits in a small hamlet overlooking Press Brook and open Derbyshire countryside. Finished in 2015 to a high standard, the home blends original stonework and exposed beams with contemporary touches such as underfloor heating to the first floor, a modern fitted kitchen and a newly fitted multi-fuel burner in the sitting room. The generous internal area (approximately 1,336 sq ft) feels larger than many two-bedroom homes, with a galleried landing and plentiful eaves storage.

Outside offers are practical as well as picturesque: private stone-walled courtyard, two allocated car standing spaces accessed from the rear, visitor parking and access to around two acres of well-kept communal grounds. The property benefits from a low annual maintenance agreement for communal areas (£600 per year) and uPVC double glazing installed in 2024. Location-wise it is peaceful and semi-rural yet within reasonable commuting distance of Chesterfield, Alfreton and the M1.

Buyers should note a few material considerations. Broadband speeds in the area are very slow, which could affect home working or streaming. The property sits in a medium flood-risk area — viewers should confirm flood-cover requirements and any insurance implications. Restrictive covenants apply to the hamlet, and a small communal maintenance charge is payable. The home is freehold and presented move-in ready, but prospective purchasers should inspect to confirm boundaries and any specifics of the covenants.

Overall this conversion offers roomy, characterful living with modern comforts for buyers seeking a peaceful countryside setting with commuter links — particularly attractive for families or those wanting a larger two-bedroom home with garden and parking.

Property Details

Brochure Descriptions

Image Descriptions

Floorplan Description

Rooms

Textual Property Features

Target Audience

AI Tags

Detected Visual Features

EPC Details

Nearby Schools

Nearest Bars And Restaurants

,,,,}

Nearest General Shops

,,}

Nearest Grocery shops

,,}

Nearest Supermarkets

,,}

Nearest Religious buildings

,,}

Nearest Medical buildings

,,,}

Nearest Leisure Facilities

,,,,}

Nearest Tourist attractions

,,}

Nearest Train stations

,,,,}

Nearest Bus stations and stops

,,,,}

Nearest Hotels

,,}

Tags

Local Market Stats

AirBnB Data

Similar Properties

Meta

High Res Images

Compatible Images

Low res Images

Thumbnails

Raw Images

High Res Floorplan Images

Compatible Floorplan Images

Low res Floorplan Images

FloorplanImages Thumbnail

Raw Floorplan Images