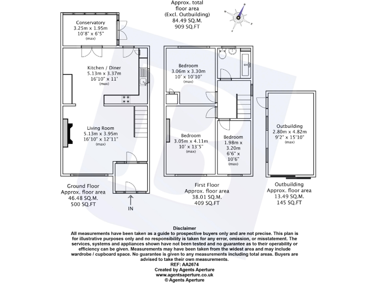
**Standout Features:**
- Spacious semi-detached home with 3 bedrooms
- Modern bathroom and fitted kitchen with integrated appliances
- Bright conservatory and versatile detached outbuilding—perfect for a home office or gym
- Central heating, double glazing, and extensive off-street parking
- Low maintenance gardens
- Ideal for families or investors due to location and amenities
Nestled in the thriving suburb of Gravesend, this stunning semi-detached home offers a generous 909 square feet of living space perfect for families. With a modern bathroom, a fitted kitchen equipped with integrated appliances, and a spacious living room, this property is designed for comfortable living. The bright conservatory seamlessly connects indoor and outdoor spaces, and the detached outbuilding presents a unique opportunity for use as a home office or gym.
This home is located within just 2.5 miles of Gravesend town center, providing convenient access to shopping, schooling, and a high-speed rail service to London St. Pancras — an ideal spot for commuters. Family-friendly amenities, including well-rated local schools, parks, and leisure facilities nearby, further enhance its appeal. The property is move-in ready but also holds potential for personalization and future renovations.
Don’t miss your chance to secure this lovely family property in a sought-after area—immediate viewing is highly recommended as interest is expected to be high!
3 bedroom semi-detached house for sale in Richmond Drive, Gravesend, Kent, DA12 — £375,000 • 3 bed • 1 bath • 763 ft²
3 bedroom semi-detached house for sale in Kings Drive, Gravesend, Kent, DA12 — £450,000 • 3 bed • 1 bath • 958 ft²
3 bedroom semi-detached house for sale in Lynton Road South, Gravesend, Kent, DA11 — £325,000 • 3 bed • 1 bath • 965 ft²
3 bedroom semi-detached house for sale in Ridgeway Avenue, Gravesend, Kent, DA12 — £500,000 • 3 bed • 2 bath • 1253 ft²
3 bedroom semi-detached house for sale in Chalk Road, Gravesend, Kent, DA12 — £375,000 • 3 bed • 2 bath • 950 ft²
4 bedroom semi-detached house for sale in Rochester Road, Gravesend, Kent, DA12 — £475,000 • 4 bed • 2 bath • 1271 ft²






































































