Compact commuter flat with balcony and parking, minutes from the station.
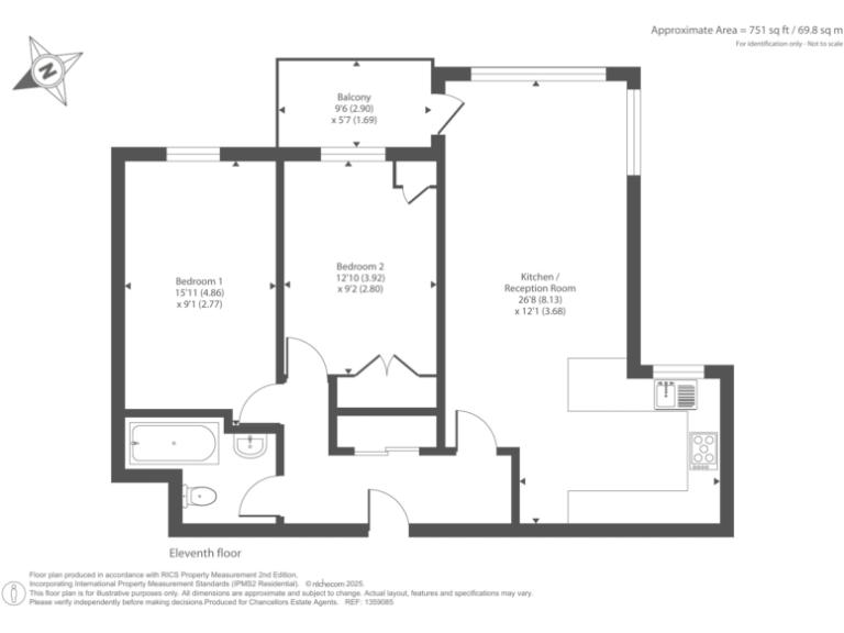
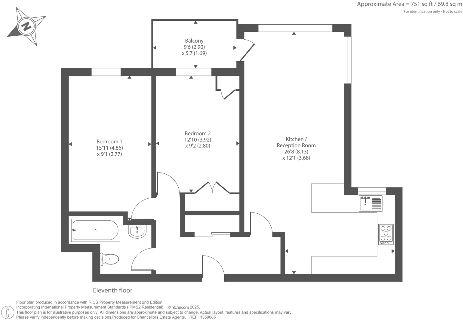
Two double bedrooms, open-plan living and kitchen
This two-bedroom apartment in Sunbury-on-Thames offers practical, ready-to-let accommodation close to transport links. At around 751 sq ft the open-plan living/kitchen with balcony provides straightforward rental appeal for commuters — the station is only 0.3 miles away.
The flat sits in a 1967–75 mid-terrace block with allocated off-street parking and secondary glazing. The long lease (about 130–139 years remaining) and clear service charge figure provide certainty for investors assessing running costs. Main heating is warm-air on mains gas.
Be clear on the negatives: the property is in an area with higher crime and relative deprivation, which can affect rental demand and yields. The building’s cavity walls are assumed to lack added insulation and some cosmetic updating may be needed to maximise income. The development currently requires cash buyers only, so mortgages are not an option for purchasers relying on finance.
For an investor seeking a commuter-let close to Sunbury station, this apartment presents a low-management footprint with immediate rental potential, subject to pricing and local lettings demand. Factor in the service charge, nearby amenities, and the need for any tenant-focused upgrades when calculating returns.
2 bedroom apartment for sale in Grantham House Percy Bryant Road, Sunbury-on-Thames, TW16 — £165,000 • 2 bed • 1 bath • 636 ft²
2 bedroom apartment for sale in Staines Road West, Sunbury-on-Thames, Surrey, TW16 — £210,000 • 2 bed • 1 bath • 740 ft²
2 bedroom apartment for sale in Staines Road West, Sunbury-On-Thames, TW16 — £280,000 • 2 bed • 1 bath • 602 ft²
2 bedroom flat for sale in Staines Road West, Sunbury-on-thames, TW16 7BF, TW16 — £270,000 • 2 bed • 2 bath • 611 ft²
1 bedroom apartment for sale in Spelthorne Grove, Sunbury-on-Thames, Surrey, TW16 — £245,000 • 1 bed • 1 bath • 650 ft²
2 bedroom apartment for sale in Staines Road West, Sunbury-on-thames, TW16 — £300,000 • 2 bed • 2 bath • 720 ft²


























































































