**Standout Features:**
- 4 spacious bedrooms, including a main bedroom with en-suite
- Stunning views of the South Downs from multiple rooms
- Functional kitchen with access to garden via an Italian spiral staircase
- Conservatory offering additional living space
- Unique garden with various seating areas and year-round greenery
- Driveway parking, single garage, and electric car charge point
- Solar panels for energy efficiency
- Walking distance to Storrington village amenities and South Downs National Park
**Potential Downsides:**
- Kitchen may require updates to meet personal preferences
- Overall size is average for the area
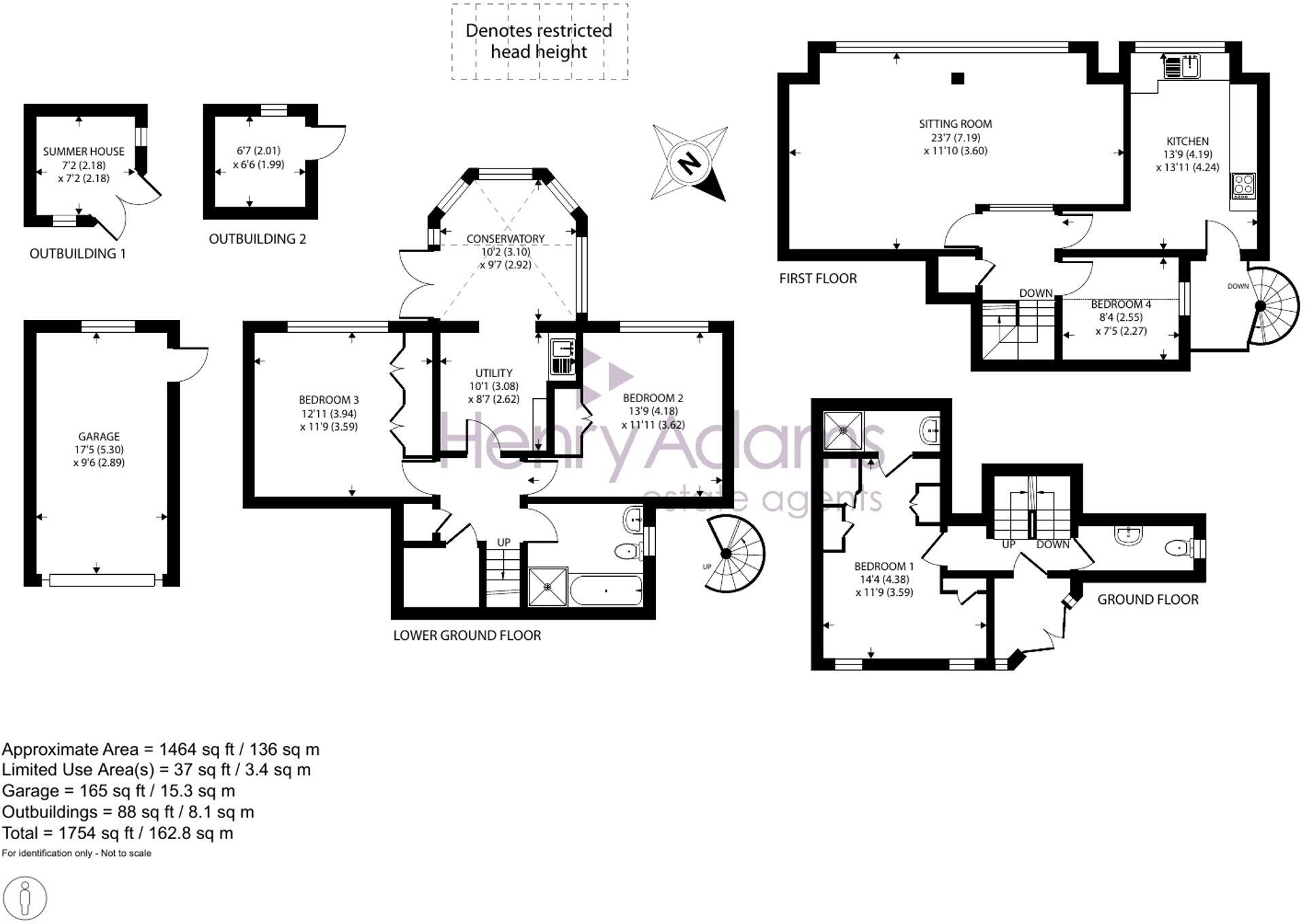
Nestled in the serene neighborhood of Storrington, this charming detached house presents a unique opportunity for comfort and leisure. 'The Shambles' features a spacious sitting room graced by picture windows that showcase breathtaking views of the South Downs, allowing natural light to flood the space. The well-thought-out kitchen, with ample room for your modern appliances, offers a delightful connection to the tranquil garden through an elegant spiral staircase. The accommodation includes four generous bedrooms, including a main suite complete with fitted wardrobes and an en-suite shower room.
Step outside to discover a unique garden sanctuary adorned with various seating areas perfect for sipping morning coffee or unwinding in the evening. The lush surroundings ensure privacy year-round, while established fruit trees and shrubs enhance the outdoor experience. With driveway parking and a single garage, this property easily accommodates modern lifestyles, boasting an electric car charge point and solar panels for increased energy efficiency during warmer months.
Just a three-minute walk lands you at the stunning South Downs National Park and the vibrant village center, offering a range of shops, dining, and recreational activities. This home blends tranquility with accessibility, making it ideal for families or an investment for those seeking a peaceful retreat in a picturesque setting. Don't miss out on this exceptional opportunity—schedule a visit today to envision your life in this beautiful home!
4 bedroom detached house for sale in Fryern Road, Storrington, RH20 — £1,100,000 • 4 bed • 3 bath • 2228 ft²
4 bedroom detached house for sale in Birch Way, Storrington, West Sussex, RH20 — £895,000 • 4 bed • 2 bath • 1980 ft²
3 bedroom detached house for sale in Fox Dell, Storrington, RH20 — £725,000 • 3 bed • 2 bath • 1658 ft²
4 bedroom semi-detached house for sale in Water Lane, Storrington, RH20 — £580,000 • 4 bed • 3 bath • 2015 ft²
4 bedroom detached house for sale in Hormare Crescent, Storrington, RH20 — £550,000 • 4 bed • 2 bath • 1510 ft²
4 bedroom detached house for sale in Stor Meadow, Storrington, RH20 — £575,000 • 4 bed • 2 bath • 1439 ft²






































































































































