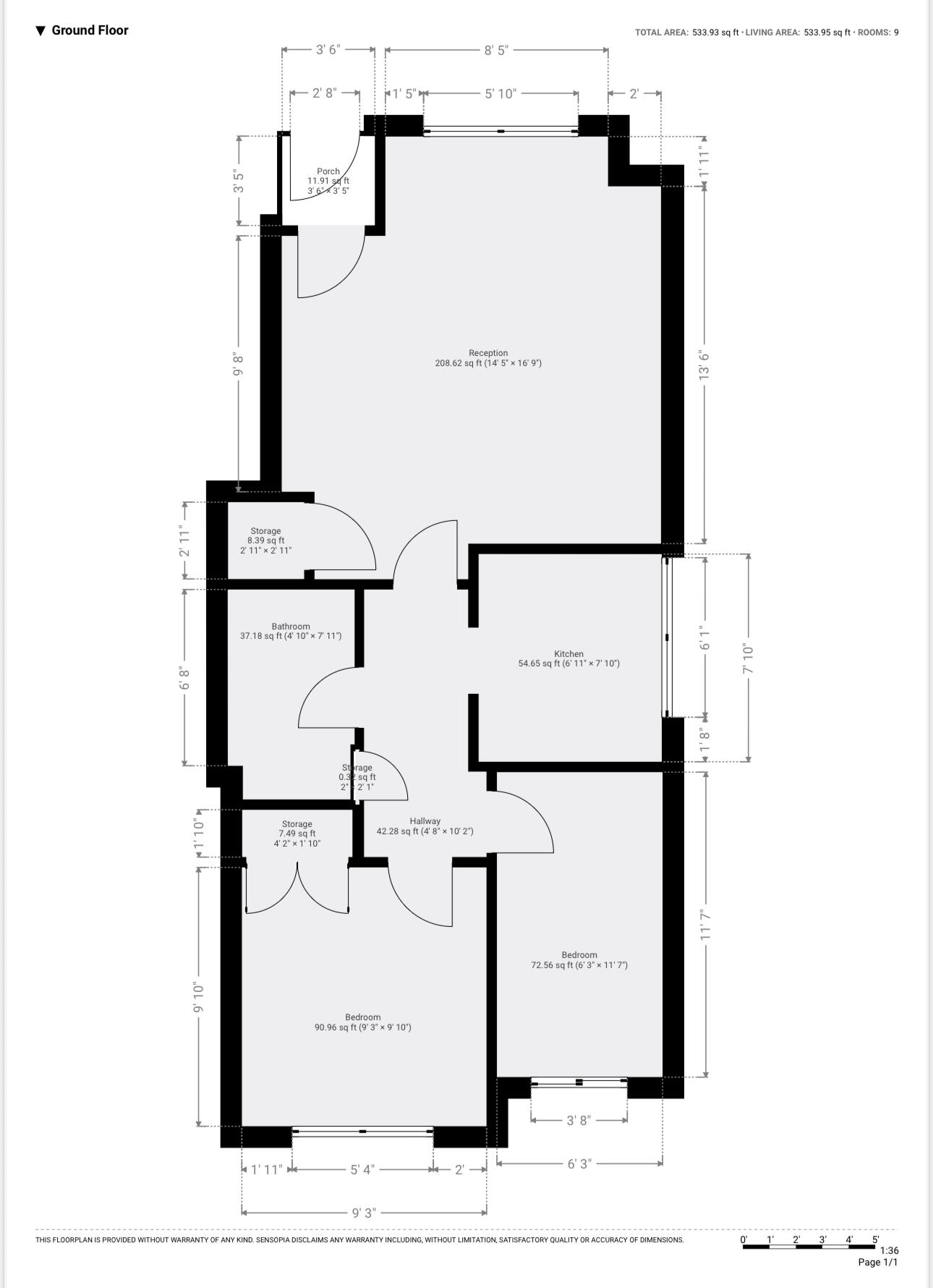
**Standout Features:**
- Two bedrooms with room for customization
- Open plan lounge diner, offering a blank canvas for creative updates
- Recently refurbished shower room and contemporary fitted kitchen
- Private and secluded setting with communal patio area
- Allocated parking for one vehicle, a rare find in this central location
- No ongoing chain
Nestled in a secluded corner of West Kirby village, this charming two-bedroom apartment offers both privacy and convenience. With a well-presented open plan lounge diner and a contemporary kitchen, the property serves as a perfect canvas for personalization, allowing you to transform the dated decor into your dream space. The recently updated shower room enhances functionality, making it suitable for families, first-time buyers, or investors looking for rental potential in an affluent area.
Enjoy the serenity of a quiet location while being just a short stroll from local shops, the train station, and bus services, ensuring easy commuting to vibrant Liverpool and nearby villages. An allocated parking space adds to its allure, and the communal patio provides a cozy spot for relaxation. With 962 years remaining on the lease and a low service charge of £480 per annum, this property combines a desirable lifestyle with practical living. This opportunity for a well-located, chain-free home won't last long—schedule your viewing today and explore the potential this apartment holds!
2 bedroom ground floor flat for sale in Westbourne Road, West Kirby, CH48 — £220,000 • 2 bed • 1 bath • 738 ft²
2 bedroom apartment for sale in Murray Grove, West Kirby, Wirral, Merseyside, CH48 — £220,000 • 2 bed • 1 bath • 586 ft²
2 bedroom flat for sale in Sandlea Park, West Kirby, Wirral, CH48 — £245,000 • 2 bed • 1 bath • 659 ft²
2 bedroom flat for sale in Westbourne Road, West Kirby, Wirral, CH48 — £210,000 • 2 bed • 2 bath • 619 ft²
2 bedroom flat for sale in Westbourne Road, West Kirby, Wirral, CH48 — £150,000 • 2 bed • 1 bath • 514 ft²
1 bedroom apartment for sale in Westbourne Grove, West Kirby, Wirral, Merseyside, CH48 — £270,000 • 1 bed • 1 bath • 896 ft²


























































