Tucked-away three-bed home with terrace and generous entertaining garden.
Chain-free detached home completed in 2024
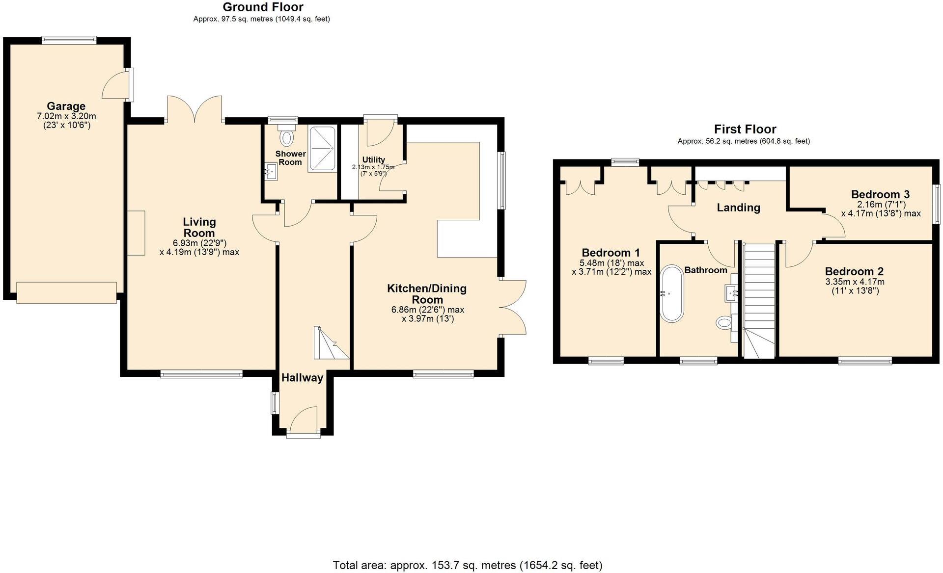
Completed in 2024 and offered chain-free, this detached three-bedroom bungalow sits tucked away on the edge of Perranwell Station. The home is arranged over two storeys and benefits from contemporary fittings throughout, an air source heat pump with ground-floor underfloor heating, double glazing and a 10-year build warranty — practical features that lower running costs and long-term maintenance concerns.
Living is arranged around a full-depth dual-aspect sitting room with wood burner and a generous kitchen–dining room that opens directly onto a broad south-facing terrace and lawn. The garden, terrace and outside kitchen area are designed for easy entertaining and relaxation; a timber enclosure provides a screened spot previously used for a hot tub. A large single garage and driveway space for four to five cars add useful parking and storage.
Upstairs finds three bedrooms and a luxurious main bathroom with freestanding bath; the ground floor includes a high-spec shower room and utility. The property is well placed for village life — the branch-line station, primary school and local amenities are within easy reach, while countryside paths and the Bissoe Trail are close by.
Note the property uses private drainage, broadband speeds are reported slow locally, and council tax is above average (Band E). These practical considerations should be factored into ownership costs and connectivity expectations.
3 bedroom detached house for sale in The Oaks, Perranwell Station, Truro, Cornwall, TR3 — £550,000 • 3 bed • 3 bath • 1425 ft²
4 bedroom detached house for sale in Penstraze, Chacewater, Truro, Cornwall, TR4 — £475,000 • 4 bed • 4 bath • 2094 ft²
4 bedroom detached house for sale in Perranwell Station, Truro, TR3 — £670,000 • 4 bed • 2 bath • 1635 ft²
4 bedroom detached house for sale in Tarrandean Lane, Perranwell Station, TR3 — £925,000 • 4 bed • 1 bath • 1370 ft²
4 bedroom detached house for sale in Trewinnard Road, Truro, TR3 — £875,000 • 4 bed • 3 bath • 3125 ft²
5 bedroom detached house for sale in Perranwell Station, Between Truro & Falmouth, TR3 — £750,000 • 5 bed • 3 bath • 3368 ft²






























































































































