Chain-free riverside townhouse in Arundel — parking, terrace and flexible living close to town..
Chain-free three-bedroom townhouse with riverside terrace and views
Carport and private driveway — parking for two cars
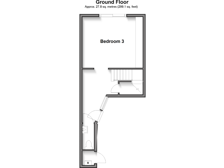
Ground-floor room adaptable as home office or studio
Principal bedroom with ensuite and fitted cupboards
Small plot; garden is a riverside terrace rather than large lawn
Double glazing installed before 2002; possible upgrade needed
Council tax level described as expensive
Built 1983–1990; may benefit from updating in places
Tucked into a quiet cul-de-sac in the heart of Arundel, this three-bedroom riverside townhouse offers a rare combination of town-centre convenience and peaceful waterside living. The light-filled kitchen/diner is the social hub, while a separate lounge opens to a Juliet balcony with pleasant river views. Set across three floors, the layout is flexible — the ground-floor room works well as a bedroom, home office or studio.
Outside, a recently landscaped riverside terrace provides a lovely spot to dine and watch the wildlife, while a carport and private driveway provide parking for two cars — an uncommon convenience in Arundel. The property is chain-free and freehold, with all bedrooms generous doubles and the principal bedroom benefitting from an ensuite and fitted cupboards.
Practical considerations: the house sits on a small plot and the glazing predates 2002, so potential buyers may wish to budget for window upgrades and general modernisation over time. Council tax is noted as expensive. Overall this home suits families or professionals wanting a manageable town-centre base with character, flexible space for working from home, and genuine riverside appeal.
3 bedroom terraced house for sale in Surrey Wharf, Arundel, West Sussex, BN18 — £600,000 • 3 bed • 2 bath • 628 ft²
3 bedroom town house for sale in Tarrant Wharf, Arundel, BN18 — £925,000 • 3 bed • 2 bath • 1427 ft²
2 bedroom terraced house for sale in The Slipe, Arundel, West Sussex, BN18 — £395,000 • 2 bed • 2 bath • 711 ft²
2 bedroom semi-detached house for sale in Wheelwrights Close, Arundel, West Sussex, BN18 — £335,000 • 2 bed • 1 bath • 765 ft²
3 bedroom terraced house for sale in Surrey Street, Arundel, BN18 — £550,000 • 3 bed • 2 bath • 1224 ft²
3 bedroom maisonette for sale in Wheelwrights Close, Arundel, BN18 — £500,000 • 3 bed • 3 bath • 1499 ft²














































































