Chain-free cottage with garden, garage and good update potential.
Detached two-bedroom chalet bungalow with countryside views
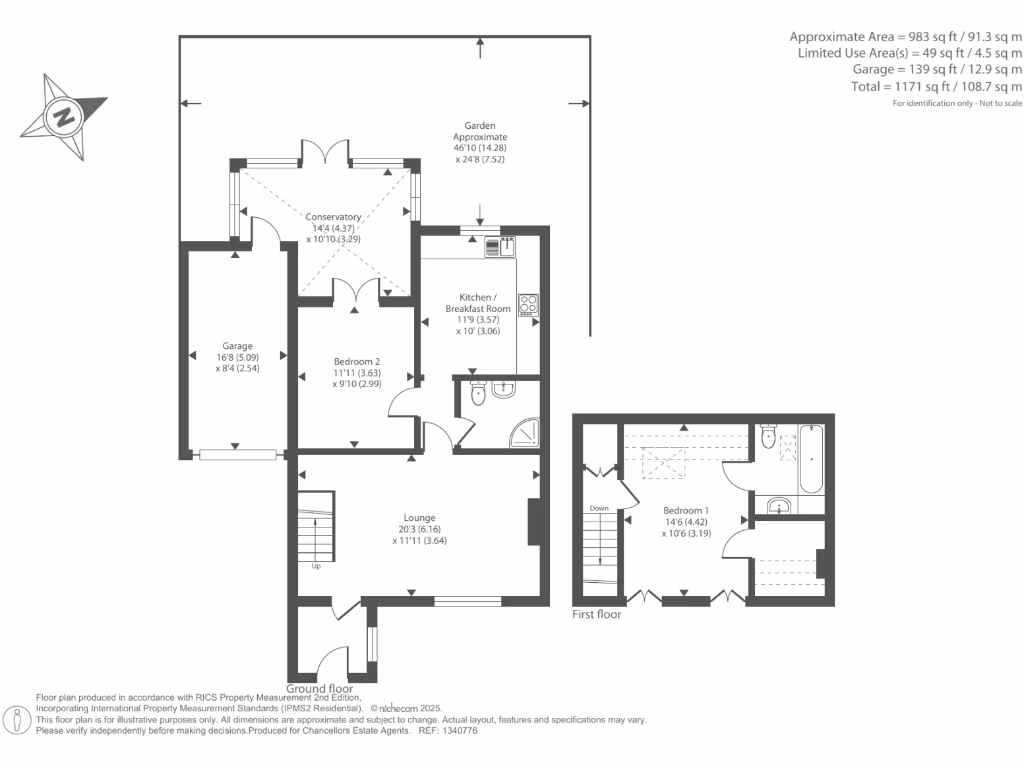
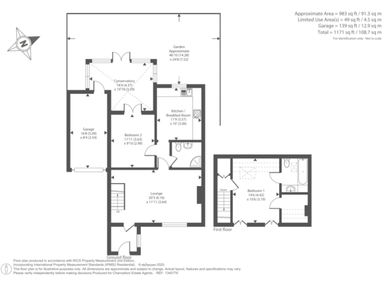
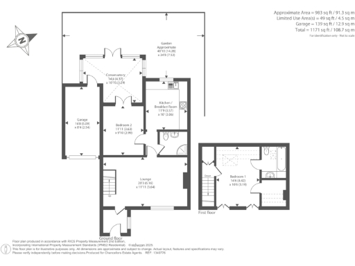
A comfortable two-bedroom detached bungalow set at the end of a quiet cul-de-sac, offered chain-free and ready for immediate occupation. The property benefits from a garage, driveway parking and a decent garden, with open countryside views that give a strong sense of space and privacy. At about 1,171 sq ft the layout feels generous for a bungalow, with a living room, kitchen, conservatory and two bathrooms across a multi-level plan.
Built c.1976–82, the cottage-style exterior has character but shows signs of age—ivy growth on the stonework and traditional fittings give charm but will need external maintenance. Insulation is partial and the double glazing was installed before 2002, so there is clear potential (and likely value uplift) from targeted updating of windows, insulation and cosmetic finishes.
Practical strengths include mains gas central heating, a garage and fast broadband speeds; the area is very affluent with very low crime and good local amenities including schools and leisure facilities. This home suits buyers looking to downsize into a manageable, characterful property with scope to modernise rather than those seeking a fully refurbished move-in-ready house.
2 bedroom detached bungalow for sale in Sandy Lane, Southmoor, OX13 — £295,000 • 2 bed • 1 bath • 574 ft²
3 bedroom detached bungalow for sale in Rose Close, Carterton, OX18 — £475,000 • 3 bed • 2 bath • 1325 ft²
2 bedroom detached bungalow for sale in Edgeworth Drive, Carterton, Oxfordshire, OX18 — £325,000 • 2 bed • 1 bath • 572 ft²
2 bedroom detached bungalow for sale in Edgeworth Drive, Carterton, Oxfordshire, OX18 — £310,000 • 2 bed • 1 bath • 493 ft²
3 bedroom detached bungalow for sale in Dene Rise, Witney, OX28 — £400,000 • 3 bed • 1 bath • 968 ft²
3 bedroom detached bungalow for sale in Beech Road, Witney, OX28 — £325,000 • 3 bed • 1 bath • 815 ft²


















































































