**Standout Features:**
- Newly converted 2-bedroom ground floor flat
- 2 stylish bathrooms
- Spacious, light-filled reception area with bay window
- Modern fitted kitchen with 'sage green' cabinetry and Quartz stone work surfaces
- Private south-facing garden with rear access
- High-quality decor and finishes throughout
- Gas central heating and double glazing
- Freehold share, chain-free, and immediate possession available
- Prime location close to local amenities and transport links
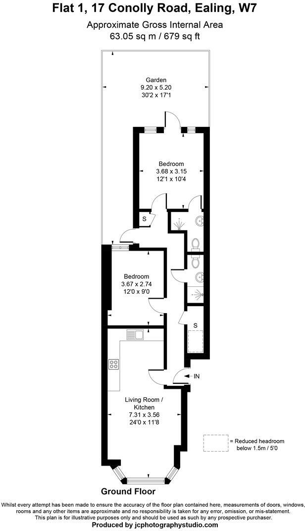
This beautifully renovated ground floor flat on Conolly Road is a delightful blend of modern comfort and classic charm, perfect for families, first-time buyers, or savvy investors. Spanning approximately 679 square feet, it features two well-sized bedrooms, including a master suite with an en-suite shower room, providing ample space for relaxation. The large open-plan living room, accentuated by a wide bay window, seamlessly integrates with a stylish kitchen area, complete with premium finishes that elevate everyday living. Enjoy the luxury of a private south-facing garden, ideal for entertaining or leisurely afternoons in the sun.
Moreover, the property benefits from a fresh, neutral decor and high-quality flooring, ensuring a move-in ready experience. Situated in a sought-after, tree-lined street, this flat is conveniently located just moments away from local shops, pubs, eateries, and bus services, with Hanwell mainline station nearby for swift connections to the city and Heathrow. While the crime rate in the area is on the higher side, the rich cultural environment and nearby green spaces, such as Conolly Dell and Brent Lodge Park, make this a vibrant and engaging place to call home. Don’t miss out on the chance to secure this exclusive property, offered chain-free and ready for you to make your own. Act fast – this gem won’t last long!
4 bedroom apartment for sale in Conolly Road, Hanwell, W7 — £599,950 • 4 bed • 2 bath • 976 ft²
2 bedroom apartment for sale in Drayton Bridge Road, Hanwell, W7 — £475,000 • 2 bed • 1 bath • 743 ft²
2 bedroom flat for sale in Cherington Road, Hanwell, W7 — £475,000 • 2 bed • 1 bath • 700 ft²
2 bedroom apartment for sale in Station Road, Hanwell, W7 — £400,000 • 2 bed • 1 bath • 612 ft²
2 bedroom flat for sale in Manor Road, Ealing, W13 — £550,000 • 2 bed • 2 bath • 700 ft²
2 bedroom flat for sale in Greenford Avenue, Hanwell, London, W7 3QS, W7 — £450,000 • 2 bed • 1 bath • 644 ft²






















































