**Highlights:**
- Beautifully presented 3-bedroom terraced house
- Walkable distance to Hale village and excellent amenities
- Modern kitchen with integrated appliances and utility room
- Off-road parking and private garden with seating area
- Chain-free sale for a seamless transition
- Period features throughout, including high ceilings and bay windows
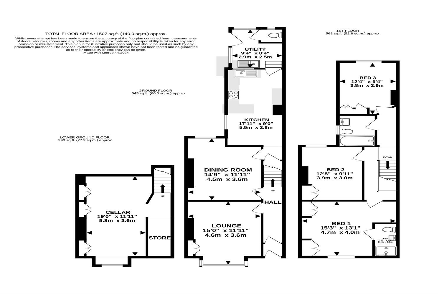
This charming mid-terraced home on Avon Road, Hale, offers a blend of modern convenience and classic elegance, perfect for families or first-time buyers. Spanning three floors and boasting 1,503 sq ft, the property features a stunning lounge with a bay window and elegant period detailing, alongside a spacious dining room and a well-equipped breakfast kitchen. The upper floor houses three well-sized bedrooms, including a master suite with an ensuite, ensuring ample space for comfort. Outdoor living is catered for with a private garden perfect for relaxation or entertaining.
Positioned in an affluent community, this home is within easy reach of Hale village's amenities, making it ideal for those seeking a vibrant lifestyle. Notably, the property is chain-free, allowing for a smooth purchase process. The charming period features combined with potential renovation opportunities make it a unique find that buyers shouldn't miss. Explore the potential this home has to offer before it’s gone!
3 bedroom terraced house for sale in Beech Road, Hale, WA15 — £675,000 • 3 bed • 1 bath • 1496 ft²
3 bedroom terraced house for sale in Hermitage Road, Hale, Altrincham, WA15 — £625,000 • 3 bed • 2 bath • 1826 ft²
3 bedroom terraced house for sale in Avon Road, Altrincham, WA15 OLB, WA15 — £575,000 • 3 bed • 2 bath • 1534 ft²
3 bedroom terraced house for sale in Hawthorn Road, Hale, Altrincham, WA15 — £700,000 • 3 bed • 3 bath • 958 ft²
3 bedroom semi-detached house for sale in Hale Low Road, Hale, Altrincham, WA15 — £535,000 • 3 bed • 1 bath • 941 ft²
3 bedroom terraced house for sale in Elm Road, Hale, Altrincham, Cheshire, WA15 — £700,000 • 3 bed • 2 bath • 1220 ft²


























































