Low-maintenance terraces moments from Earls Court and West Brompton stations.
Recently renovated two-bedroom lower-ground flat with contemporary fixtures
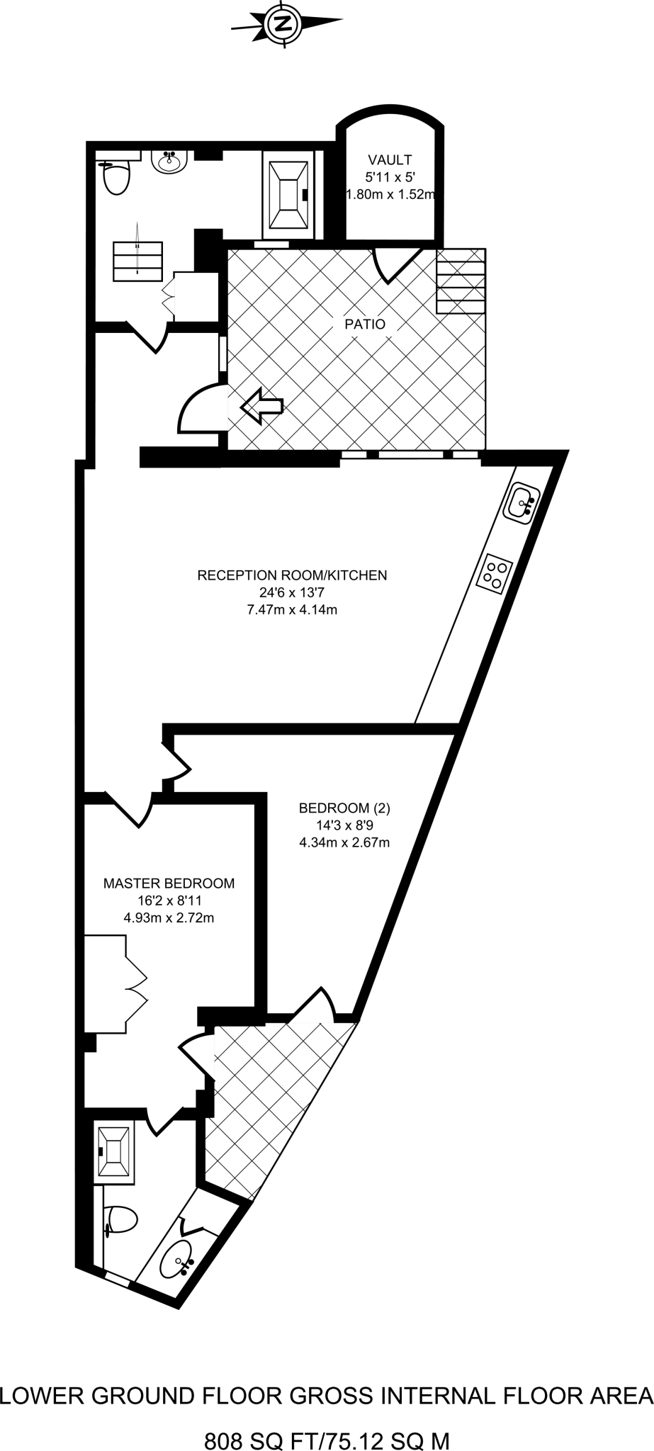
Open-plan kitchen and reception with integrated appliances and timber flooring
Master bedroom with en suite; second bedroom opens to rear patio
Two private patios; low-maintenance outdoor space
Approximately 808 sq ft interior including storage vault
Leasehold tenure — verify lease length, service charges, ground rent
Lower-ground position may suit some buyers' light and access needs
Close to Earls Court and West Brompton stations and local schools
Recently refurbished and thoughtfully arranged, this two-bedroom lower-ground flat offers a smart, move-in-ready home in Earls Court. The open-plan kitchen–reception has integrated appliances and timber floors, creating a contemporary living space that flows onto two patios for private outdoor use. The master bedroom benefits from an en suite shower room; a second bedroom also accesses the rear patio.
At about 808 sq ft, the apartment sits within an attractive period terrace and combines modern finishes with character proportions and a useful storage vault. Transport links are strong, with Earls Court and West Brompton stations a short walk away, and several well-rated local schools nearby, making the location practical for commuting and family life.
Important points to note: the property is leasehold, positioned on a lower-ground level, and lies in an area with pockets of deprivation despite low local crime. Prospective buyers should confirm lease length and any service or ground rent costs. Overall, this is a compact yet well-presented home that suits first-time buyers or professionals seeking a low-maintenance central London base with outdoor space.
2 bedroom flat for sale in Eardley Crescent, Earls Court, London, SW5 — £650,000 • 2 bed • 1 bath • 651 ft²
2 bedroom maisonette for sale in Nevern Place, Earls Court, London, SW5 — £850,000 • 2 bed • 2 bath • 1107 ft²
2 bedroom flat for sale in Earls Court Square, Earls Court, London, SW5 — £1,100,000 • 2 bed • 2 bath • 988 ft²
2 bedroom flat for sale in Cromwell Crescent, Earls Court, London, SW5 — £1,300,000 • 2 bed • 1 bath • 660 ft²
2 bedroom flat for sale in Redcliffe Gardens, Chelsea, London, SW10 — £800,000 • 2 bed • 2 bath • 777 ft²
2 bedroom maisonette for sale in Earl's Court Square, London, SW5 — £1,195,000 • 2 bed • 2 bath • 1436 ft²


































































