Planning granted for seven homes in an affluent Wiltshire village setting.
Freehold development plot of approximately 1.25 acres
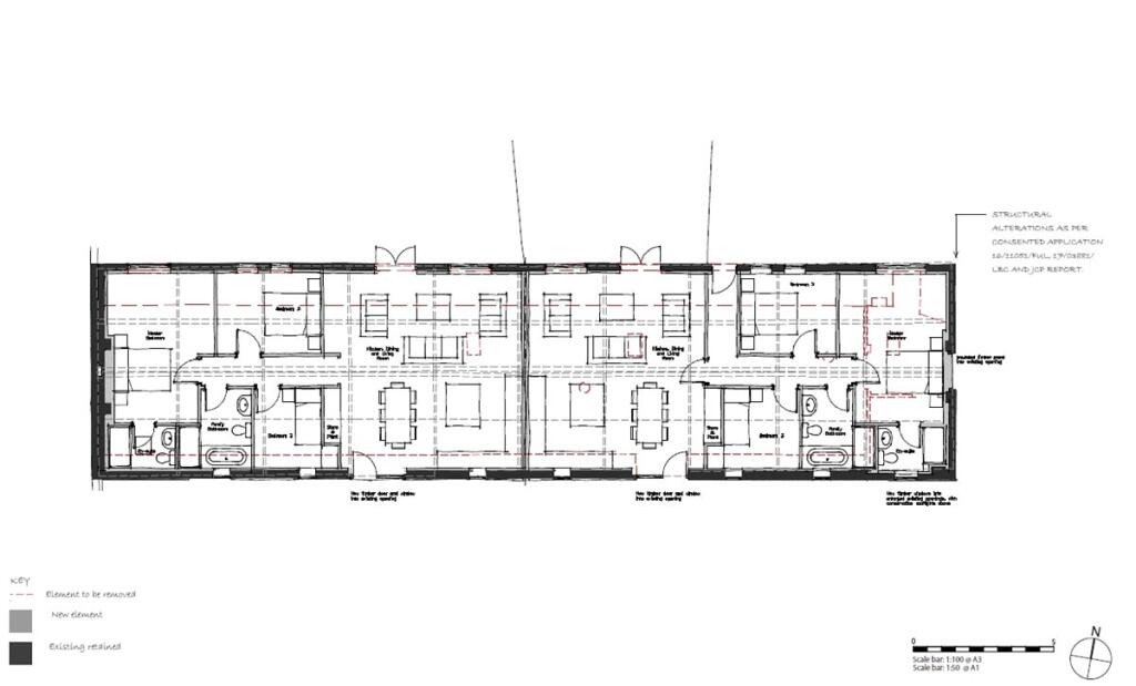
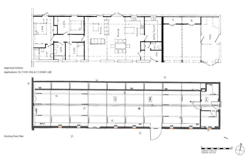
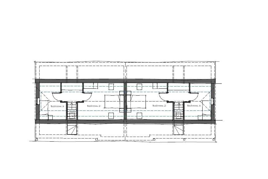
A 1.25-acre freehold development parcel in the heart of Wootton Rivers, offered with full planning consent for seven dwellings across two titles. Consent (19/04526/FUL and 19/11140/FUL) covers demolition of agricultural buildings, conversion and replacement of barns to form six homes, and a separate new five-bedroom two-storey house; a material start has been confirmed by Wiltshire Council. The site sits in a prosperous rural village setting a few miles from Marlborough and Pewsey, with easy road links and access to good schools and local services.
This opportunity suits developers or investor-builders seeking a near-complete planning position in a low-crime, affluent village. The plot has substantial landscaping and parking allowances and benefits from strong mobile signal and attractive countryside views. Two separate planning permissions mean the sale includes dual-title flexibility but will require coordination of final build works and services.
Buyers should note the site contains derelict agricultural buildings requiring demolition or comprehensive conversion works, and likely on-site infrastructure and build costs for utilities and broadband improvements. Broadband speeds are currently slow, which may require investment. Site access is controlled and viewings are strictly by appointment.
Plot for sale in Larkhill Road, Durrington, Salisbury, SP4 — £900,000 • 1 bed • 1 bath
Plot for sale in High Street, Great Cheverell, Devizes, SN10 — £350,000 • 1 bed • 1 bath • 2172 ft²
Commercial development for sale in Land at Brick Hill Farm, Warminster, BA12 8PF, BA12 — £750,000 • 1 bed • 1 bath
Plot for sale in East Gomeldon Road, Gomeldon, SP4 — £425,000 • 4 bed • 1 bath • 1000 ft²
Plot for sale in Seend Road, Worton, SN10 — £300,000 • 4 bed • 3 bath • 3500 ft²
Plot for sale in Plots with planning behind Lion & Fiddle, Trowbridge Road, Hilperton, Trowbridge, BA14 — £275,000 • 1 bed • 1 bath • 2300 ft²






















































































