W10 4QJ - 1 bedroom flat for sale in Ilbert Street, Queens Park Estat…

View on Property Piper

1 bedroom flat for sale in Ilbert Street, Queens Park Estate, London, W10

Summary - 32U ILBERT STREET LONDON W10 4QJ

1 bed 1 bath Flat

**Standout Features:**
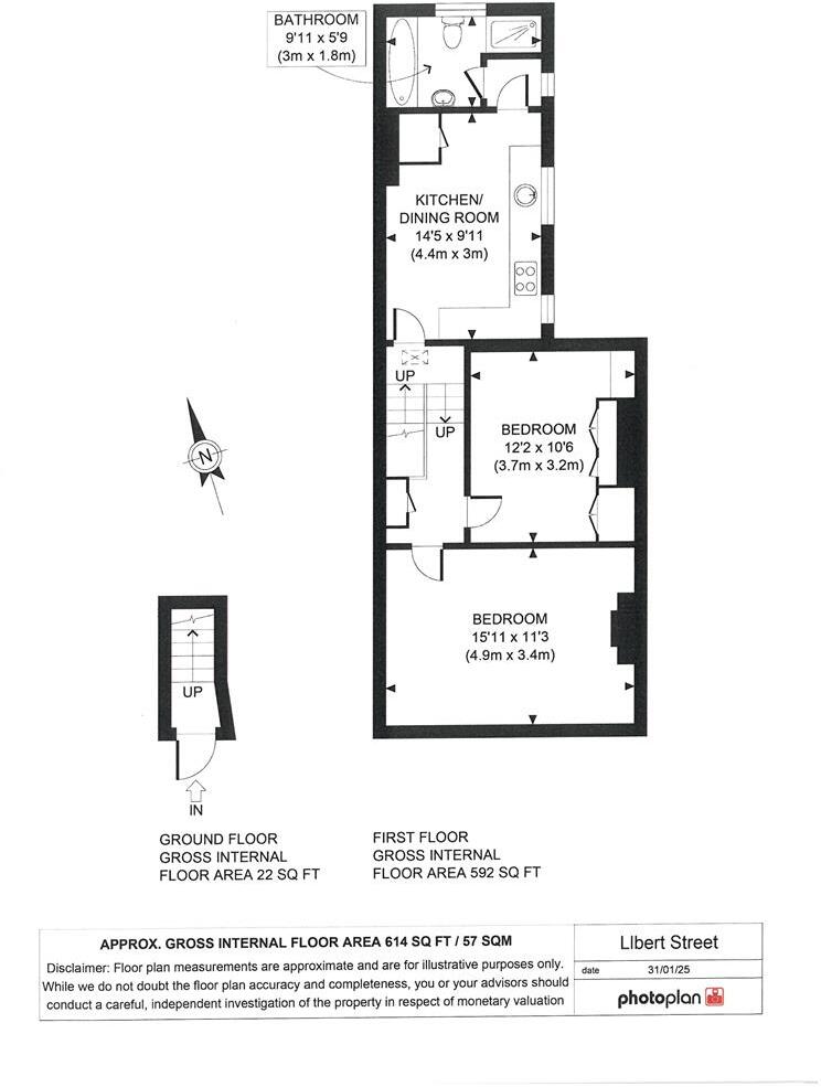
- First-floor converted flat, 614 sq.ft (57 sq.m)
- 1 bedroom with built-in wardrobes
- Spacious 16-ft south-facing reception room
- Kitchen/breakfast area with potential for modern updates
- Bathroom with separate shower cubicle
- Located opposite Queens Park Gardens in a desirable conservation area
- No upper chain and 90 years remaining on the lease

**Potential Concerns:**
- Requires renovation, allowing for customization
- Average crime rate in the area
- Scaffolding observed, indicating pending maintenance work

This charming first-floor flat situated on the tranquil Ilbert Street is a hidden gem within the sought-after Queens Park Conservation Area. Offering a generous 614 sq.ft of living space, this one-bedroom flat features a bright, south-facing reception room adorned with classic Victorian elements like high ceilings and a period fireplace, creating a warm and inviting atmosphere. The kitchen/breakfast room, ripe for modernization, provides ample storage, and the bathroom boasts a separate shower cubicle for added convenience.

Enviably positioned across from the picturesque Queens Park Gardens, residents enjoy easy access to lush green spaces and a vibrant community atmosphere. With multiple transport options nearby, including Queens Park, Westbourne Park, and Kensal Rise stations, commuting is a breeze. This property is key for first-time buyers or investors looking for a project to transform into a stylish urban retreat. Don’t miss the opportunity to personalize this flat and unlock its full potential in a desirable area—schedule your viewing today!

Property Details

Brochure Descriptions

Image Descriptions

Floorplan Description

Rooms

Textual Property Features

Detected Visual Features

EPC Details

Nearby Schools

Nearest Bars And Restaurants

,,,,}

Nearest General Shops

,,}

Nearest Grocery shops

,,}

Nearest Supermarkets

,,}

Nearest Religious buildings

,,}

Nearest Medical buildings

,,,}

Nearest Airports

,}

Nearest Leisure Facilities

,,,,}

Nearest Tourist attractions

,,}

Nearest Train stations

,,,,}

Nearest Bus stations and stops

,,,,}

Nearest Hotels

,,}

Tags

Local Market Stats

AirBnB Data

Similar Properties

Meta

High Res Images

Compatible Images

Low res Images

Thumbnails

Raw Images

High Res Floorplan Images

Compatible Floorplan Images

Low res Floorplan Images

FloorplanImages Thumbnail

Raw Floorplan Images