Large six-bed Tudor Revival home with 150ft garden, garage and no onward chain.
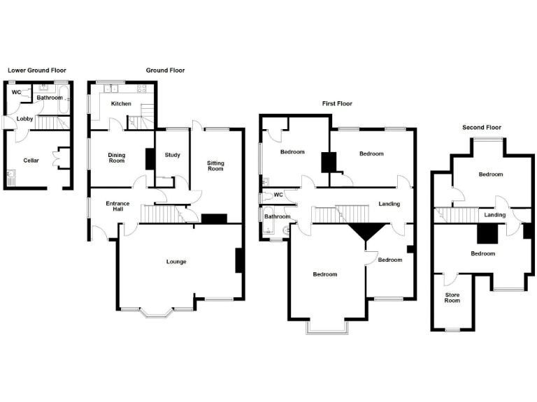
Six bedrooms across three floors with sea views from front bays
This substantial six-bedroom semi-detached townhouse sits close to the seafront and town centre, offering generous family accommodation over three floors. Key positives include a 150ft landscaped rear garden, detached garage, extensive off-street parking and sea views from front-facing bay windows — a rare combination for a coastal town location. Gas central heating and UPVC double glazing provide practical, modern comforts while original 1920s Tudor Revival features (oak beams, bay windows, fireplaces) give character throughout.
The layout suits a large family or multi-generation household: three reception rooms (lounge, sitting room, dining room), a study, fitted kitchen, large cellar/utility area and six bedrooms. Two bathrooms and separate WCs are provided, and the lower-ground cellar has power and a relatively new boiler (approx. two years old) — useful for storage or conversion subject to head-height limitations.
Buyers should note a few material points plainly. The property has some dated internal decor and patterned carpeting in places, so cosmetic updating is likely to be needed to suit contemporary tastes. The cellar has restricted head height, limiting its use without structural work. Council Tax is Band F (approx. £3,134 pa), and there are only two bathrooms for six bedrooms, which may be a consideration for larger households.
No onward chain and freehold tenure simplify a purchase. The location is in a very affluent area with good broadband and mobile signal, nearby schools rated Good, and local amenities within walking distance. For families seeking space, seaside proximity and period character — with clear potential to modernise and personalise — this townhouse is a strong contender.
4 bedroom detached house for sale in St. Georges Avenue, Harwich, Essex, CO12 — £475,000 • 4 bed • 1 bath • 1938 ft²
3 bedroom semi-detached house for sale in Lime Avenue, Dovercourt, Harwich, CO12 — £260,000 • 3 bed • 1 bath • 1025 ft²
4 bedroom detached house for sale in Fronks Road, Harwich, CO12 — £535,000 • 4 bed • 2 bath • 1363 ft²
5 bedroom semi-detached house for sale in Highfield Avenue, Harwich, Essex, CO12 — £385,000 • 5 bed • 1 bath • 1384 ft²
4 bedroom semi-detached house for sale in Wick Lane, Dovercourt, Harwich, Essex, CO12 — £350,000 • 4 bed • 2 bath • 1119 ft²
4 bedroom detached house for sale in Louvain Road, Harwich, CO12 — £400,000 • 4 bed • 2 bath • 1518 ft²


















































































