Compact four-bedroom new build with solar panels and off-street parking.
- New-build detached family home with contemporary open-plan ground floor
- South‑east facing garden connected by French doors
- Solar panels and EV charging point reduce running costs
- Two off-street parking spaces provided
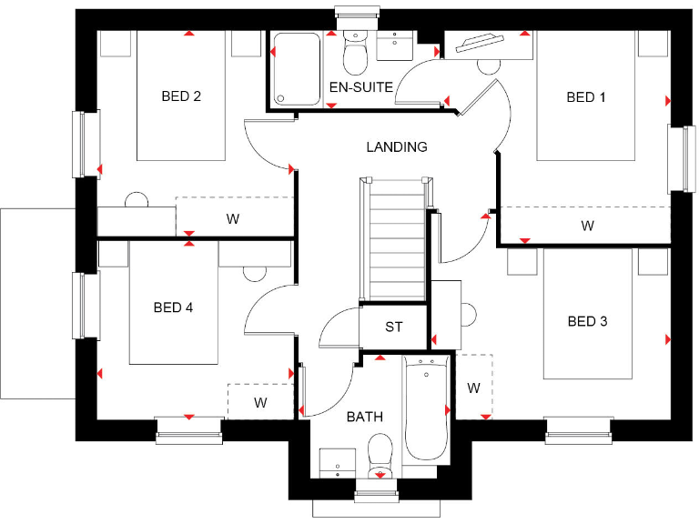
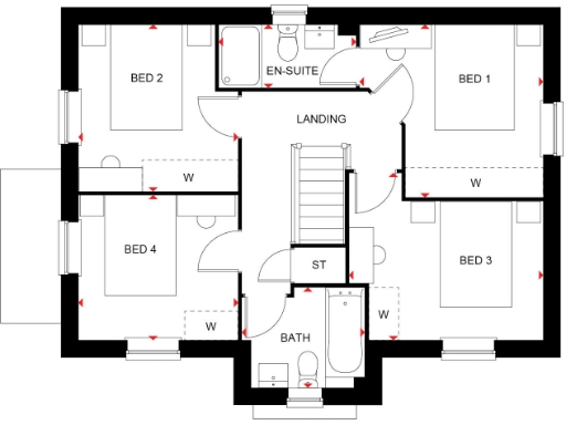
- Main bedroom with en suite; three bedrooms share family bathroom
- Overall size small (approx. 943 sq ft) — rooms modestly sized
- Broadband speeds in area reported as very slow
- Tenure unspecified; request full title and specification details
This modern detached family home in Yapton offers versatile living across four bedrooms in a compact new-build footprint. The open-plan kitchen/family/dining room and dual-aspect lounge give practical, contemporary space for daily life and entertaining. French doors connect the kitchen to a south‑east facing garden, bringing good natural light to the ground floor.
The property is energy-conscious with solar panels and an electric vehicle charging point, and comes with two off‑street parking spaces. The main bedroom benefits from an en suite shower room while three further bedrooms share the family bathroom, suitable for a growing family. Stamp duty support is available (up to £14,250), helping reduce upfront moving costs.
Important practical points: the house is described as small overall (approx. 943 sq ft) so rooms are well‑proportioned rather than large; broadband speeds in the area are reported as very slow. Tenure details are not provided and should be confirmed. Also, only limited marketing materials are available—obtain full floorplans, specification and site details before committing.
Set on the town fringe, the location is close to primary and secondary schools rated Good to Outstanding and offers a quiet, rural-traited environment. This will suit buyers seeking a low‑maintenance new home with modern running-cost advantages, but who can accept modest internal size and slower local broadband.
4 bedroom detached house for sale in Drove Lane,
Yapton,
West Sussex,
BN18 0EB, BN18 — £565,000 • 4 bed • 1 bath • 1248 ft²
3 bedroom detached house for sale in Drove Lane,
Yapton,
West Sussex,
BN18 0EB, BN18 — £427,500 • 3 bed • 1 bath • 806 ft²
4 bedroom detached house for sale in Drove Lane,
Yapton,
West Sussex,
BN18 0EB, BN18 — £550,000 • 4 bed • 1 bath • 1280 ft²
3 bedroom semi-detached house for sale in Drove Lane,
Yapton,
West Sussex,
BN18 0EB, BN18 — £400,000 • 3 bed • 1 bath • 806 ft²
4 bedroom detached house for sale in Drove Lane,
Yapton,
West Sussex,
BN18 0EB, BN18 — £515,000 • 4 bed • 1 bath • 1183 ft²
4 bedroom detached house for sale in Drove Lane,
Yapton,
West Sussex,
BN18 0EB, BN18 — £585,000 • 4 bed • 1 bath • 1301 ft²






































































