Bright family house with garden and flexible living close to Turnham Green station.
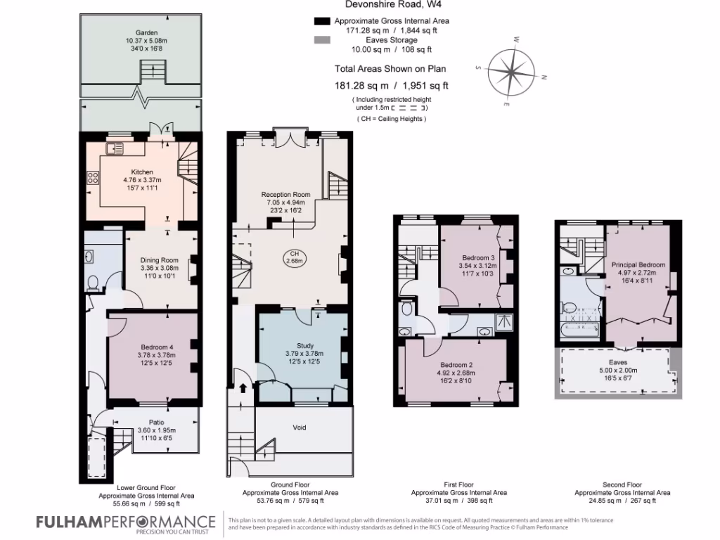
Approximately 1,951 sq ft across multiple floors
Set on one of Chiswick’s most sought-after streets, this Victorian mid-terrace combines generous living space with period character and sensible modern upgrades. High ceilings, a central fireplace and well-proportioned reception rooms give the house a warm, family-friendly feel while triple glazing helps with sound and thermal performance. The principal bedroom occupies the top floor with an en suite and skylights, giving a private, light-filled retreat.
The lower ground floor houses a bright U-shaped kitchen and a large dining area that opens onto a secluded west-facing garden with raised beds — ideal for children and summer entertaining. A fourth bedroom on this level opens onto a small private patio, useful as a guest room, home office or flexible family space. Overall the house offers excellent storage and clear potential to adapt rooms to suit changing family needs.
Practical points are straightforward: the property is freehold, totals about 1,951 sq ft and sits approximately 0.3–0.4 miles from Turnham Green (District line), making commutes into central London convenient. EPC C and mains gas central heating with a boiler and radiators are already in place. Flood risk is very low and mobile signal is excellent.
Notable considerations: the mid-terrace was built c.1900–1929 and the external walls are solid brick with assumed no cavity insulation, so further thermal upgrades could be beneficial. The plot is modest in size and council tax is described as expensive. Buyers seeking a completely turnkey finish should allow for some updating in parts of the house, though the structural character and layout provide a strong base for a comfortable family home.
3 bedroom terraced house for sale in Upham Park Road, London, W4 — £1,400,000 • 3 bed • 2 bath • 1419 ft²
4 bedroom terraced house for sale in Duke Road, Chiswick, London, W4 — £1,495,000 • 4 bed • 2 bath • 1637 ft²
4 bedroom terraced house for sale in Beaumont Road, London, W4 — £1,450,000 • 4 bed • 2 bath • 1863 ft²
5 bedroom terraced house for sale in Linden Gardens, Chiswick, W4 — £1,795,000 • 5 bed • 3 bath • 2053 ft²
4 bedroom terraced house for sale in Kingswood Road, London, W4 — £1,500,000 • 4 bed • 2 bath • 1670 ft²
5 bedroom terraced house for sale in Annandale Road, London, W4 — £1,500,000 • 5 bed • 3 bath • 1706 ft²


























































