Move-in ready two-bed close to Jarrow Metro and local amenities.
Two double/small-double bedrooms, neutral decor throughout
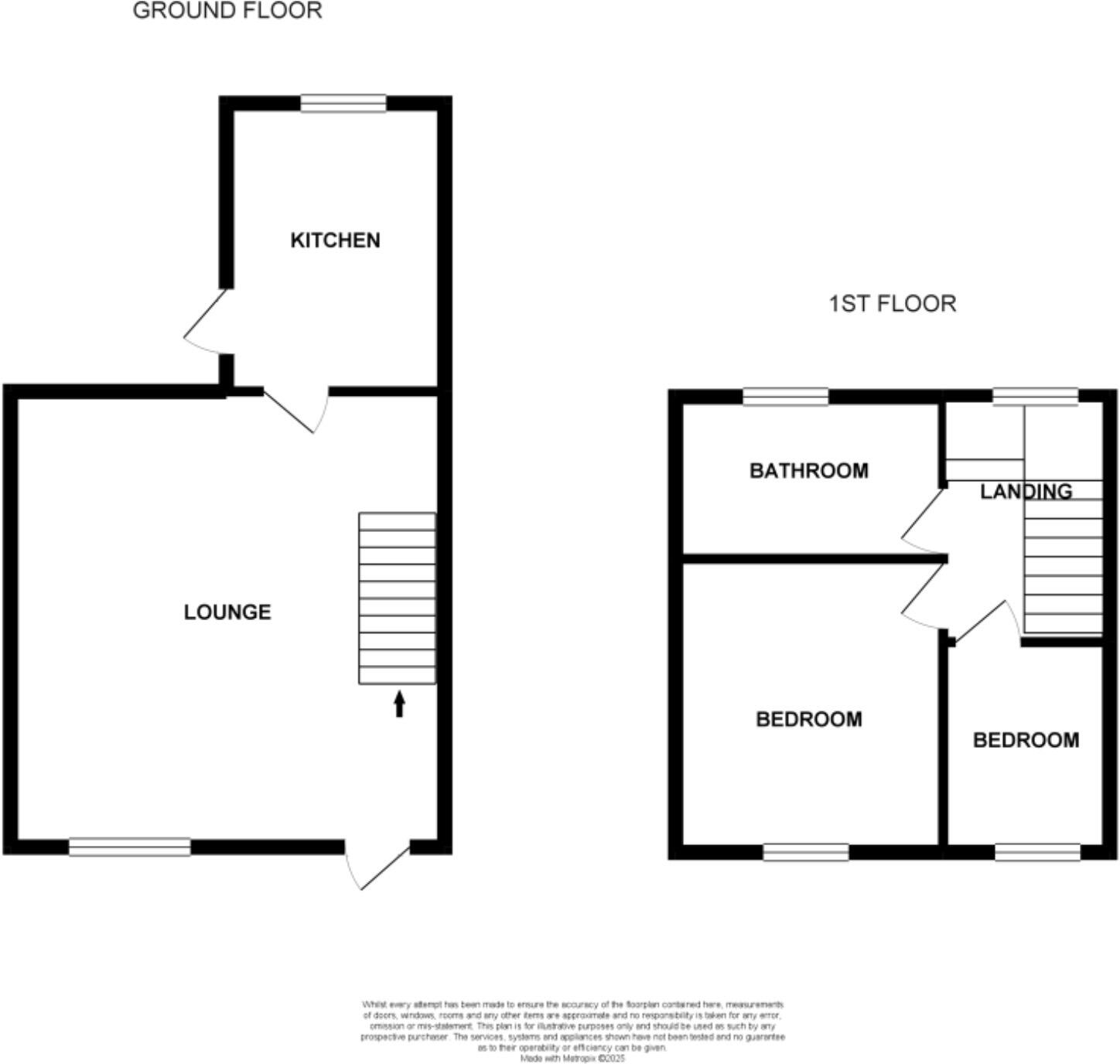
A well-presented two-bedroom terraced house set on Elm Street, offering generous reception space, a modern fitted kitchen, and a private rear yard with carport and electric roller shutter. The neutral decor and laminate flooring create a move-in ready feel for first-time buyers seeking straightforward, low-maintenance living.
The ground floor has a bright, spacious lounge suitable for living and dining, with a compact but well-equipped U-shaped kitchen to the rear. Upstairs provides a generous double bedroom plus a smaller second bedroom, alongside a three-piece bathroom with separate shower cubicle. Integrated appliances and useful storage (including loft access) add practical value.
Location is convenient for commuting: Jarrow Metro station is within walking distance and major road links (A19/A1) are nearby. Local amenities, shops, doctors, and several good-rated primary and secondary schools are close by. Council Tax Band A keeps running costs low and mobile and broadband connectivity are strong.
Important considerations: the property sits in an area with higher-than-average crime rates and broader local deprivation indicators — buyers should factor this into their decision. The plot is small, bedroom two is compact, and the EPC is rated D. Overall this is a pragmatic, affordable starter home or buy-to-let opportunity with easy access to transport and local services.
3 bedroom terraced house for sale in Oak Street, Jarrow, NE32 — £120,000 • 3 bed • 1 bath • 797 ft²
2 bedroom flat for sale in Oak Street, Jarrow, NE32 — £60,000 • 2 bed • 1 bath • 797 ft²
2 bedroom terraced house for sale in Hill Street, Jarrow, Tyne and Wear, NE32 — £149,950 • 2 bed • 1 bath • 615 ft²
2 bedroom terraced house for sale in Caroline Street, Jarrow, NE32 — £129,950 • 2 bed • 1 bath • 847 ft²
2 bedroom terraced house for sale in Northbourne Road, Jarrow, NE32 — £114,950 • 2 bed • 1 bath
2 bedroom semi-detached house for sale in Ogle Grove, Jarrow, NE32 — £140,000 • 2 bed • 1 bath • 573 ft²






































































