Chain-free three-bed home with large gardens and great commuter links.
Chain free three-bedroom semi-detached house
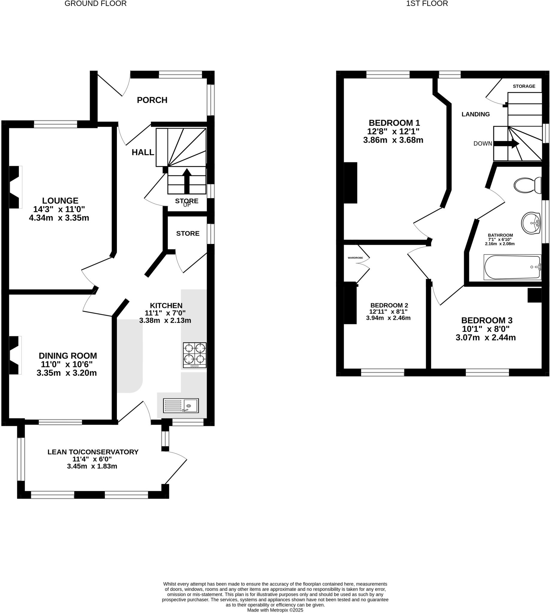
A three-bedroom semi-detached home offered chain-free, positioned within easy reach of Basingstoke town centre and the station — a practical choice for commuters or growing families. The layout includes a porch/lean-to conservatory, lounge with fireplace, separate dining room, compact kitchen, and generous storage beneath the stairs. Upstairs are three double bedrooms and a family bathroom, all arranged over a traditional multi-storey plan.
The property requires modernisation throughout, which is reflected in the asking price and presents scope to personalise finishes, improve energy performance and add value. The long, fully enclosed rear garden and sizeable front lawn are standout assets for outdoor living and potential extension (subject to planning). Both gardens require landscaping and general upkeep.
Practical details: freehold tenure, permit parking (off-street space limited), EPC rating D (68) and council tax band C. The house dates from the 1930s with cavity walls assumed uninsulated and double glazing installed before 2002 — buyers should factor in potential insulation and window upgrades, plus typical mid-century maintenance and modernisation costs.
This home suits buyers seeking a hands-on project close to amenities and good schools. For someone willing to invest modest renovation, it offers a roomy footprint, private gardens and an excellent commuter location.
3 bedroom semi-detached house for sale in Burgess Road, Basingstoke, Hampshire, RG21 — £395,000 • 3 bed • 1 bath • 714 ft²
3 bedroom semi-detached house for sale in Mansfield Road, Basingstoke, Hampshire, RG22 — £325,000 • 3 bed • 1 bath • 945 ft²
3 bedroom terraced house for sale in Lower Brook Street, Basingstoke, RG21 — £340,000 • 3 bed • 1 bath • 802 ft²
3 bedroom terraced house for sale in Wordsworth Close, Basingstoke, Hampshire, RG24 — £290,000 • 3 bed • 1 bath • 947 ft²
3 bedroom terraced house for sale in Wordsworth Close, Basingstoke, Hampshire, RG24 — £290,000 • 3 bed • 1 bath • 872 ft²
3 bedroom terraced house for sale in Basingstoke, Hampshire, RG22 — £280,000 • 3 bed • 1 bath • 830 ft²






























































