Sunny garden with outbuilding and off-street parking near the waterway.
Three double bedrooms, versatile living/dining layout
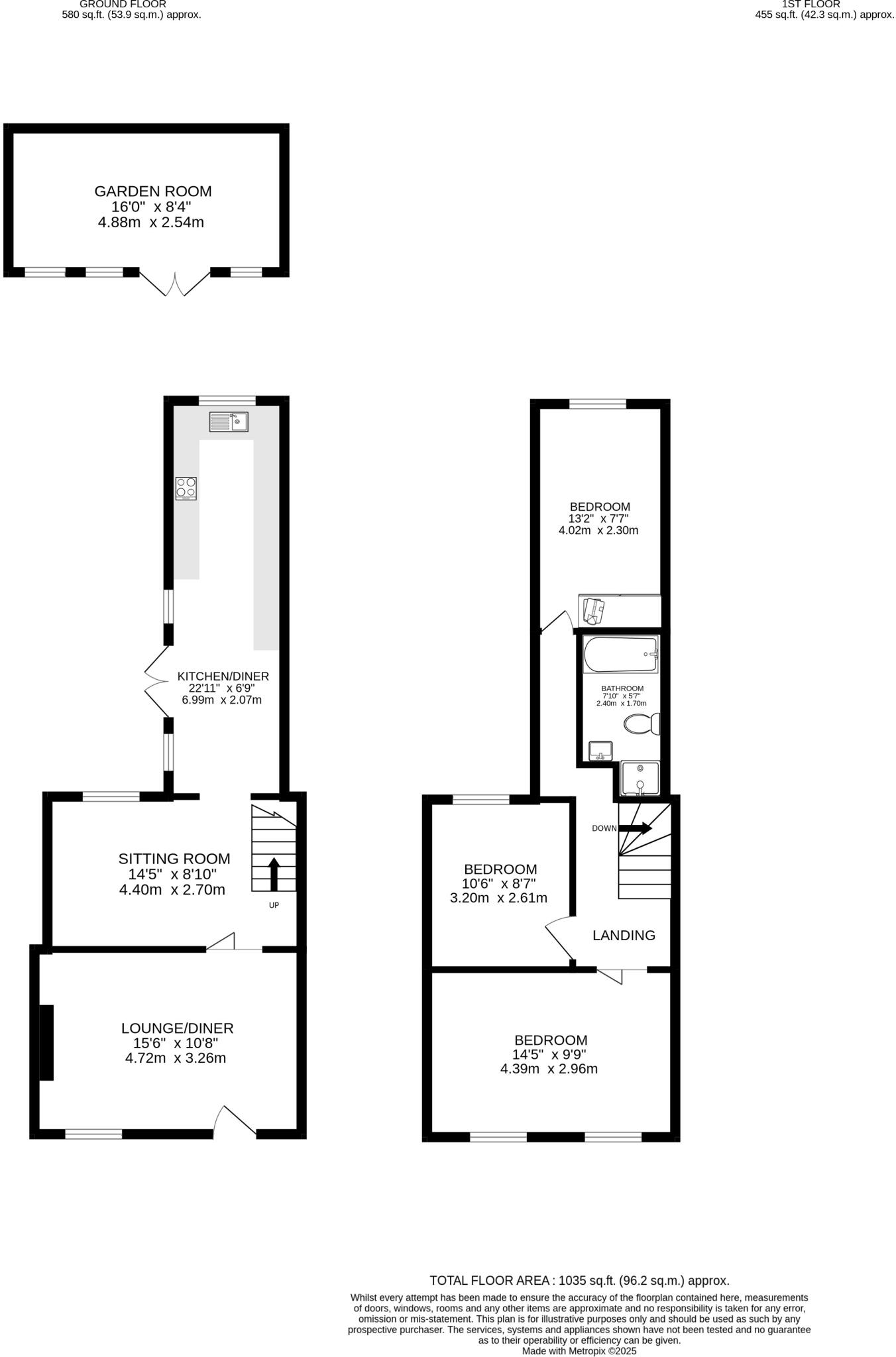
This freshly renovated three-bedroom semi offers ready-to-move-in family living a short walk from Milford Haven’s waterfront. The house has been refurbished throughout and combines period features with modern fittings — bright reception rooms, an extended kitchen with French doors, and comfortable gas central heating with double glazing.
The layout works well for family life: a versatile living/dining arrangement, three double bedrooms and a separate family bathroom. The sunny rear garden is a major asset, with a recently laid patio, large lawn and a garden room suitable for a home gym, playroom or studio. Driveway parking and a gravelled frontage add practical kerb appeal.
Practical details are favourable: freehold tenure, mains gas boiler and good broadband and mobile signal. The property backs onto playing fields, giving extra feeling of space and privacy. Council tax is described as affordable and there is no flood risk for the plot.
Buyers should note local social conditions: this part of Milford Haven records higher crime levels and significant area deprivation, which may affect some buyer preferences and insurance costs. The house’s older sandstone/limestone walls are assumed to have no added insulation, so purchasers may want to consider further wall insulation improvements in time. There is one family bathroom for three double bedrooms.
3 bedroom semi-detached house for sale in Eastleigh Drive, Milford Haven, Pembrokeshire, SA73 — £184,950 • 3 bed • 1 bath • 991 ft²
3 bedroom semi-detached house for sale in Beaconing Drive, Steynton, Milford Haven, Pembrokeshire, SA73 — £259,999 • 3 bed • 3 bath • 1088 ft²
3 bedroom detached house for sale in The Rath, Milford Haven, Pembrokeshire, SA73 — £240,000 • 3 bed • 1 bath • 1308 ft²
3 bedroom terraced house for sale in St. Peters Road, Milford Haven, Pembrokeshire, SA73 — £149,999 • 3 bed • 1 bath • 926 ft²
3 bedroom terraced house for sale in St. Peters Road, Milford Haven, SA73 — £130,000 • 3 bed • 1 bath • 1053 ft²
3 bedroom semi-detached house for sale in Yorke Street, Milford Haven, Pembrokeshire, SA73 — £249,999 • 3 bed • 1 bath • 1238 ft²






















































































































