Refurbished period flat with private garden near Hyde Park and transport links.
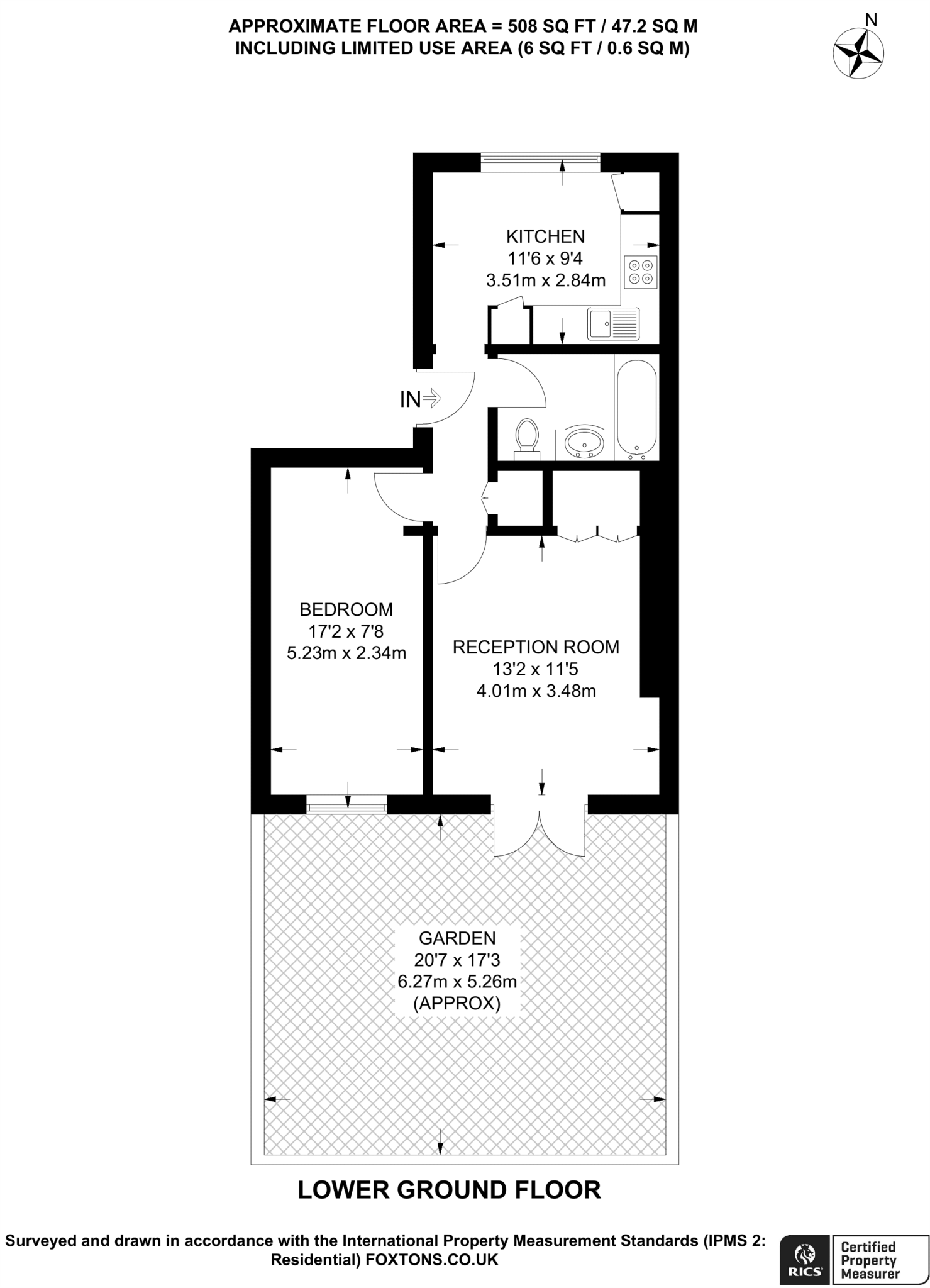
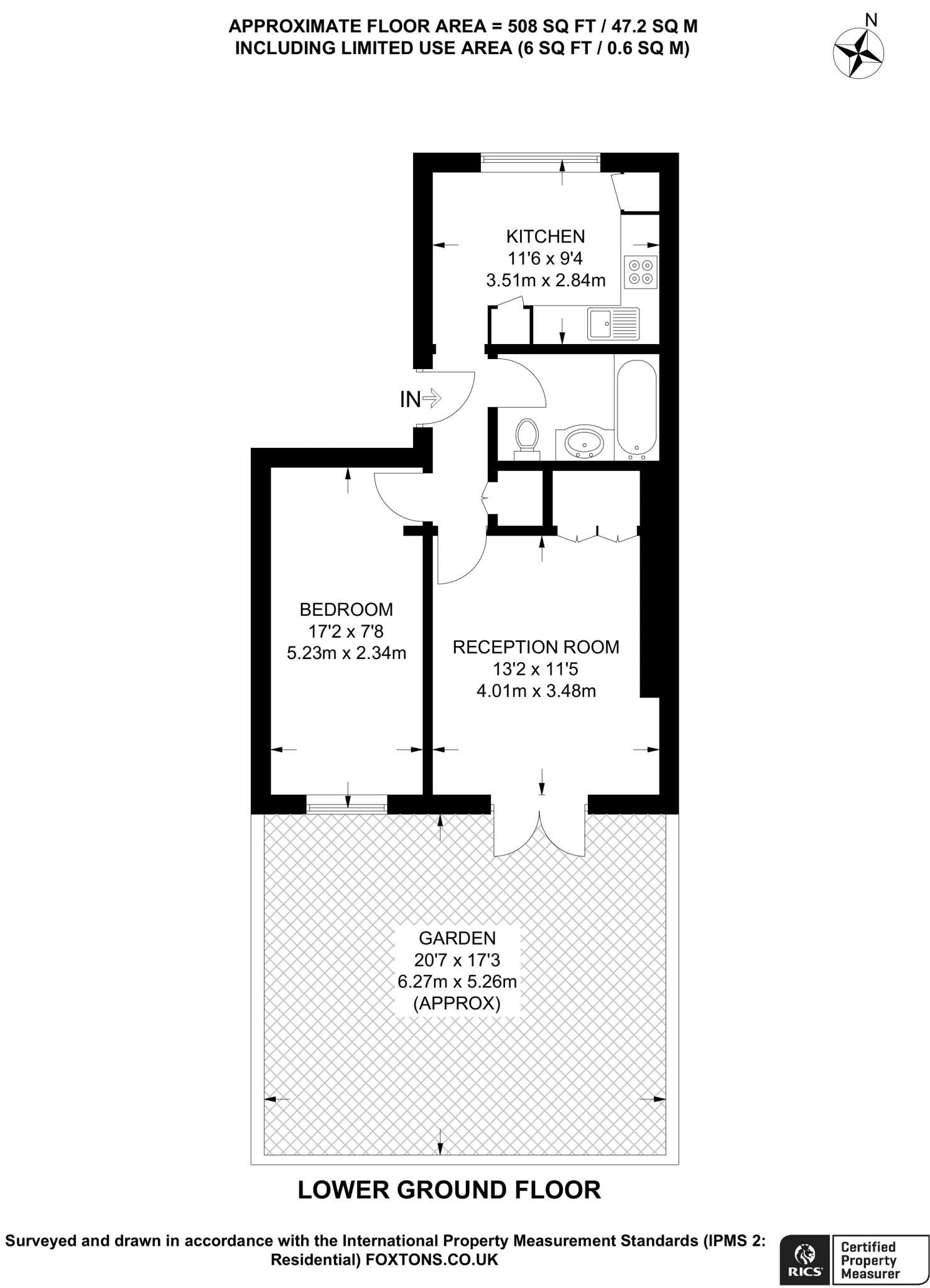
- Private patio garden plus access to communal gardens
- Newly refurbished throughout; contemporary kitchen and bathroom
- Large double bedroom, hardwood flooring and French doors
- Leasehold with 171 years remaining
- Annual service charge about £1,728
- High local crime rate and area deprivation noted
- Victorian rear garden overgrown; needs maintenance
- Solid brick walls, secondary glazing, possible insulation costs
A recently refurbished one-bedroom flat in a period conversion, this apartment offers a bright living room with hardwood floors and French doors opening to a private patio garden. The large double bedroom, contemporary kitchen and bathroom create a comfortable, move-in-ready home in central Bayswater, moments from Hyde Park, Queensway and local shops.
Practical details suit buyers wanting long-term certainty: a remaining lease of 171 years and mains gas central heating via boiler and radiators. Residents also benefit from access to well-maintained communal gardens and fast broadband and mobile signal for working from home.
Buyers should note clear, factual drawbacks: the property is leasehold (service charge approximately £1,728 annually), the neighbourhood records high crime and higher area deprivation, and the rear Victorian garden is overgrown and will need maintenance. The building has secondary glazing and solid brick walls with assumed no cavity insulation, which may affect heating costs and future improvement plans.
This flat will suit a first-time buyer seeking a central London home with outdoor space and good transport links, who values a newly renovated interior but wants to budget for ongoing service charges and local area considerations.
1 bedroom flat for sale in Porchester Terrace North, Queensway, London, W2 — £550,000 • 1 bed • 1 bath • 504 ft²
1 bedroom flat for sale in Porchester Square, Bayswater, London, W2 — £550,000 • 1 bed • 1 bath • 490 ft²
1 bedroom flat for sale in Queensway, Queensway, London, W2 — £500,000 • 1 bed • 1 bath • 549 ft²
1 bedroom apartment for sale in Orsett Terrace, Paddington, W2 — £485,000 • 1 bed • 1 bath • 475 ft²
1 bedroom flat for sale in Queensborough Terrace, Hyde Park, W2 — £499,950 • 1 bed • 1 bath • 531 ft²
1 bedroom flat for sale in Inverness Terrace, Bayswater, London, W2 — £600,000 • 1 bed • 1 bath • 440 ft²


































































































