Ideal for commuters, minutes from Woking station and town centre.
Long lease — 135 years remaining
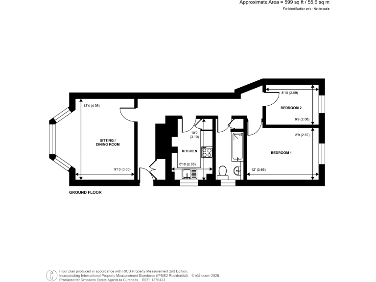
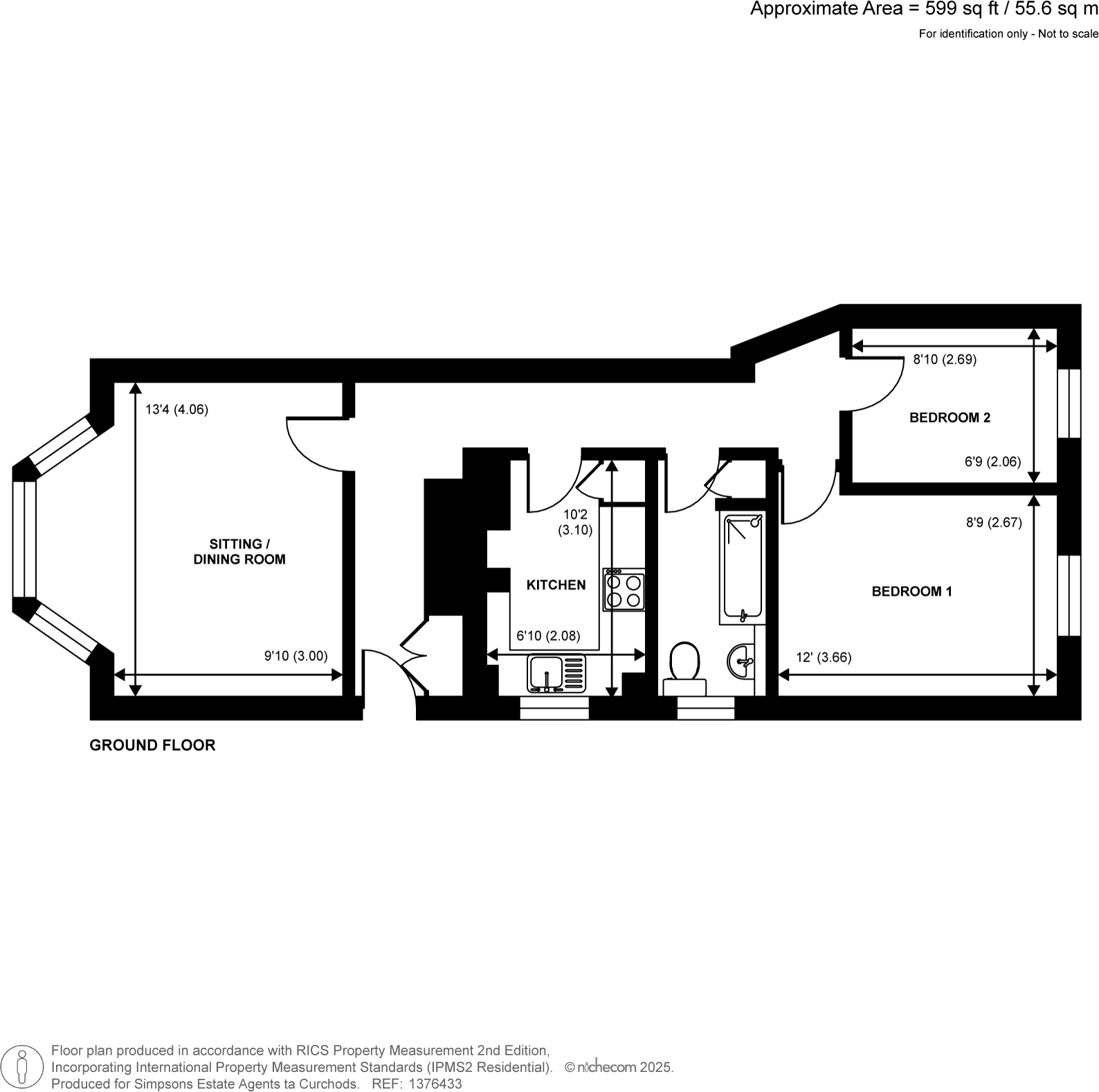
This ground-floor two-bedroom conversion combines period character with practical commuter convenience. The bay-front sitting room and high ceilings give generous light and a sense of space, while a separate kitchen and updated bathroom make the flat move-in ready for many buyers.
The property sits on a long lease (135 years remaining) and is offered chain-free, which simplifies purchase. Communal garden and off-street residents’ parking add low-maintenance outdoor space and convenience. The flat is a short walk to Woking town centre, mainline station (approx. 25 minutes to London), and local parks.
Internal space is modest at around 599 sq ft; room sizes suit a small family, professionals, or buy-to-let investors but will feel compact for some. There is limited private outdoor space and the building is a solid-brick period construction, so thermal improvements may be restricted. Service charge is approximately £1,200 per annum and the tenure is leasehold.
Overall, this is a well-located, characterful period conversion that offers an affordable entry to the Woking market. It will particularly suit first-time buyers and investors wanting low-maintenance accommodation near transport links, with some scope for cosmetic updating rather than major structural work.
2 bedroom flat for sale in The Corner House, Chobham Road, Horsell, Surrey, GU21 — £425,000 • 2 bed • 1 bath • 884 ft²
1 bedroom apartment for sale in Carmel Close, Mount Hermon Road, Woking, GU22 — £175,000 • 1 bed • 1 bath • 388 ft²
2 bedroom flat for sale in Constitution Hill, Woking, GU22 — £275,000 • 2 bed • 1 bath • 555 ft²
2 bedroom flat for sale in Cromwell Court, Tudor Way, Knaphill, Woking, GU21 — £250,000 • 2 bed • 1 bath • 593 ft²
1 bedroom flat for sale in Woking, Surrey, GU22 — £220,000 • 1 bed • 1 bath • 387 ft²
2 bedroom maisonette for sale in Woodlands Court, Woking, GU22 — £200,000 • 2 bed • 1 bath • 765 ft²














































































