CV6 7DY - 3 bedroom semidetached house for sale in 293 Old Church Roa…

View on Property Piper

3 bedroom semi-detached house for sale in 293 Old Church Road, Coventry, CV6 7DY, CV6

Summary - 293, OLD CHURCH ROAD CV6 7DY

3 bed 1 bath Semi-Detached

**Standout Features:**
- Freehold semi-detached property
- 3 bedrooms and 1 bathroom
- Spacious garden and garage
- Requires renovation
- Vacant possession upon completion
- Excellent mobile signal and fast broadband

This semi-detached fixer-upper, priced attractively at £49,000, stands as a blank canvas ripe for refurbishment, appealing especially to first-time buyers or investors looking for potential rental income in a vibrant urban area. With 1,049 square feet of living space, the property includes two interconnected reception rooms, a kitchen, and three well-proportioned bedrooms, offering ample room for creative renovations. The garden and garage provide extra value and outdoor space, perfect for a family.

However, important to consider is the home's current condition, rated 'G' for energy performance, indicating a need for substantial updates, including potential insulation improvements and the installation of modern heating solutions. Don’t miss this auction opportunity on September 11, 2025, to secure a freehold property in a diverse community, with local schools rated 'Good.' This is your chance to transform a dated exterior into a comfortable family home or investment asset—act fast as potential like this rarely lasts!

Property Details

Image Descriptions

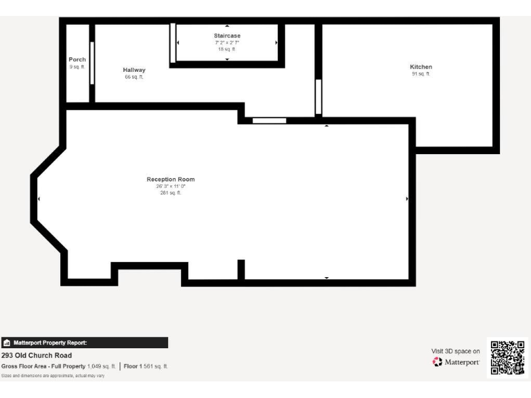
Floorplan Description

Rooms

Textual Property Features

Detected Visual Features

EPC Details

Nearby Schools

Nearest Bars And Restaurants

,,,,}

Nearest General Shops

,,}

Nearest Grocery shops

,,}

Nearest Supermarkets

,,}

Nearest Religious buildings

,,}

Nearest Medical buildings

,,,}

Nearest Airports

}

Nearest Leisure Facilities

,,,,}

Nearest Tourist attractions

,,}

Nearest Train stations

,,,,}

Nearest Bus stations and stops

,,,,}

Nearest Hotels

,,}

Tags

Local Market Stats

Similar Properties

Meta

High Res Images

Compatible Images

Low res Images

Thumbnails

Raw Images

High Res Floorplan Images

Compatible Floorplan Images

Low res Floorplan Images

FloorplanImages Thumbnail

Raw Floorplan Images