Ideal starter home with loft room and very low council tax.
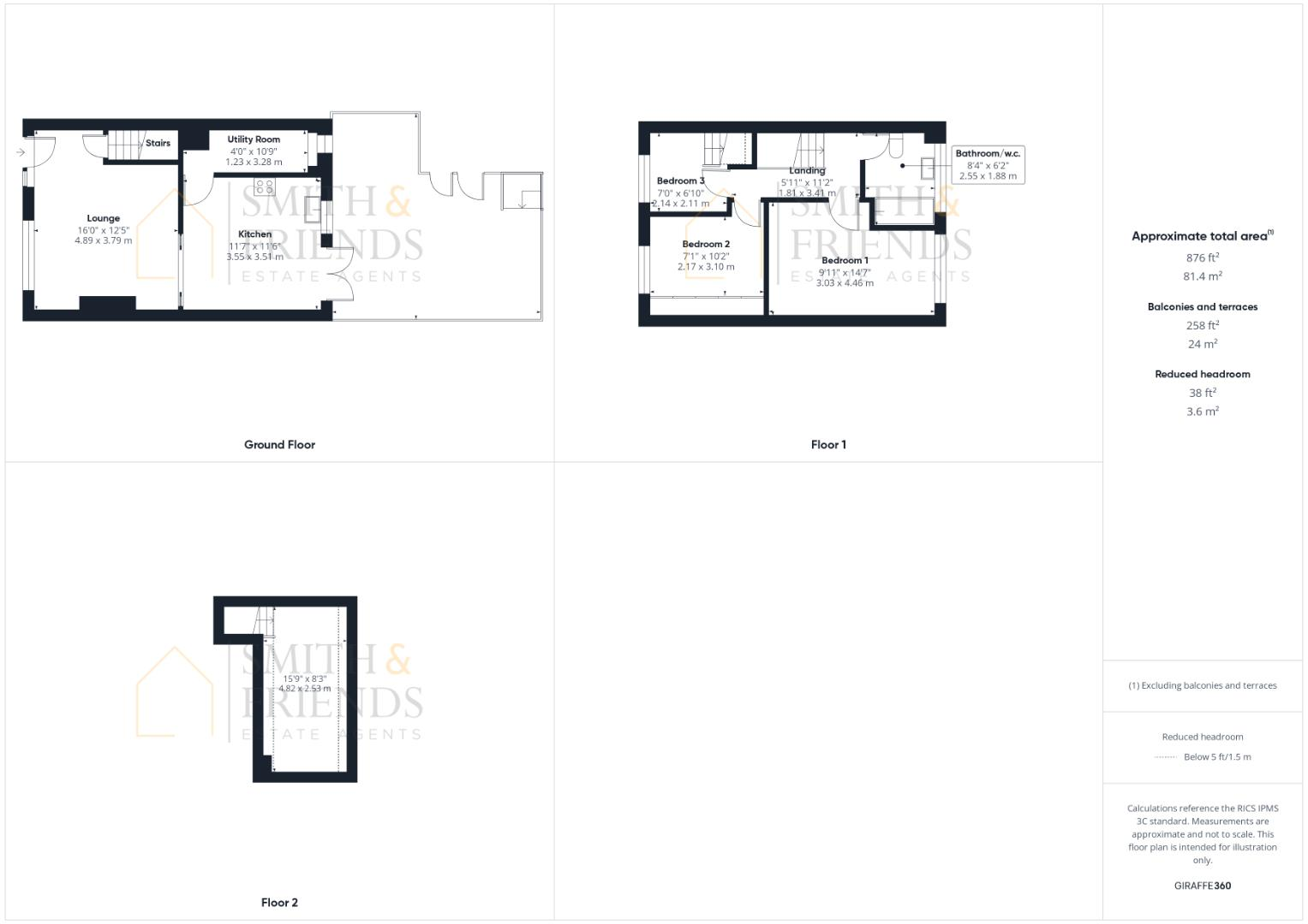
Well-presented three-bedroom mid-terrace with loft room
uPVC double glazing and mains gas central heating
Small forecourt and modest rear outdoor space, low maintenance
Average footprint ~876 sq ft; room sizes typical for type
For sale by modern auction — reservation fee applies (non-refundable)
Area classified very deprived with high local crime rate
Council tax band very low, useful for running costs
Suitable for first-time buyers or buy-to-let investors
This three-bedroom mid-terrace offers a compact, well-presented layout over two floors plus a loft room, making it a practical choice for a first home. Ground-floor living includes a lounge with a feature fireplace and an open-plan kitchen/dining area with utility space. uPVC double glazing and gas central heating are already in place, and council tax is very low.
The property comes with a small forecourt and a modest rear outdoor area, keeping exterior maintenance minimal. The footprint is average (circa 876 sq ft) with room sizes suited to everyday family use or rental occupancy. Local amenities include shops, a Sainsbury’s local and regular bus links; primary schools nearby have good Ofsted outcomes.
Buyers should be aware this sale is by modern auction method: you must sign a reservation agreement and pay a non‑refundable reservation fee (4.5% of the purchase price, minimum £6,600). Completion timescales are shortened and information will be shared with the auctioneer; allow for the auction process and associated fees when budgeting.
Location and context are material considerations. The immediate area is classified as very deprived with a high local crime rate. While the house itself is presented for immediate use, prospective buyers should factor neighbourhood conditions into long-term value and rental demand assessments.
3 bedroom terraced house for sale in Basil Street, Middlesbrough, TS3 — £50,000 • 3 bed • 1 bath • 1141 ft²
3 bedroom end of terrace house for sale in Devonshire Road, Middlesbrough, TS5 — £140,000 • 3 bed • 1 bath • 956 ft²
3 bedroom end of terrace house for sale in Studley Road, Middlesbrough, TS5 — £100,000 • 3 bed • 1 bath • 840 ft²
3 bedroom terraced house for sale in Newick Avenue, Middlesbrough, TS3 — £70,000 • 3 bed • 1 bath • 850 ft²
3 bedroom semi-detached bungalow for sale in Premier Road, Ormesby, Middlesbrough, TS7 — £100,000 • 3 bed • 1 bath • 562 ft²
2 bedroom terraced house for sale in Caversham Road, Middlesbrough, TS4 — £70,000 • 2 bed • 1 bath • 648 ft²






















































