Refurbished, low-cost living close to transport links ideal for investors or commuters.
Two double bedrooms with open-plan bay-fronted lounge/diner
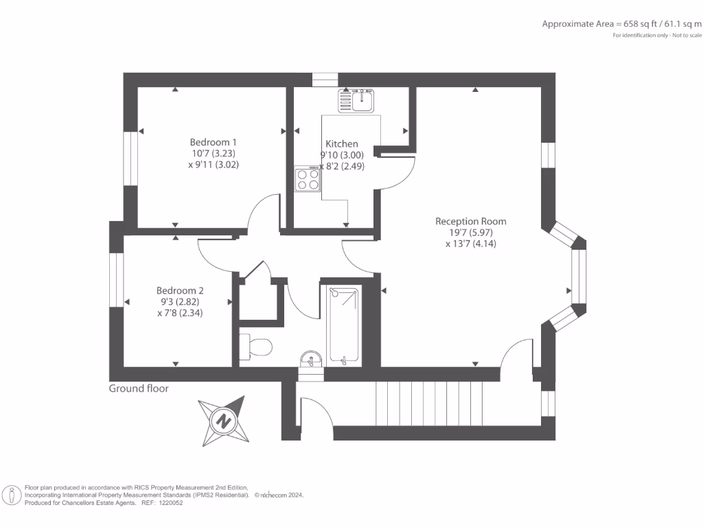
This two-bedroom first-floor maisonette sits 0.3 miles from High Wycombe station, offering straightforward rental appeal and commuter convenience. The flat has been newly refreshed, with a re-fitted kitchen, open-plan bay-fronted lounge/diner and double glazing throughout. Residential off-street parking and communal gardens add practical appeal for tenants or owner-occupiers.
Running costs are modest: mains gas central heating, a low ground rent (£10) and a below-average service charge (£395). The property’s 658 sq ft (approx.) layout is traditional and efficient, suitable for couples, sharers or a buy-to-let portfolio. Broadband and mobile signals are strong in the area.
Buyers should note the lease has about 89 years remaining — sufficient for many purchasers but potentially a factor for mortgage lenders and future value; lease extension costs may apply. Local schooling and amenities are mixed, and crime and deprivation indicators are average. Overall, this is a practical, commuter-friendly investment with immediate rental potential, but buyers should factor in lease considerations and standard communal fees.
2 bedroom maisonette for sale in Priory Villas, Priory Road, High Wycombe, HP13 — £290,000 • 2 bed • 1 bath • 747 ft²
2 bedroom flat for sale in Flitcroft Lea, High Wycombe, HP13 — £275,000 • 2 bed • 1 bath • 682 ft²
2 bedroom maisonette for sale in Southbourne House, High Wycombe, HP13 — £265,000 • 2 bed • 1 bath • 762 ft²
2 bedroom maisonette for sale in High Wycombe, Buckinghamshire, HP11 — £230,000 • 2 bed • 1 bath • 516 ft²
2 bedroom maisonette for sale in High Wycombe, Train station, Buckinghamshire, HP11 — £210,000 • 2 bed • 1 bath • 695 ft²
2 bedroom flat for sale in High Wycombe, Buckinghamshire, HP13 — £225,000 • 2 bed • 2 bath • 792 ft²










































































