SO30 2HB - 4 bedroom detached house for sale in Off Botley Road, White…

View on Property Piper

4 bedroom detached house for sale in Off Botley Road, Whiteley, Hampshire, SO30 2HB, SO30

Summary - Off Botley Road, Whiteley, Hampshire, SO30 2HB SO30 2HB

4 bed 1 bath Detached

New-build family home with solar, EV charging and cul-de-sac setting.
Upgraded kitchen valued at £4,500 included
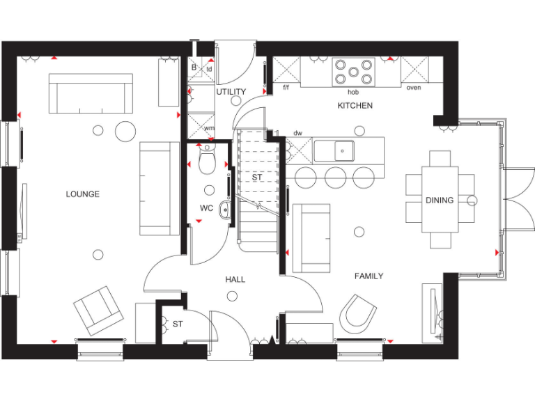
This four-bedroom detached new build on Forest Walk offers a modern family layout with energy-saving features designed to reduce running costs. The large open-plan kitchen/family/dining area — upgraded to a £4,500 specification and with French doors to the garden — sits alongside a dual-aspect lounge with a feature bay window. The main bedroom has an en suite and there are two further doubles plus a single fourth bedroom.

Practical benefits include photovoltaic solar panels, an electric vehicle charging point, garage plus two parking spaces, and an NHBC warranty for peace of mind. The house sits on a very large plot in a cul-de-sac overlooking open space, attractive for families who value outside play and privacy. A £5,000 deposit contribution is offered to assist buyers.

Buyers should note there is only one family bathroom (plus the en suite), and the property is in a location assessed as high flood risk. Local crime is above average and the tenure is not stated, so check specifics before committing. The home is well suited to buyers seeking a low-maintenance modern house with strong energy credentials and flexible living space, but those concerned about flood exposure or local safety should investigate further.

Property Details

Brochure Descriptions

Image Descriptions

Floorplan Description

Rooms

Textual Property Features

Target Audience

AI Tags

Detected Visual Features

Nearby Schools

Nearest Bars And Restaurants

,,,,}

Nearest General Shops

,,}

Nearest Grocery shops

,,}

Nearest Supermarkets

,,}

Nearest Religious buildings

,,}

Nearest Medical buildings

,,,}

Nearest Airports

}

Nearest Leisure Facilities

,,,,}

Nearest Tourist attractions

,,}

Nearest Train stations

,,,,}

Nearest Bus stations and stops

,,,,}

Nearest Hotels

,,}

Tags

Local Market Stats

AirBnB Data

Similar Properties

Meta

High Res Images

Compatible Images

Low res Images

Thumbnails

Raw Images

High Res Floorplan Images

Compatible Floorplan Images

Low res Floorplan Images

FloorplanImages Thumbnail

Raw Floorplan Images