Immediate rental income with shared parking and communal garden.
Long-term tenant in situ, producing £6,480 gross per year
This one-bedroom apartment on Dunstall Street is presented primarily as a buy-to-let opportunity. It comes with a long-term tenant in place producing an annual gross income of £6,480, offering immediate rental return from day one. Shared private parking and communal garden space add low-maintenance external amenities for tenants.
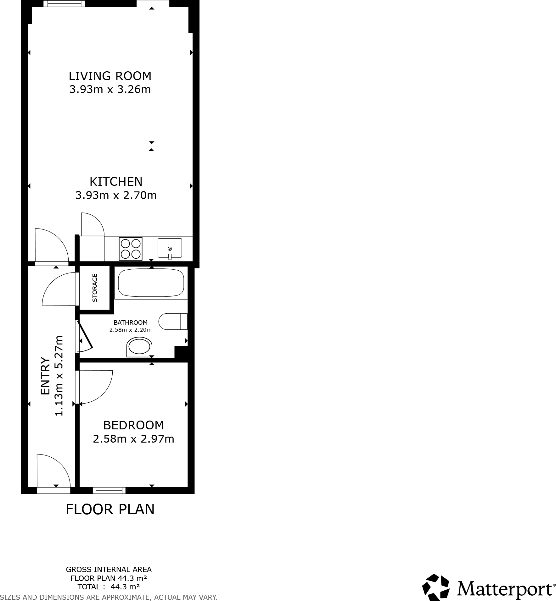
The block is a modern, red-brick purpose-built development with compact, low-maintenance accommodation (approximately 474 sq ft). The flat is leasehold and currently tenanted; sale will attract investors wanting an income-producing asset rather than an owner-occupier seeking to move in straightaway. A Buyers Premium applies to secure the purchase – factor this into total acquisition costs.
Material negatives to consider: the property sits in a very deprived area with very high recorded crime levels, which may limit capital growth and tenant profiles. Broadband speeds are average and the accommodation is compact, so there is limited scope to increase rent without refurbishment or active asset management. No interior photos are provided; buyers should arrange a viewing or request the Let Property Pack for tenancy documents and more detail.
For the right investor this flat offers a straightforward, low-management income stream and on-site parking, but it is best viewed as a rental investment that requires due diligence on tenancy terms, lease length, and additional purchase costs.
1 bedroom flat for sale in Dunstall Street, Scunthorpe, DN15 — £70,000 • 1 bed • 1 bath • 474 ft²
1 bedroom flat for sale in Staindale Road, Scunthorpe, Lincolnshire, DN16 — £80,000 • 1 bed • 1 bath • 484 ft²
2 bedroom flat for sale in Kensington Road, Scunthorpe, DN15 — £42,500 • 2 bed • 1 bath • 592 ft²
2 bedroom flat for sale in Apartment 100 Linea, Dunstall Street, Scunthorpe, DN15 — £90,000 • 2 bed • 1 bath • 592 ft²
2 bedroom terraced house for sale in Whimbrel Chase, Scunthorpe, North Lincolnshire, DN16 — £120,000 • 2 bed • 1 bath • 628 ft²
2 bedroom terraced house for sale in Redbourne Street, Scunthorpe, DN16 — £72,000 • 2 bed • 1 bath • 905 ft²






































































