Large renovated home with big garden and versatile layout near Whitstable amenities.
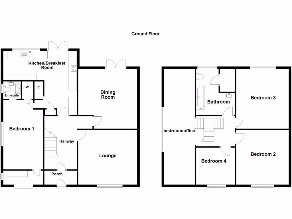
Large newly renovated and extended five-bedroom family home
Downstairs bedroom with ensuite — ideal for guests or multigenerational use
Separate lounge and dining rooms for flexible family living
Modern fitted kitchen with seating area, 19' x 15' max
Good-sized sunny rear garden on a large plot; needs landscaping
Plenty of off-street parking and attached garage
One upstairs room has restricted head height — limited use
Freehold, no flood risk; excellent broadband and mobile signal
This spacious five-bedroom semi-detached home in Whitstable has been newly renovated and extended to suit family life. The layout provides separate lounge and dining rooms, a generous modern kitchen with breakfast seating, and a ground-floor bedroom with ensuite — useful for guests or multigenerational living. Large driveway parking and an attached garage add everyday convenience.
Upstairs are four further bedrooms and a family bathroom; one room has some restricted head height due to roof/dormer profile, so it suits storage, a study, or a child's bedroom rather than a main double. The property sits on a large plot with sunny rear gardens that offer strong potential for landscaping, play space, or future outdoor entertaining.
The house blends period 1930s character externally with contemporary interiors from a recent renovation, giving practical modern systems and finishes. Local amenities, good-rated primary and secondary schools, and Whitstable’s coastal lifestyle are all within easy reach — attractive for families who want space close to town and sea.
Notable maintenance items: the rear garden and patio are currently unkempt and will require landscaping to reach full potential. Buyers should note the restricted head-height in one upstairs room when planning uses. Otherwise the property is freehold, has excellent broadband and mobile signal, low local crime, and no flood risk.
5 bedroom semi-detached house for sale in Plantation Road, Whitstable, CT5 — £575,000 • 5 bed • 2 bath • 1559 ft²
4 bedroom detached house for sale in Major Close, Whitstable, CT5 — £550,000 • 4 bed • 3 bath • 2023 ft²
5 bedroom semi-detached house for sale in Grimthorpe Avenue, Whitstable, Kent, CT5 — £465,000 • 5 bed • 1 bath • 1005 ft²
4 bedroom detached house for sale in Pean Court Road, Whitstable, CT5 — £1,250,000 • 4 bed • 4 bath • 3233 ft²
5 bedroom detached house for sale in Florence Avenue, Seasalter, Whitstable, CT5 — £575,000 • 5 bed • 2 bath • 1572 ft²
4 bedroom semi-detached house for sale in Shearwater Avenue, Whitstable, CT5 — £485,000 • 4 bed • 2 bath • 1327 ft²






















































