**Standout Features:**
- Exceptional historic conversion of Migdale Hospital (built in 1872)
- Spacious 2 bedrooms with high ceilings and skylights
- Modern fully fitted kitchen with contemporary design
- Bright sunroom, large utility room, and charming cloakroom
- Generous private courtyard and access to communal garden
- Ample residents' parking available
- Fully equipped with underfloor heating on the ground floor
- Chain-free sale
**Potential Downsides:**
- Property has listed status, which may limit renovations
- Overall area classified as "very deprived," impacting community resources
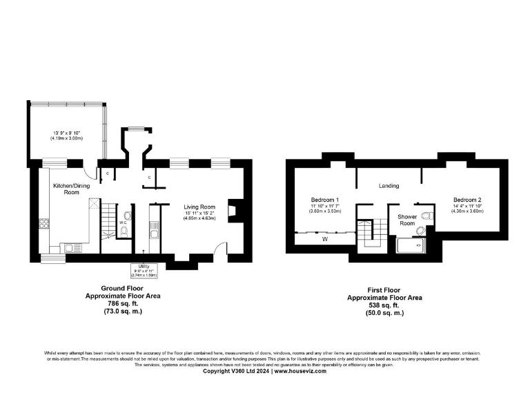
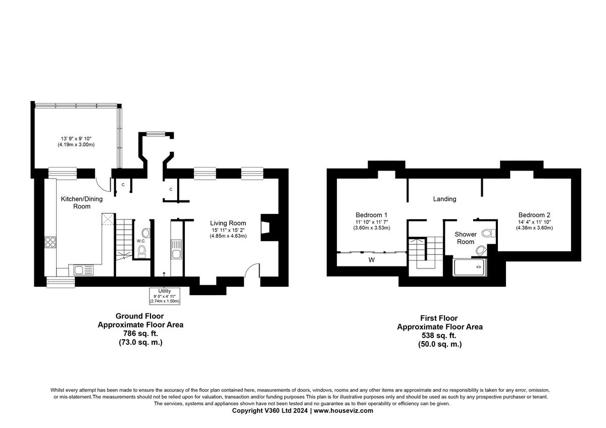
Step into a unique piece of Bonar Bridge's heritage with this stunning two-bedroom property, an exquisite conversion of the historic Migdale Hospital. This spacious home offers a blend of charm and modernity, featuring large double bedrooms, a fully fitted contemporary kitchen, and a sunroom flooded with natural light. Enjoy the luxury of underfloor heating and the tranquility of the beautifully landscaped communal courtyard, perfect for relaxing or entertaining.
With 1195 square feet of thoughtfully designed living space, there are ample opportunities for a young couple or small family to make it their own. The property is chain-free, allowing for a smooth transition into this serene village setting, known for its breathtaking landscapes and close-knit community atmosphere.
While the listed status may bring some restrictions to future modifications, this property’s architectural significance and idyllic surroundings present a rare buying opportunity. Don't miss your chance to own a slice of history within the gateway to the Highlands—schedule your viewing today to experience this remarkable home firsthand!
2 bedroom terraced house for sale in Matheson Road, Bonar Bridge, IV24 3AG, IV24 — £215,000 • 2 bed • 2 bath • 721 ft²
1 bedroom end of terrace house for sale in Matheson Road, Bonar Bridge, IV24 3AG, IV24 — £195,000 • 1 bed • 1 bath • 603 ft²
2 bedroom terraced house for sale in Dornoch Road, Ardgay, IV24 3EB, IV24 — £195,000 • 2 bed • 3 bath • 1163 ft²
3 bedroom semi-detached house for sale in Gilmour Crescent, Ardgay, IV24 3EN, IV24 — £172,500 • 3 bed • 2 bath • 1076 ft²
3 bedroom terraced house for sale in Sunny Braes, Dornoch Road, Bonar Bridge, Ardgay, IV24 — £190,000 • 3 bed • 1 bath • 965 ft²
4 bedroom detached bungalow for sale in Bonar Bridge, Ardgay, IV24 3AH, IV24 — £290,000 • 4 bed • 2 bath • 1582 ft²


























































































































