Single-floor family living with huge garden and double garage near town.
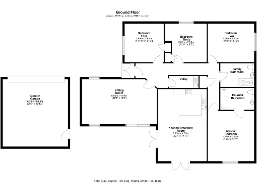
Large single-level living across approximately 2,130 sq ft
Newly renovated interior; modern kitchen/breakfast room
Very large, south-facing plot with patio and vegetable garden
Detached double garage with power and lighting; extensive parking
Listed as 1 bathroom in data; description suggests en-suite plus shower — confirm
Walking distance to town centre, shops and primary schools
Area classified as communal retirement / ageing urban communities
Average crime and connectivity; affluent neighbourhood
An extended, newly renovated four-bedroom bungalow on a very large, south-facing plot close to Highworth town centre. The property offers generous single-level living with a refitted kitchen/breakfast room, large reception space and usable outdoor areas including vegetable beds and a patio — well suited to families who value outdoor space and easy ground-floor accessibility.
Externally the home benefits from a sizable block-paved driveway with parking for at least four vehicles and a detached double garage with power and light. The tucked-away location still sits within walking distance of shops, cafes and several good primary schools, while secondary schooling in the area has mixed Ofsted outcomes.
Practical points to note: data lists the property as having one bathroom, but the full description references an en-suite and a family shower room — the exact bathroom count should be confirmed. Crime and connectivity are average for the area. The bungalow’s recent renovation reduces immediate work but buyers should verify service details and any ongoing maintenance for the large grounds and outbuildings.
3 bedroom detached bungalow for sale in Lechlade Road, Highworth, SN6 7HQ, SN6 — £475,000 • 3 bed • 2 bath • 1061 ft²
2 bedroom semi-detached bungalow for sale in Folly Drive, Highworth, Swindon, SN6 — £400,000 • 2 bed • 1 bath • 850 ft²
4 bedroom detached house for sale in Brookfield, Highworth, SN6 7HY, SN6 — £589,995 • 4 bed • 2 bath • 1768 ft²
3 bedroom detached bungalow for sale in Stonefield Close, Shrivenham, Swindon, SN6 — £650,000 • 3 bed • 2 bath • 1522 ft²
4 bedroom bungalow for sale in Thames Avenue, Greenmeadow, Swindon, SN25 — £450,000 • 4 bed • 3 bath • 2000 ft²
3 bedroom detached bungalow for sale in Wessington Park, Quemerford, Calne, SN11 — £400,000 • 3 bed • 1 bath • 964 ft²










































































