### Standout Features:
- Prime Knightsbridge location with dual-aspect views.
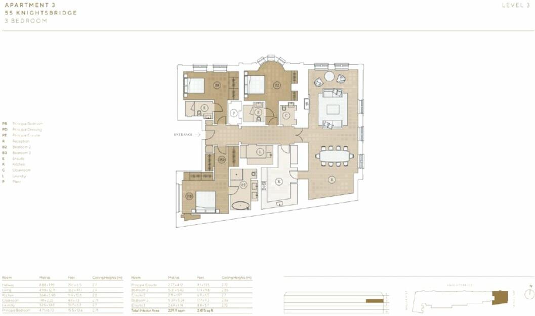
- Spacious, meticulously designed 3-bedroom apartment covering 2,475 sq ft.
- Contemporary interiors that respect the building’s Grade II listed Edwardian heritage.
- High ceilings, large windows, and luxury finishes throughout.
- 24-hour concierge and security with access to a residents' lounge and outdoor terrace.
- Potential renovation opportunities and customization.
- Separate storage available for negotiation.
  
### Notable Concerns:
- Service charge of £37,125 is significantly high.
- Crime in the area is rated very high, which may concern some buyers.
- Council tax is classified as very expensive.
  
Discover the epitome of luxury living in this stunning 3-bedroom apartment at Knightsbridge Gate. Boasting impressive ceiling heights and a dual-aspect open-plan living area, this home is illuminated by natural light and adorned with modern furnishings that blend seamlessly with the property’s historic roots. Built in 1902 and recently renovated, the Grade II listed building retains its Edwardian charm while offering contemporary comfort.
Positioned centrally in one of the world’s most prestigious neighborhoods, you’ll have Hyde Park and high-end retail at your doorstep. Enjoy exclusive amenities like a 24-hour concierge, residents' lounge, and the outdoor terrace, perfect for entertaining or relaxing. Wells suited for families and professionals alike, the apartment does come with a hefty service charge and has listed status, which could complicate future renovations—but the spacious layout and future potential are enticing for any savvy investor or homeowner.
Don’t miss out on this unique opportunity to invest in Knightsbridge, where elegance meets modern living in one of London’s most affluent areas. Secure your chance to own a piece of luxury in a vibrant community while enjoying remarkable views and proximity to exceptional schools and amenities.
 3 bedroom apartment for sale in Knightsbridge Gate, Apartment 2, 55 Knightsbridge, London, SW1X — £9,850,000 • 3 bed • 3 bath • 2442 ft²
 3 bedroom apartment for sale in Knightsbridge Gate, Apartment 2, 55 Knightsbridge, London, SW1X — £9,850,000 • 3 bed • 3 bath • 2442 ft² 4 bedroom penthouse for sale in Knightsbridge Gate, Apartment 1, 1 William Street, London, SW1X — £14,950,000 • 4 bed • 4 bath • 3618 ft²
 4 bedroom penthouse for sale in Knightsbridge Gate, Apartment 1, 1 William Street, London, SW1X — £14,950,000 • 4 bed • 4 bath • 3618 ft² 3 bedroom flat for sale in Knightsbridge, Knightsbridge Gate, London, SW1X, United Kingdom, SW1X — £9,850,000 • 3 bed • 3 bath • 2442 ft²
 3 bedroom flat for sale in Knightsbridge, Knightsbridge Gate, London, SW1X, United Kingdom, SW1X — £9,850,000 • 3 bed • 3 bath • 2442 ft² 3 bedroom flat for sale in Knightsbridge, Knightsbridge Gate, London, SW1X, United Kingdom, SW1X — £9,950,000 • 3 bed • 3 bath • 2475 ft²
 3 bedroom flat for sale in Knightsbridge, Knightsbridge Gate, London, SW1X, United Kingdom, SW1X — £9,950,000 • 3 bed • 3 bath • 2475 ft² 4 bedroom penthouse for sale in Knightsbridge Gate, Apartment 6, 1 William Street, London, SW1X — £17,250,000 • 4 bed • 4 bath • 4009 ft²
 4 bedroom penthouse for sale in Knightsbridge Gate, Apartment 6, 1 William Street, London, SW1X — £17,250,000 • 4 bed • 4 bath • 4009 ft² 3 bedroom apartment for sale in 55 Knightsbridge Gate, Knightsbridge, London, SW1X 7BF., SW1X — £9,950,000 • 3 bed • 3 bath • 2475 ft²
 3 bedroom apartment for sale in 55 Knightsbridge Gate, Knightsbridge, London, SW1X 7BF., SW1X — £9,950,000 • 3 bed • 3 bath • 2475 ft²


























































