Long lease ground-floor flat with parking and private patio, ideal for retirement buyers.
Ground-floor two-bedroom apartment, popular Breme Park development
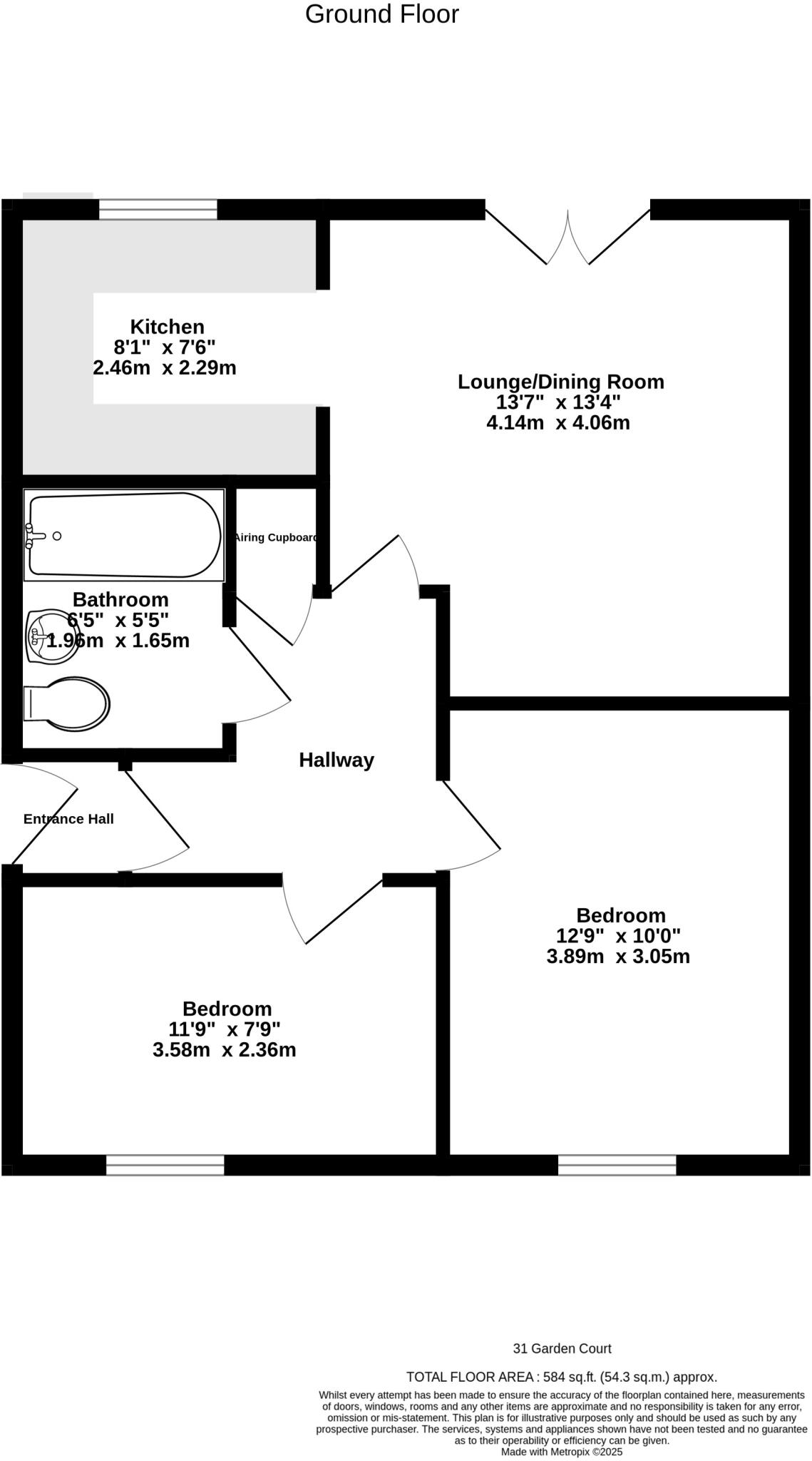
A well-presented two-bedroom ground-floor apartment in the sought-after Breme Park development, suited to retirement buyers or downsizers seeking a low-maintenance home close to transport. The layout includes a lounge/dining room with French doors onto a small private patio, a modern kitchen with built-in oven and hob, two double bedrooms and a recently re-fitted bathroom with shower. The property sits in a modern brick development constructed in the early 2000s and benefits from double glazing and an EPC rating of C.
Practical running costs are straightforward: a long lease of 106 years remains, service charges run at about £90 per month (circa £1,080 annually) and council tax is described as affordable. An allocated off-street parking space and visitor parking add convenience, and Bromsgrove train station and local amenities are within easy reach.
Buyers should note the apartment is heated by electric room heaters rather than gas central heating, which may affect ongoing energy costs. The overall internal size is modest (about 584 sq ft), so it will best suit those looking to downsize or seeking a manageable retirement property rather than a large-family home. The small patio is described as rarely used by others but is not formally owned by the flat.
Overall, this ground-floor flat offers a low-hassle purchase with a long lease and convenient location. It represents sensible value for a retirement buyer or first-time purchaser who prioritises location, parking and a ready-to-live-in home, while accepting modest internal space and electric heating.
2 bedroom flat for sale in Flat 15, Garden Court, Design Close, Bromsgrove. B60 3GS, B60 — £165,000 • 2 bed • 1 bath • 579 ft²
2 bedroom flat for sale in Flat 3, Garden Court, Design Close, Bromsgrove. B60 3GS, B60 — £170,000 • 2 bed • 1 bath • 584 ft²
2 bedroom flat for sale in Garrington Road, Bromsgrove. B60 3GF, B60 — £160,000 • 2 bed • 1 bath • 568 ft²
2 bedroom apartment for sale in Design Close, Bromsgrove, Worcestershire, B60 — £85,000 • 2 bed • 1 bath • 570 ft²
2 bedroom flat for sale in Flat 17, Craft Court, Railway Walk, Bromsgrove B60 3GW, B60 — £170,000 • 2 bed • 2 bath • 662 ft²
2 bedroom apartment for sale in Recreation Road, Bromsgrove, Worcestershire, B61 — £260,000 • 2 bed • 1 bath • 742 ft²


























































