PE24 5HY - Land for sale in Plot 3, Marsh Road, Orby, Skegness, PE24

View on Property Piper

Land for sale in Plot 3, Marsh Road, Orby, Skegness, PE24

Summary - Plot 3, Marsh Road, Orby, Skegness PE24 5HY

1 bed 1 bath Land

**Standout Features:**
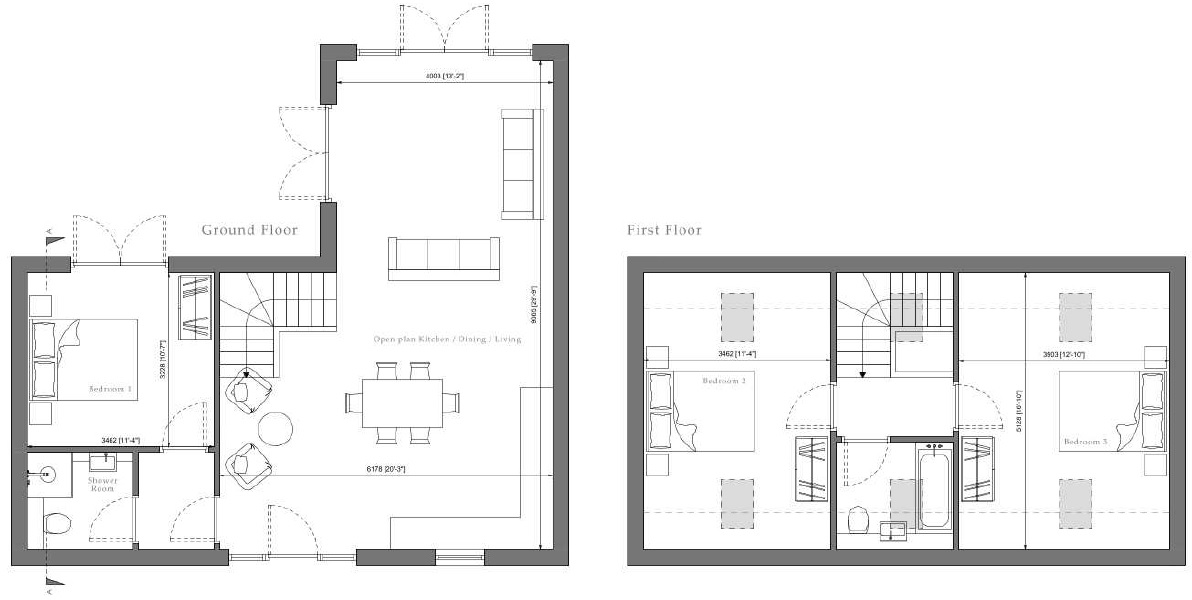
- Full planning permission for a two-storey barn-style 3-bedroom cottage (N/134/00116/22).
- Spacious plot approximately 33m deep by 14m wide, situated on level ground.
- Open views to the rear across neighboring paddocks.
- Ideal semi-rural location, just 5 miles from popular coastal resorts Skegness and Ingoldmells.
- Half-acre paddock (subject to separate negotiation) available at the rear.
- Potential for modern, open plan living with large windows and ample entrance space.

**Summary:**
Discover a remarkable opportunity to create your bespoke home in the charming village of Orby, Skegness. This generous building plot comes with full planning permission for a stunning barn-style cottage featuring three double bedrooms, an open-plan kitchen, and a seamless connection to the lush rear garden. With picturesque views across neighboring land, this development promises a serene lifestyle while being a short drive from the vibrant coastal resorts.

Families and first-time buyers will appreciate the home's modern design and spaciousness, while investors will find strong potential in the thriving vacation market nearby. The property is chain-free, offers parking, and is ready for you to break ground and make your mark. Don't miss out on this unique chance to create your rural retreat, as similar opportunities in this idyllic location are rare and are sure to generate interest!

Property Details

Image Descriptions

Floorplan Description

Rooms

Textual Property Features

Detected Visual Features

Nearby Schools

Nearest Bars And Restaurants

,,,,}

Nearest General Shops

,,}

Nearest Grocery shops

,,}

Nearest Supermarkets

,,}

Nearest Religious buildings

,,}

Nearest Medical buildings

,,,}

Nearest Leisure Facilities

,,,,}

Nearest Tourist attractions

,,}

Nearest Train stations

,,,,}

Nearest Bus stations and stops

,,,,}

Nearest Hotels

,,}

Tags

Local Market Stats

Similar Properties

Meta

High Res Images

Compatible Images

Low res Images

Thumbnails

Raw Images

High Res Floorplan Images

Compatible Floorplan Images

Low res Floorplan Images

FloorplanImages Thumbnail

Raw Floorplan Images