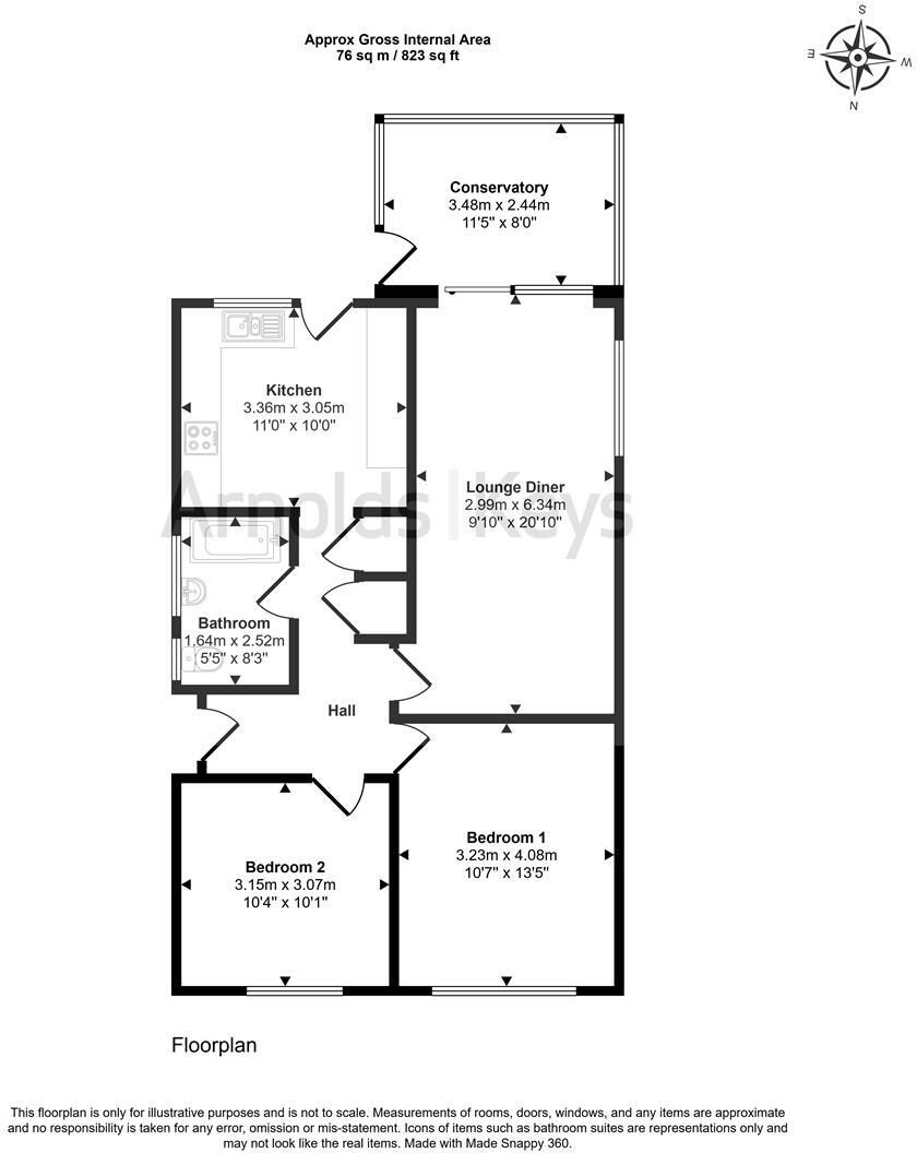
Single-level home with sunny conservatory and garage for practical, low-maintenance living.
- Detached single-storey bungalow in quiet cul-de-sac
- South-facing conservatory overlooking enclosed rear garden
- Garage plus off-road driveway parking
- Requires updating throughout; reflected in guide price
- Warm-air gas heating system; service/ replacement possible
- Double glazing present, installation dates unknown
- Freehold with Council Tax Band C; low local crime
- Approx 823 sq ft; sensible layout for downsizers
This detached single-story bungalow sits at the end of a quiet cul-de-sac in Beeston Regis, offering a straightforward layout and genuine scope for improvement. The living space includes a lounge/dining room and a south-facing conservatory that brings extra light to the rear garden — a useful feature for year-round use. A single-storey plan and attached garage make this home particularly suitable for downsizers or buyers seeking an easy-living property without stairs.
The plot is a practical size with a lawned front and an enclosed rear garden with paved patio; off-road parking and a roller-door garage add convenience. The property is gas centrally heated via a warm-air system and benefits from double glazing, though installation dates are unknown. Constructed in the late 1960s–1970s, many original elements remain, so updating is required and is reflected in the guide price, offering good value for a buyer prepared to modernise.
Material positives include freehold tenure, low local crime, fast broadband and excellent mobile signal, plus easy access to Sheringham town centre and public transport. Notable negatives are the need for refurbishment throughout, potential servicing or replacement of the warm-air heating, and unknown ages of glazing and some fittings — professional surveys are recommended. Overall, this bungalow offers sensible space, a sunny conservatory, and clear potential for a comfortable, refreshed home.
2 bedroom detached bungalow for sale in Priory Close, Beeston Regis, Sheringham, NR26 — £295,000 • 2 bed • 1 bath • 804 ft²
3 bedroom detached bungalow for sale in Chestnut Grove, Sheringham, NR26 — £350,000 • 3 bed • 1 bath • 1300 ft²
2 bedroom semi-detached bungalow for sale in Beeston Regis, Sheringham , NR26 — £250,000 • 2 bed • 1 bath • 552 ft²
3 bedroom detached bungalow for sale in Woodland Rise West, Sheringham, NR26 — £450,000 • 3 bed • 1 bath • 1716 ft²
3 bedroom detached bungalow for sale in Lime Grove, Sheringham, NR26 — £400,000 • 3 bed • 2 bath • 1258 ft²
2 bedroom detached bungalow for sale in Sheringham, NR26 — £385,000 • 2 bed • 1 bath • 779 ft²










































































