High-spec two-bedroom apartment with garden, parking and EV charger.
Extremely large 1,905 sq ft ground-floor apartment with private garden
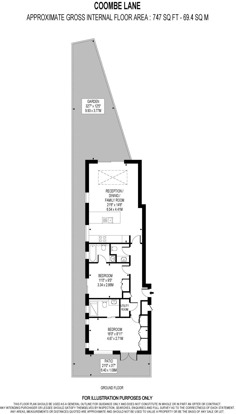
This exceptionally large ground-floor apartment (approx. 1,905 sq ft) sits within a small, high-spec development in West Wimbledon and offers two double bedrooms, two bathrooms (one en suite) and a private garden — rare for a flat of this size. The interior specification is modern and energy-conscious: bespoke kitchen with Bosch appliances, aluminium triple-glazed windows, underfloor heating, air cooling and air source heat pump. A dedicated parking space with an EV charging point adds practical convenience.
The layout and finish suit buyers who want a low-maintenance, technology-forward home: smart-home wiring, fast broadband and excellent mobile signal are all in place. The apartment is sold as a share of freehold with an exceptionally long lease (998 years), giving long-term security. Local amenities, good schools and Raynes Park commuter links are all within easy reach, making the location family-friendly and well connected.
Buyers should note a few factual points before viewing. Property data records mains gas boiler and radiators as the main heating fuel alongside the air source heat pump — both systems are present according to the specification. The building is described as a brand-new development, while historic construction data also appears in records; prospective purchasers should satisfy themselves on construction and warranties. The external walls are noted as solid brick with assumed no insulation, which may present future retrofit scope.
Overall this is a spacious, well-equipped apartment that combines modern energy features and a private garden with long leasehold security. It will particularly suit buyers seeking generous living space close to good schools and transport, or investors targeting high-spec rental stock — just confirm mechanical systems and insulation details as part of due diligence.
3 bedroom apartment for sale in Coombe Lane, West Wimbledon, Show Home Available To View, SW20 — £750,000 • 3 bed • 2 bath • 1602 ft²
1 bedroom apartment for sale in Coombe Lane, West Wimbledon, SW20 — £445,000 • 1 bed • 1 bath • 1294 ft²
2 bedroom apartment for sale in Worple Road, Wimbledon, SW20 — £699,950 • 2 bed • 2 bath • 816 ft²
2 bedroom apartment for sale in Wellsborough Mews, Bushey Road, Wimbledon, SW20 — £600,000 • 2 bed • 2 bath • 778 ft²
2 bedroom end of terrace house for sale in Caxton Road, SW19 — £825,000 • 2 bed • 2 bath • 915 ft²
2 bedroom apartment for sale in Cambridge Road, West Wimbledon, SW20 — £650,000 • 2 bed • 1 bath • 849 ft²










































































































































































































