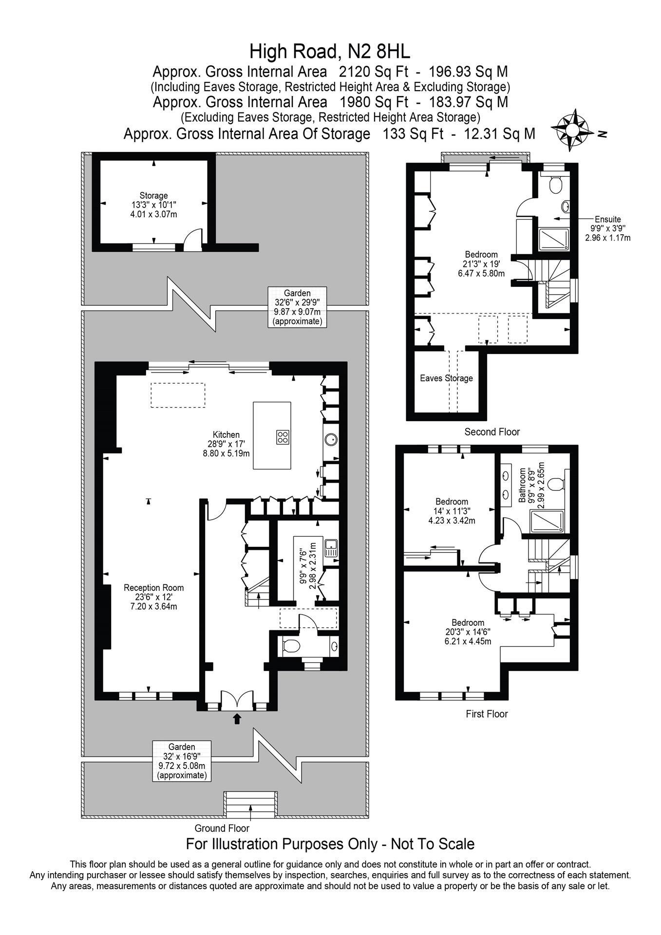
Gated modern house with open-plan living, garden and outhouse gym near top schools.
- Large open-plan kitchen/diner/reception room
- West-facing garden and paved driveway with gated parking
- Loft conversion and fitted outhouse gym/home office
- Reconfigured from four bedrooms to three plus walk-in wardrobe
- Newly renovated throughout with modern finishes
- Slow broadband speeds despite excellent mobile signal
- Solid-brick walls assumed uninsulated; insulation may be needed
- Council tax above average; area classed as deprived
This newly renovated semi-detached house on East Finchley’s High Road offers generous, flexible family living across multiple floors. The heart of the home is a large open-plan kitchen/diner/reception room that flows to a west-facing garden, while a loft conversion and a fitted outhouse gym provide versatile space for work, fitness or play.
The principal bedroom benefits from a bespoke walk-in wardrobe and dressing area, created by reconfiguring the original four bedrooms into three. Practical additions include a downstairs utility room, separate WC, two bathrooms and gated off-street parking — useful in a busy urban location.
Buyers should note some practical considerations: broadband speeds are reported slow despite excellent mobile signal, council tax is above average, and the solid-brick walls are assumed to lack modern insulation. Double glazing is present but install dates are unknown. The property is in a broadly deprived area classification and local services and schools are mixed in performance, though several highly rated schools lie within easy reach.
Overall, this is a turnkey, modernised family home in a commuter-friendly area with strong transport links and useful outbuilding space. It will suit buyers seeking immediate move-in condition and extra home-working or leisure space, but those requiring high-speed internet or seeking low running costs should investigate services and insulation further.
4 bedroom terraced house for sale in Cardrew Avenue, London, N12 — £980,000 • 4 bed • 3 bath • 1529 ft²
4 bedroom house for sale in Ingram Road, London, N2 — £1,500,000 • 4 bed • 3 bath • 2038 ft²
4 bedroom semi-detached house for sale in Addington Drive, London, N12 — £950,000 • 4 bed • 1 bath • 1819 ft²
5 bedroom semi-detached house for sale in Courthouse Road, London, N12 — £1,250,000 • 5 bed • 2 bath • 1713 ft²
4 bedroom semi-detached house for sale in Ravensdale Avenue, London, N12 — £1,150,000 • 4 bed • 2 bath • 1813 ft²
4 bedroom end of terrace house for sale in Hill Rise, Hampstead Garden Suburb, NW11 — £1,695,000 • 4 bed • 2 bath • 1803 ft²














































































