Central Margate home with sunny courtyard and scope to improve.
Victorian mid-terrace with period bay and parquet hallway
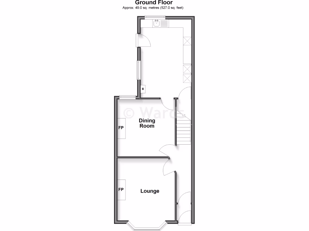
A three-bedroom Victorian mid-terrace offering straightforward space in the heart of Margate. The house retains period character such as a parquet hallway and bay front, and the rooms are well-proportioned across an average-sized 833 sq ft layout. A sunny courtyard garden with rear access provides private outdoor space and practical storage in the outbuilding.
This is presented for buyers willing to update: the property needs renovation and modernisation throughout, including the single bathroom and kitchen. Heating is electric via a boiler and radiators, and any buyer should budget for upgrading services and cosmetic works to maximise comfort and value.
The home is freehold and centrally located close to Margate attractions, shops and good local schools, making it well suited to families or first-time buyers who want a period house to personalise. Broadband speeds and mobile signal are strong, and there is no flood risk. Be aware the area records higher crime and significant local deprivation, which may affect resale and should be considered alongside the purchase price.
Overall this is a value-focused purchase with clear potential: a sensible renovation package will reveal a comfortable family home in a convenient town-centre position.
3 bedroom end of terrace house for sale in Grotto Road, Cliftonville, Margate, Kent, CT9 — £375,000 • 3 bed • 1 bath • 701 ft²
3 bedroom end of terrace house for sale in Danesmead Terrace, Margate, Kent, CT9 — £300,000 • 3 bed • 1 bath • 980 ft²
3 bedroom terraced house for sale in Dane Road, Margate, Kent, CT9 — £400,000 • 3 bed • 1 bath • 745 ft²
3 bedroom end of terrace house for sale in Dane Hill Grove, Margate, Kent, CT9 — £260,000 • 3 bed • 1 bath • 1022 ft²
3 bedroom terraced house for sale in Hastings Avenue, Margate, Kent, CT9 — £280,000 • 3 bed • 1 bath • 504 ft²
4 bedroom terraced house for sale in Byron Avenue, Margate, CT9 1TU, CT9 — £265,000 • 4 bed • 1 bath • 2012 ft²


























































