Refurbished two-bed park home on a generous corner plot with parkland views..
Freehold Omar Ashdale park home 36' x 20'
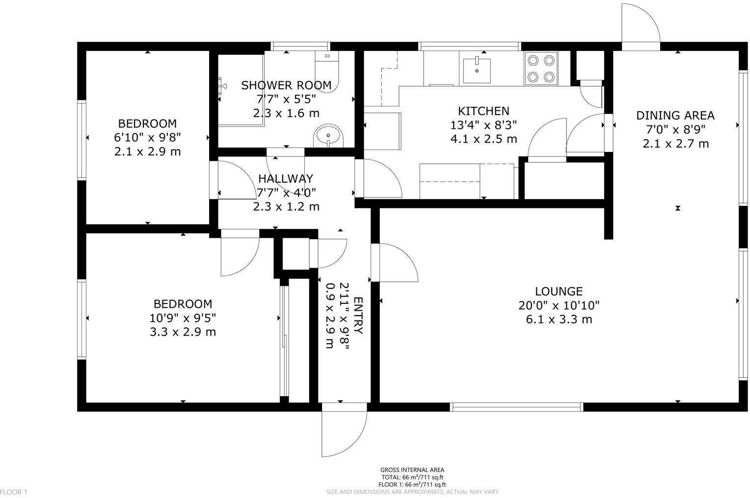
A neatly refurbished two-bedroom Omar Ashdale park home (36' x 20') arranged on a generous corner plot within Deanland Wood Park. The single-storey layout includes a spacious lounge-diner with views over adjacent parkland, a fitted kitchen, two well-proportioned bedrooms and a walk-in shower room. Interiors are recently updated and presented in good decorative order, offering easy, low-maintenance living.
Deanland Wood Park is well serviced with onsite facilities including a shop, restaurant, pub, social club and a resident park manager. The home is Freehold and benefits from a peaceful rural setting near the South Downs, with straightforward road links to Hailsham, Lewes and Eastbourne and rail connections for wider travel.
Notable practical points: the property footprint is modest (typical for park homes) and ceiling heights are lower than standard bungalows. Ongoing park costs include a pitch fee of £192.34 pcm (includes fresh and waste water) and an annual service charge of approximately £2,308.08. Broadband speeds are slow locally and mobile signal is average, which may affect remote working or heavy internet users.
This home will suit downsizers or retirees seeking comfortable, single-level living in a friendly, well-equipped park community. It also presents straightforward move-in readiness and low garden maintenance, while buyers seeking large private gardens or high-speed broadband should note the limitations.
2 bedroom park home for sale in Deanland Wood Park, Golden Cross, Hailsham, BN27 — £185,000 • 2 bed • 1 bath • 720 ft²
2 bedroom park home for sale in Beech Avenue, Deanland Wood Park, Golden Cross, Hailsham, BN27 — £179,950 • 2 bed • 2 bath • 728 ft²
2 bedroom park home for sale in Primrose Acre, Deanland Wood Park, BN27 — £120,000 • 2 bed • 1 bath • 590 ft²
2 bedroom park home for sale in The Meadows, Deanland Wood Park, BN27 — £225,000 • 2 bed • 2 bath • 840 ft²
1 bedroom park home for sale in Primrose Acre, Deanland Wood Park, Golden Cross, BN27 — £115,000 • 1 bed • 1 bath • 396 ft²
2 bedroom park home for sale in Deanland Wood Park, Golden Cross, Hailsham, BN27 — £200,000 • 2 bed • 2 bath • 900 ft²


































































