Four double bedrooms, garage and private landscaped garden near schools and harbour.
- Four double bedrooms including ensuite principal room
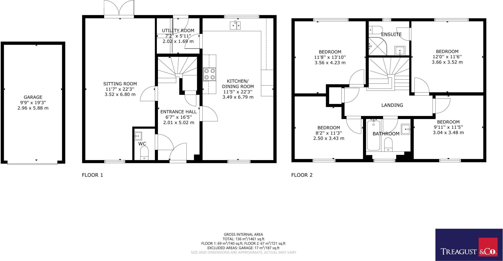
- 1,461 sq ft of tidy, well-maintained living space
- Open-plan kitchen/dining with built-in appliances
- Generous sitting room with French doors to garden
- Landscaped, private rear garden with patio and shed
- Garage plus driveway parking for up to three cars
- Remainder of 10-year NHBC warranty in place
- Council tax band above average for area
This immaculately presented four-bedroom detached house offers 1,461 sq ft of well-considered family living across two floors. The ground floor features a dual-aspect sitting room with French doors to the patio and a large open-plan kitchen/dining space with built-in appliances and adjoining utility room — ideal for everyday family life and entertaining. The property benefits from the remainder of a 10-year NHBC warranty and has been tastefully maintained by the current owners.
Upstairs provides four double bedrooms, including a principal bedroom with an ensuite, plus a family bathroom. The sitting room was created by combining two builder-specified rooms during construction, giving a generous reception space. The landscaped rear garden is private and low-maintenance with patio, lawn and planted borders; the garage and drive provide parking for up to three cars and useful storage.
Positioned in a popular development close to schools, public transport and the Prinsted foreshore, the house suits families seeking convenience and outdoor access. Practical details to note: council tax is above average for the area, and the property is an average-sized detached home rather than a large estate. A 3D virtual tour is available for remote viewing.
3 bedroom semi-detached house for sale in Priors Orchard, Southbourne, PO10 — £500,000 • 3 bed • 2 bath • 1009 ft²
4 bedroom detached house for sale in Oak Tree Close, Rowland's Castle, PO9 — £565,000 • 4 bed • 2 bath • 980 ft²
4 bedroom detached house for sale in Kingfisher Drive, Westbourne, PO10 — £565,000 • 4 bed • 2 bath • 1535 ft²
4 bedroom detached house for sale in Normandy Way, PO9 — £550,000 • 4 bed • 2 bath • 1195 ft²
4 bedroom detached house for sale in The Boulevard, Bognor Regis, West Sussex, PO21 — £500,000 • 4 bed • 2 bath • 1561 ft²
4 bedroom detached house for sale in Breach Avenue, Southbourne , PO10 — £695,000 • 4 bed • 2 bath • 2204 ft²


























































































































































