**Standout Features:**
- Detached bungalow with two/three bedrooms
- Generous plot and elevated position
- Off-road parking and garage
- Clean, well-maintained, yet in need of cosmetic refurbishment
- No onward chain
- Quiet cul-de-sac location
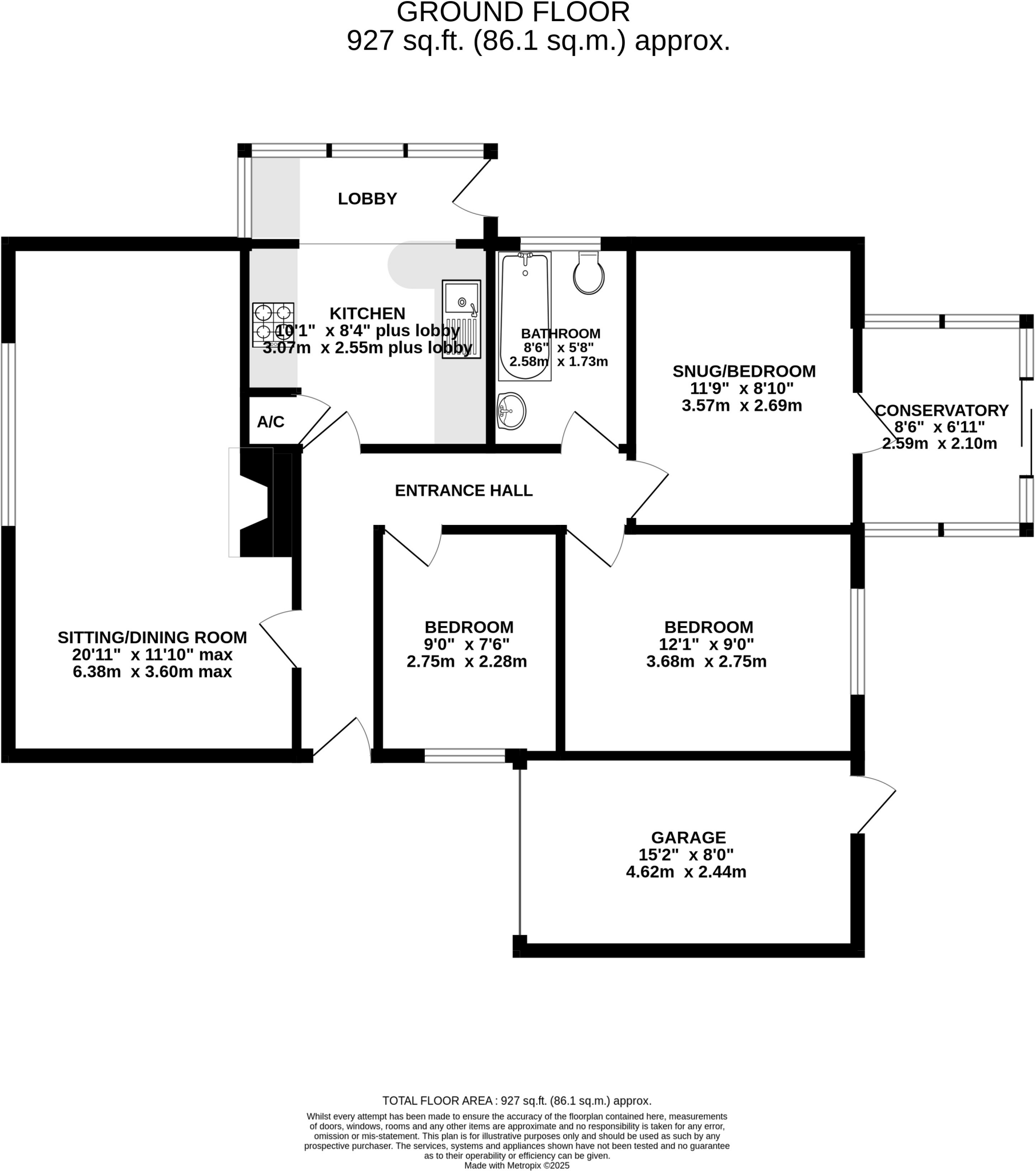
This charming detached bungalow, nestled at the end of a quiet cul-de-sac, is a diamond in the rough awaiting your personal touch. Set on a generous plot with impressive elevated views, this property features a spacious sitting/dining room and a cozy snug that can double as a third bedroom. The kitchen extends into a lobby area with direct access to the garden, perfect for alfresco dining or morning coffee in the conservatory. While the bungalow is in need of cosmetic refurbishment, it is well-maintained and offers a clean space to move in and make renovations at your convenience.
Ideal for families or first-time buyers, the property boasts a large garden framed by established shrubs, alongside a driveway that accommodates off-road parking and a single garage. Enjoy all the conveniences of nearby amenities—including shops and schools—while being part of an affluent, low-crime area. Whether you're looking to invest in a renovation project or create a comfortable family home, this unique opportunity is chain-free and ready for a new owner. Don’t miss out on making this bungalow your haven—schedule a viewing today!
3 bedroom detached bungalow for sale in Mayfair Road, Bungay, NR35 — £325,000 • 3 bed • 1 bath • 943 ft²
2 bedroom detached bungalow for sale in 1a Mayfair Road, Bungay, NR35 — £319,000 • 2 bed • 2 bath • 1296 ft²
3 bedroom detached bungalow for sale in Farm Close NR35 — £300,000 • 3 bed • 1 bath • 1137 ft²
2 bedroom detached bungalow for sale in Mayfair Road, Bungay, NR35 — £295,000 • 2 bed • 1 bath • 1234 ft²
3 bedroom bungalow for sale in Nicholson Drive, Beccles, NR34 — £240,000 • 3 bed • 1 bath • 995 ft²
2 bedroom detached bungalow for sale in Elizabeth Bonhote Close, Bungay, NR35 — £285,000 • 2 bed • 2 bath • 940 ft²


























































