RH11 0PG - 2 bed extended two bedroom house in Lancelot Close, RH11 0PG

View on Property Piper

2 bedroom terraced house for sale in Lancelot Close, Ifield, Crawley, West Sussex, RH11

Summary - 14 LANCELOT CLOSE IFIELD CRAWLEY RH11 0PG

2 bed 1 bath Terraced

Well-presented starter home near Ifield station and local schools.
- Re-fitted kitchen with island and wood flooring
- Extended dining room with underfloor heating and patio doors
- Allocated off-street parking space included
- Low-maintenance rear garden, small plot
- Freehold tenure and affordable council tax band
- Compact overall size (594 sq ft) and one bathroom
- Double glazing installed post-2002; mains gas heating
- Buyers should verify planning/building regulation consents for extension
This extended two-bedroom terraced home in Ifield offers a tidy, modern living space ideal for a first-time buyer or couple. The re-fitted kitchen with island sits at the heart of the house and flows into a rear extension currently arranged as a dining room, with underfloor heating and patio doors onto a low-maintenance garden.

Practical features include an allocated off-street parking space, double glazing, mains gas central heating and a freehold tenure. Local amenities, good primary and secondary schools, countryside nearby and easy access to Ifield station make day-to-day life straightforward.

The property is modest in overall size (approximately 594 sq ft) and has a single family bathroom, so buyers needing more space should note the compact footprint. The extension was added during the current ownership; interested buyers must verify planning and building regulation consents and check fixtures and fittings as required. Overall, this well-presented home offers a move-in-ready option with sensible running costs and commuter convenience.

Property Details

Image Descriptions

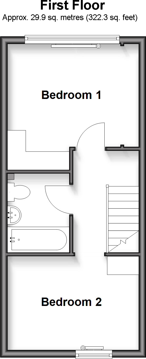
Floorplan Description

Rooms

Textual Property Features

Target Audience

AI Tags

Detected Visual Features

EPC Details

Nearby Schools

Nearest Bars And Restaurants

,,,,}

Nearest General Shops

,,}

Nearest Grocery shops

,,}

Nearest Supermarkets

,,}

Nearest Religious buildings

,,}

Nearest Medical buildings

,,,}

Nearest Airports

}

Nearest Leisure Facilities

,,,,}

Nearest Tourist attractions

,,}

Nearest Train stations

,,,,}

Nearest Bus stations and stops

,,,,}

Nearest Hotels

,,}

Tags

Local Market Stats

Similar Properties

Meta

High Res Images

Compatible Images

Low res Images

Thumbnails

Raw Images

High Res Floorplan Images

Compatible Floorplan Images

Low res Floorplan Images

FloorplanImages Thumbnail

Raw Floorplan Images