M1 1BA - 1 bed northern quarter loft in Dale Street, M1 1BA

View on Property Piper

1 bedroom apartment for sale in Dale Street, Northern Quarter, Manchester, M1

Summary - Flat 19, 3 Dale Street M1 1BA

1 bed 1 bath Apartment

Third-floor warehouse conversion, chain-free and freshly renovated with strong rental potential.
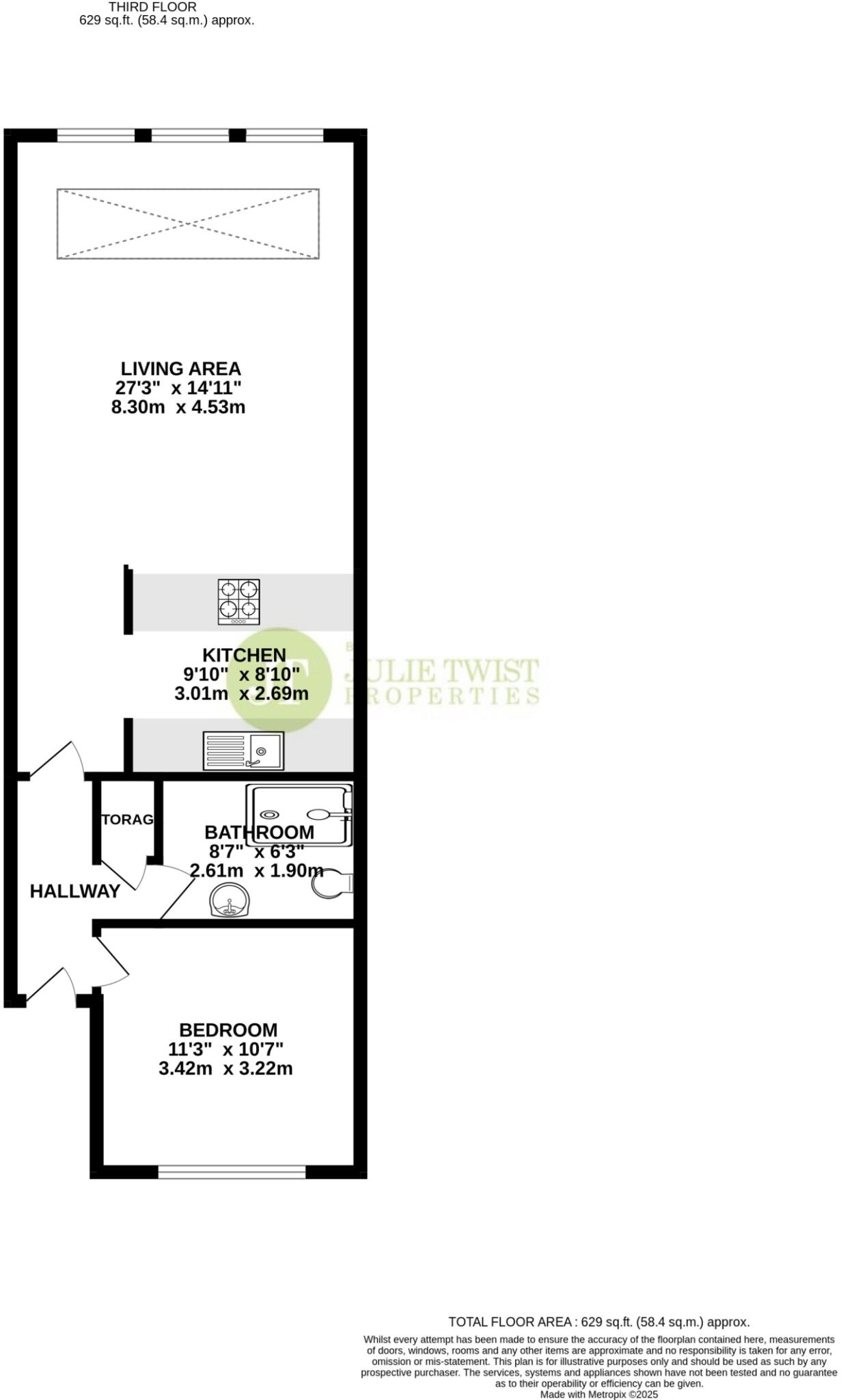
Third-floor loft in warehouse conversion with strong natural light
Newly renovated one-bedroom with brand-new three-piece bathroom
Open-plan kitchen/living with integrated appliances and skylights
Chain-free sale with approximately 126 years remaining on lease
Service charge c. £2,008pa; ground rent £150pa
Electric room heaters only — potentially higher running costs
Central Northern Quarter location — lively, potentially noisy at night
Good rental yield potential; suited to investors or city living buyers
This third-floor loft-style apartment sits within a converted warehouse in the heart of the Northern Quarter, offering authentic character with contemporary finishes. The open-plan living area and kitchen benefit from large windows, Velux skylights and double-height aspects that deliver substantial natural light. The apartment has been newly renovated and includes a brand-new three-piece bathroom and integrated kitchen appliances.

Practical details make this a straightforward purchase: the property is chain-free, comes with a long lease (approximately 126 years remaining), and annual outgoings include a service charge of about £2,008 and ground rent of £150. Heating is electric via room heaters, which keeps installation simple but may mean higher running costs compared with gas. Broadband and mobile signals are strong.

Positioned in a lively, cosmopolitan student and creative neighbourhood, the flat suits buyers seeking city-centre living or rental investors targeting strong demand from students and young professionals. Expect easy access to public transport, independent shops, cafés, bars and cultural venues on the doorstep. However, the area’s busy, nightlife-driven character and identified local deprivation may mean higher noise levels and a less residential atmosphere than suburban locations.

Overall this is a bright, characterful one-bedroom apartment with renovation already completed and clear rental potential, offset by service charges, electric heating running costs and an urban, lively neighbourhood character.

Property Details

Image Descriptions

Floorplan Description

Rooms

Textual Property Features

Target Audience

AI Tags

Detected Visual Features

EPC Details

Nearby Schools

Nearest Bars And Restaurants

,,,,}

Nearest General Shops

,,}

Nearest Grocery shops

,,}

Nearest Supermarkets

,,}

Nearest Religious buildings

,,}

Nearest Medical buildings

,,,}

Nearest Airports

}

Nearest Leisure Facilities

,,,,}

Nearest Tourist attractions

,,}

Nearest Train stations

,,,,}

Nearest Bus stations and stops

,,,,}

Nearest Hotels

,,}

Tags

Local Market Stats

AirBnB Data

Similar Properties

Meta

High Res Images

Compatible Images

Low res Images

Thumbnails

Raw Images

High Res Floorplan Images

Compatible Floorplan Images

Low res Floorplan Images

FloorplanImages Thumbnail

Raw Floorplan Images