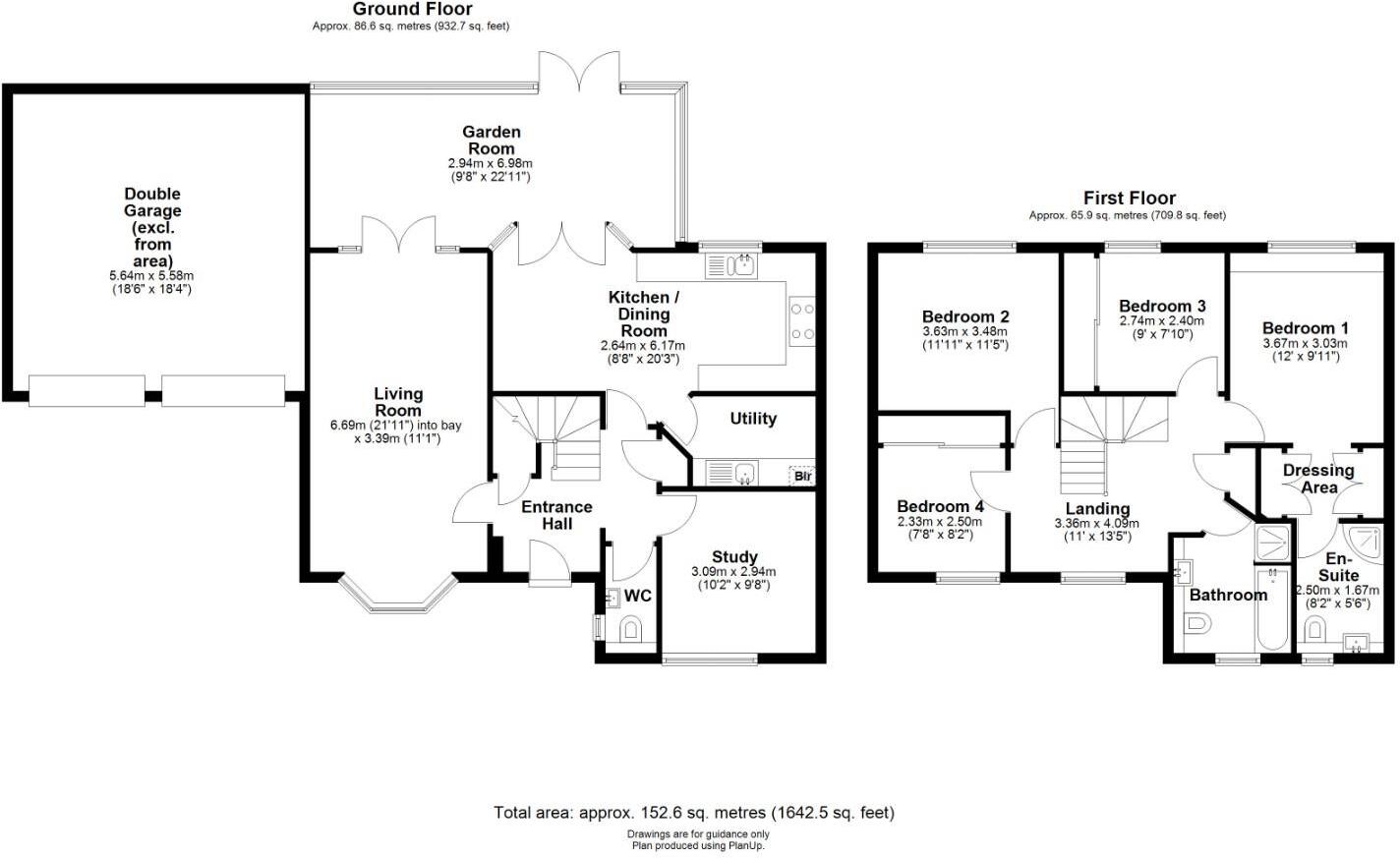
**Standout Features:**
- Spacious four-bedroom, two-bathroom detached home
- Three generous reception rooms, including a conservatory
- Contemporary kitchen with integrated appliances
- Immaculate landscaped garden with multiple patio areas
- Double garage and ample private driveway parking
- Located in a desirable village close to Cambridge
**Concerns:**
- Council tax band F indicates higher expenses
- No exceptional views from the property
This beautifully presented four-bedroom detached family home, constructed in 1998, offers 1,642 sqft of well-distributed living space across two levels, making it perfect for growing families. Enjoy the luxury of three spacious reception areas, including a cozy lounge with a bay window, a study, and a bright conservatory with ample glazing that invites natural light. The modern kitchen, equipped with integrated appliances, flows seamlessly into a dining area ideal for family gatherings.
Set across a generous 0.11-acre plot, this home boasts a meticulously landscaped rear garden complete with multiple seating areas—perfect for entertaining or relaxing in privacy. The double garage and expansive driveway further enhance convenience. Located in the thriving village of Cottenham, you are just six miles from Cambridge, with easy access to local amenities, schools, and excellent transport links.
This property is a turnkey opportunity, but it comes with a council tax band F, signaling higher expenses, which should be considered. Given its attractive features in a sought-after area, act fast—properties with this blend of space, quality, and location seldom stay on the market for long!
4 bedroom link detached house for sale in Lee Close, Cottenham, Cambridge, CB24 — £500,000 • 4 bed • 2 bath • 1034 ft²
5 bedroom detached house for sale in Cundell Drive, Cottenham, CB24 — £650,000 • 5 bed • 2 bath • 2111 ft²
4 bedroom detached house for sale in Lambs Lane, Cottenham, CB24 — £535,000 • 4 bed • 2 bath • 1474 ft²
4 bedroom detached house for sale in Curringtons Close, Cottenham, Cambridge, CB24 — £675,000 • 4 bed • 2 bath • 1679 ft²
5 bedroom detached house for sale in Dunstal Field, Cottenham, Cambridge, CB24 — £650,000 • 5 bed • 3 bath • 1743 ft²
4 bedroom detached house for sale in Paxton Close, Cottenham, Cambridge, Cambridgeshire, CB24 — £475,000 • 4 bed • 2 bath • 1087 ft²


















































































































