Three-bedroom Victorian terrace close to the seafront — renovation project with clear value-add potential..
- Prime East Cliff location close to seafront, shops and transport links
- Chain-free freehold; quick completion possible
- Requires full modernisation; ideal renovation project
- Reported potential damp/mould — remedial costs likely
- Small overall size: 618 sq ft; compact room proportions
- Private rear garden with landscaping/extension potential (subject to consents)
- High local crime and very deprived area — consider rental risk
- Affordable council tax; strong mobile signal and fast broadband
A three-bedroom Victorian mid-terrace on Dudley Road, East Cliff, offers a short-term renovation project in a popular seafront pocket of Folkestone. The house is chain-free and freehold, with a compact layout across two floors, a small front yard and a private rear garden with scope for landscaping or extension (subject to consents).
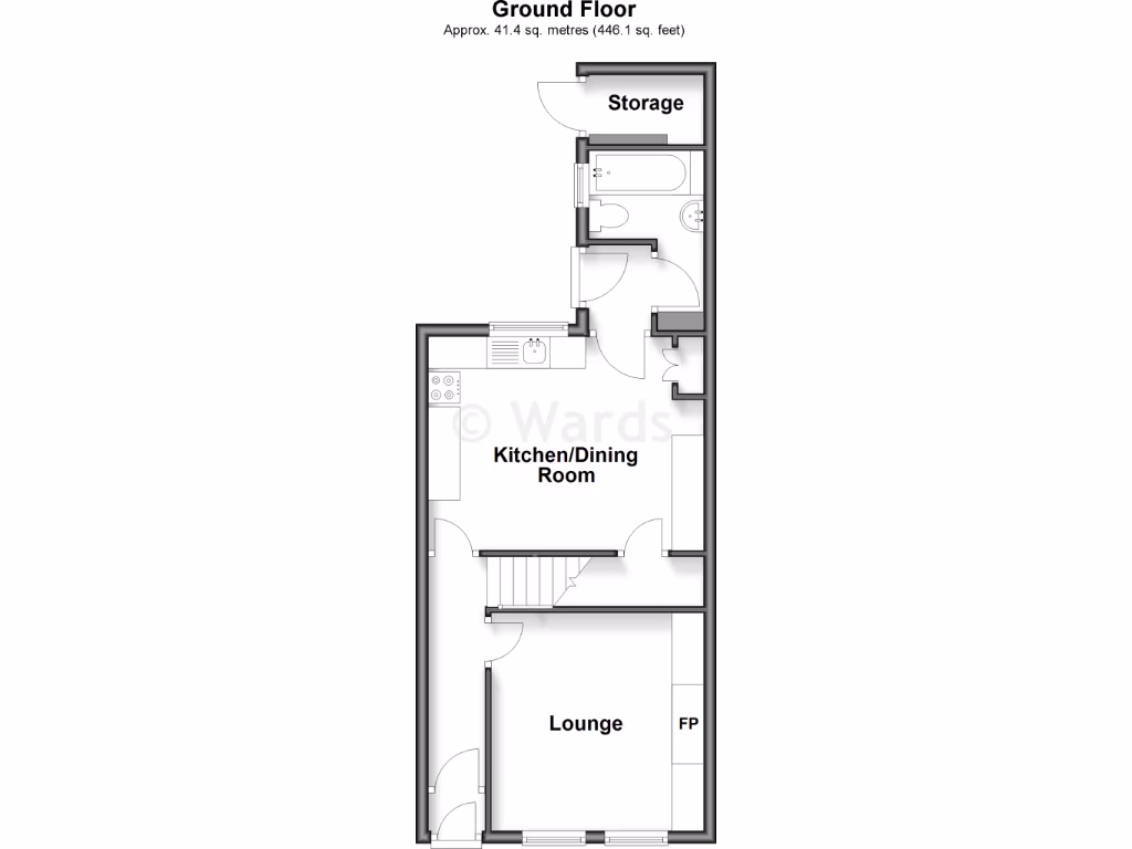
Internally the property requires comprehensive updating throughout. Ground floor accommodation comprises an entrance hall, lounge and kitchen with garden access; upstairs are three bedrooms (one double, two small singles) and a main bathroom. Ceilings and room proportions are standard for the era, and total internal area is approximately 618 sq ft — best suited to buyers seeking value-add potential rather than move-in-ready space.
Notable negatives are present and should be factored into costs: the house needs modernisation, has reported potential damp/mould issues and sits in an area with higher crime and very high deprivation indices. Utilities, appliances and any past alterations must be independently verified; the property is offered with no onward chain but sold as seen.
For investors or hands-on buyers this location delivers clear upside: proximity to seafront, shops and transport increases rental appeal or resale potential after refurbishment. Early viewing is recommended to assess scope and budgets for required works and to judge how best to unlock value in this compact East Cliff terrace.
3 bedroom terraced house for sale in Mead Road, Folkestone, Kent, CT19 — £210,000 • 3 bed • 1 bath • 743 ft²
6 bedroom house for sale in Radnor Park Crescent, Folkestone, Kent, CT19 — £300,000 • 6 bed • 2 bath • 1629 ft²
3 bedroom terraced house for sale in Ingoldsby Road, Folkestone, CT19 — £250,000 • 3 bed • 1 bath • 1149 ft²
3 bedroom terraced house for sale in Invicta Road, Folkestone, Kent, CT19 — £270,000 • 3 bed • 1 bath • 1163 ft²
4 bedroom end of terrace house for sale in East Cliff, Folkestone, CT19 — £350,000 • 4 bed • 2 bath • 1292 ft²
3 bedroom detached house for sale in Oxenden Road, Folkestone, Kent, CT20 — £350,000 • 3 bed • 1 bath • 796 ft²














































